3 bedroom link detached house for sale
The Mews, Gardner Street, Herstmonceux, Hailsham

- PROPERTY TYPE
Link Detached House
- BEDROOMS
3
- BATHROOMS
1
- SIZE
151 sq ft
14 sq m
- TENUREDescribes how you own a property. There are different types of tenure - freehold, leasehold, and commonhold.Read more about tenure in our glossary page.
Freehold
Key features
- Three bedroom link detached house
- Character property
- Converted to a high standard
- Located in a quiet mews
- Sought After Location
- Three double bedrooms
- Open plan ground floor/Lounge/Kitchen/Diner
- Fitted Kitchen
- Parking for up to four vehicles
- Large driveway
Description
Features:
Three-bedroom link-detached house
Character property
Converted to a high standard
Located in a quiet mews
Sought After Location
Three double bedrooms
Reception/home office
Utility room
Open plan ground floor/Lounge/Kitchen/Diner
Fitted Kitchen
Appliances include an electric hob, oven, integrated fridge/freezer, and dishwasher
Parking for up to four vehicles
Large driveway
Double Glazing
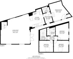
Rooms:
Living room w: 7.8m x l: 7.1m
Kitchen w: 3.5m x l: 4.2m
Utility w: 2m x l: 2.7m
Cloakroom w: 2m x l: 1.5m
Room 1w: 4m x l: 4.7m
Landing w: 1.8m x l: 1m
Inner Hallway w: 1m x l: 2.7m
Bathroom w: 2.2m x l: 2.2m
Bedroom 1 w: 3.4m x l: 4m
Bedroom 2 w: 4m x l: 3m
Bedroom 3 w: 3.8m x l: 3m
Located in a quiet mews
Sought After Location
20 minutes to Polegate Station
10 Minutes' drive to Hailsham
Walking distance to local amenities
Local Council: Wealden District Council.
Council tax band E
EPC rating band: E (42:54)
A stunning mews conversion completed to a high standard, there are three double bedrooms and a large open-plan living/ kitchen space. The property is set back from the road with off-road parking for 4 vehicles and close to local amenities in Herstmonceux.
The large open plan living accommodation has multiple connectivity points for wall-mounted televisions, recessed shelving, and a large double-door driveway. Installed is a bespoke oak staircase with built-in storage that leads to the first floor.
The kitchen is well-appointed with a variety of appliances, including an electric hob, oven, integrated fridge/freezer, and dishwasher. The units are fitted with soft-close doors, and the floors are polished porcelain tiles.
There is a utility room with space and plumbing for a washing machine and external access, and a downstairs cloakroom. The former garage has been converted into a useful room that can be used for a variety of purposes.
The three double bedrooms are all located on the first floor, along with the family bathroom. Bedroom one is particularly spacious and overlooks the front of the property. Bedroom two is a double bedroom with a large velux window and double aspect view. Bedroom three is also a double bedroom with a velux window.
Herstmonceux has a pre-school and primary school, a range of village shops, takeaways, pubs, and restaurants. There are school buses and public buses to nearby towns. Hailsham and Heathfield both have a good range of amenities, supermarkets and shops, and both are market towns still holding traditional markets.
Visitor attractions: only 1.7 miles from the historical village of Herstmonceux, famous for its science observatory and its 15th-century castle and grounds. A little further afield is the fully restored stone cross windmill and Michelham Priory, home to England's longest medieval water-filled moat. A trip to nearby Pevensey is a must, to see the spot where the Normans landed in 1066 and visit the Castle and Courthouse. There are lots of great walks around this area. Family days out include: Knockhatch and Drusillas Adventure Parks.
IMPORTANT NOTE TO PURCHASERS:
We endeavour to make our sales particulars accurate and reliable, however, they do not constitute or form part of an offer or any contract, and none is to be relied upon as statements of representation or fact. Any services, systems, and appliances listed in this specification have not been tested by us and no guarantee as to their operating ability or efficiency is given. All measurements have been taken as a guide to prospective buyers only, and are not precise. Please be advised that some of the particulars may be awaiting vendor approval. If you require clarification or further information on any points, please contact us, especially if you are travelling some distance to view. Fixtures and fittings other than those mentioned are to be agreed upon with the seller.
Council Tax Band: E
Tenure: Freehold
Living room
w: 7.8m x l: 7.1m (w: 25' 7" x l: 23' 4")
Kitchen
w: 3.5m x l: 4.2m (w: 11' 6" x l: 13' 9")
Utility
w: 2m x l: 2.7m (w: 6' 7" x l: 8' 10")
Cloakroom
w: 2m x l: 1.5m (w: 6' 7" x l: 4' 11")
Room 1
w: 4m x l: 4.7m (w: 13' 1" x l: 15' 5")
Landing
w: 1.8m x l: 1m (w: 5' 11" x l: 3' 3")
Inner Hallway
w: 1m x l: 2.7m (w: 3' 3" x l: 8' 10")
Bathroom
w: 2.2m x l: 2.2m (w: 7' 3" x l: 7' 3")
Bedroom 1
w: 3.4m x l: 4m (w: 11' 2" x l: 13' 1")
Bedroom 2
w: 4m x l: 3m (w: 13' 1" x l: 9' 10")
Bedroom 3
w: 3.8m x l: 3m (w: 12' 6" x l: 9' 10")
Brochures
Brochure- COUNCIL TAXA payment made to your local authority in order to pay for local services like schools, libraries, and refuse collection. The amount you pay depends on the value of the property.Read more about council Tax in our glossary page.
- Band: E
- PARKINGDetails of how and where vehicles can be parked, and any associated costs.Read more about parking in our glossary page.
- Driveway
- GARDENA property has access to an outdoor space, which could be private or shared.
- Yes
- ACCESSIBILITYHow a property has been adapted to meet the needs of vulnerable or disabled individuals.Read more about accessibility in our glossary page.
- Ask agent
The Mews, Gardner Street, Herstmonceux, Hailsham
Add an important place to see how long it'd take to get there from our property listings.
__mins driving to your place
Get an instant, personalised result:
- Show sellers you’re serious
- Secure viewings faster with agents
- No impact on your credit score
Your mortgage
Notes
Staying secure when looking for property
Ensure you're up to date with our latest advice on how to avoid fraud or scams when looking for property online.
Visit our security centre to find out moreDisclaimer - Property reference RS0607. The information displayed about this property comprises a property advertisement. Rightmove.co.uk makes no warranty as to the accuracy or completeness of the advertisement or any linked or associated information, and Rightmove has no control over the content. This property advertisement does not constitute property particulars. The information is provided and maintained by Streets Estate Agents, Strood. Please contact the selling agent or developer directly to obtain any information which may be available under the terms of The Energy Performance of Buildings (Certificates and Inspections) (England and Wales) Regulations 2007 or the Home Report if in relation to a residential property in Scotland.
*This is the average speed from the provider with the fastest broadband package available at this postcode. The average speed displayed is based on the download speeds of at least 50% of customers at peak time (8pm to 10pm). Fibre/cable services at the postcode are subject to availability and may differ between properties within a postcode. Speeds can be affected by a range of technical and environmental factors. The speed at the property may be lower than that listed above. You can check the estimated speed and confirm availability to a property prior to purchasing on the broadband provider's website. Providers may increase charges. The information is provided and maintained by Decision Technologies Limited. **This is indicative only and based on a 2-person household with multiple devices and simultaneous usage. Broadband performance is affected by multiple factors including number of occupants and devices, simultaneous usage, router range etc. For more information speak to your broadband provider.
Map data ©OpenStreetMap contributors.




