Bath Terrace, Blyth, Northumberland, NE24 3AX

- PROPERTY TYPE
Terraced
- BEDROOMS
3
- BATHROOMS
2
- SIZE
Ask agent
- TENUREDescribes how you own a property. There are different types of tenure - freehold, leasehold, and commonhold.Read more about tenure in our glossary page.
Freehold
Key features
- Grade II Listed Property
- Three Bedrooms
- Mid Terrace House
- Desirable Location
- Close to Local Amenities and Transport Links
- EPC Rating D
Description
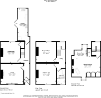
The accommodation comprises; entrance hall with stairs to the first floor, lounge, dining room, kitchen to the rear of the property with a good range of wall and base units, complimenting quartz work surfaces, built in five burner gas hob, built in Neff slide and hide electric oven, Neff microwave oven, Neff warming drawer, integrated fridge freezer, integrated dishwasher, Belfast double sink with Perrin and Rowe Ionian mixer tap and rinse, Perrin and Rowe aged brass instant hot water tap, utility cupboard plumbed for washing machine and dryer, double glazed double doors leading to the rear enclosed yard, two sash windows, stone flooring with underfloor heating and radiator. To the first floor, two bedrooms and bathroom/WC. To the second floor is an open plan master bedroom with built in wardrobes, double glazed dormer to front and rear incorporating shower cubicle with rainfall shower and shower head attachment, his and hers sinks, low level WC, freestanding copper bath with independent mixer tap, radiator and heated towel rail.
This property has been sympathetically modernised throughout providing modern living whilst retaining original features indicative of a property of its age.
Externally to the front is a mainly laid to lawn with fenced boundaries. To the rear is a private enclosed yard which is mainly paved with hidden door leading to a garage and walled and fenced boundaries.
The property benefits from two detached garages, gas central heating, CCTV system, double glazing and large useable loft space with warm roof above second floor bedroom accessed via loft ladders.
Properties in this area are extremely in demand so view early to avoid disappointment
Virtual tour available at link below:
Please contact the Blyth Branch on for further information and viewings.
Council Tax Band: D
Tenure: Freehold
Front External
To the front of the property is a private garden mainly laid to lawn with hedged and fenced boundaries.
Porch
Entrance Hall
With doors off to the lounge, dining room, kitchen and stairs to the first floor.
Lounge
4.64m x 4.2m
Sash window to the front, log burner set into feature fireplace and radiator.
Dining Room
4.29m x 4.01m
Sash window to the rear, log burner set into feature surround, built in storage cupboard and radiator.
Kitchen
6.62m x 2.02m
To the rear of the property with a good range of wall and base units, complimenting quartz work surfaces, built in five burner gas hob, built in Neff slide and hide electric oven, Neff microwave oven, Neff warming drawer, integrated fridge freezer, integrated dishwasher, Belfast double sink with Ionian mixer tap and rinse, Perrin and Rowe aged brass instant hot water tap mixer, utility cupboard plumbed for washing machine and dryer, double glazed double doors leading to the rear enclosed yard, two sash windows, stone flooring with underfloor heating and radiator.
First Floor Landing
With doors off to first floor bedrooms, bathroom/WC and stairs leading to the second floor.
Bedroom Two
4.34m x 4.03m
Sash window to the front, feature fireplace and radiator.
Bedroom Three
4.28m x 4.01m
Sash window to the rear, feature fireplace, built in storage cupboard and radiator.
Bathroom/WC
3.25m x 1.75m
White three piece bathroom suite comprising; freestanding cast iron bath with shower over and shower head attachment, Burlington large hand wash basin, Burlington high level WC, tiled flooring with underfloor heating, sash window and heated towel rail.
Second Floor Landing
With door off to the master bedroom.
Master Bedroom
7.3m x 5.86m
Open plan master bedroom with built in wardrobes, Inset multi fuel /wood burning stove, double glazed dormer to front and rear incorporating shower cubicle with rainfall shower and shower head attachment, his and hers sinks with large LED above basin mirror, low level WC, freestanding copper bath with independent mixer tap, marble tiles with underfloor heating, radiator and heated towel rail.
Rear Enclosed Yard
To the rear is a private enclosed yard which is mainly paved with hidden door leading to a garage and walled and fenced boundaries
Brochures
Brochure- COUNCIL TAXA payment made to your local authority in order to pay for local services like schools, libraries, and refuse collection. The amount you pay depends on the value of the property.Read more about council Tax in our glossary page.
- Band: D
- LISTED PROPERTYA property designated as being of architectural or historical interest, with additional obligations imposed upon the owner.Read more about listed properties in our glossary page.
- Listed
- PARKINGDetails of how and where vehicles can be parked, and any associated costs.Read more about parking in our glossary page.
- Garage,On street
- GARDENA property has access to an outdoor space, which could be private or shared.
- Yes
- ACCESSIBILITYHow a property has been adapted to meet the needs of vulnerable or disabled individuals.Read more about accessibility in our glossary page.
- Ask agent
Bath Terrace, Blyth, Northumberland, NE24 3AX
Add an important place to see how long it'd take to get there from our property listings.
__mins driving to your place
Get an instant, personalised result:
- Show sellers you’re serious
- Secure viewings faster with agents
- No impact on your credit score
Affordability
Notes
Staying secure when looking for property
Ensure you're up to date with our latest advice on how to avoid fraud or scams when looking for property online.
Visit our security centre to find out moreDisclaimer - Property reference 494134. The information displayed about this property comprises a property advertisement. Rightmove.co.uk makes no warranty as to the accuracy or completeness of the advertisement or any linked or associated information, and Rightmove has no control over the content. This property advertisement does not constitute property particulars. The information is provided and maintained by Pattinson Estate Agents, Blyth. Please contact the selling agent or developer directly to obtain any information which may be available under the terms of The Energy Performance of Buildings (Certificates and Inspections) (England and Wales) Regulations 2007 or the Home Report if in relation to a residential property in Scotland.
*This is the average speed from the provider with the fastest broadband package available at this postcode. The average speed displayed is based on the download speeds of at least 50% of customers at peak time (8pm to 10pm). Fibre/cable services at the postcode are subject to availability and may differ between properties within a postcode. Speeds can be affected by a range of technical and environmental factors. The speed at the property may be lower than that listed above. You can check the estimated speed and confirm availability to a property prior to purchasing on the broadband provider's website. Providers may increase charges. The information is provided and maintained by Decision Technologies Limited. **This is indicative only and based on a 2-person household with multiple devices and simultaneous usage. Broadband performance is affected by multiple factors including number of occupants and devices, simultaneous usage, router range etc. For more information speak to your broadband provider.
Map data ©OpenStreetMap contributors.





