
5 bedroom detached house for sale
The Dumbles, Lambley, Nottingham

- PROPERTY TYPE
Detached
- BEDROOMS
5
- BATHROOMS
4
- SIZE
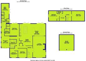
3,347 sq ft
311 sq m
- TENUREDescribes how you own a property. There are different types of tenure - freehold, leasehold, and commonhold.Read more about tenure in our glossary page.
Freehold
Key features
- Impressive substantial detached home
- Superb village setting
- Convenient and sought after semi-rural location with stunning vista views
- Approx. two thirds of an acre plot
- Spanning two floors, five bedrooms
- Contemporary fitted bespoke kitchen with integrated appliances, four bath/shower rooms
- Entrance leading to versatile reception hall, lounge, utility
- Home office/gym, substantial garden/patio with barbecue area
- Double garage, driveway providing parking for several cars
- Internal area approx. 3,000 Sq ft, EPC Rating D, Viewing Recommended
Description
FHP Living are delighted to present this stunning detached home located on a private, secluded lane in the charming village of Lambley. Set on approximately two thirds of an acre, this property offers a tranquil setting in a delightful village while being conveniently close to local amenities, beautiful scenic views, and nature.
This impressive property boasts approximately 3,000 square feet of space and offers delightful views from the large, elevated garden and offers the sort of comfort and convenience that one would associate in a property of this calibre which must be viewed to be fully appreciated.
Spanning two floors and approached via a driveway providing parking for multiple cars. On entering the property you are greeted by a well presented and versatile reception hall affording access to the ground floor's accommodation which briefly comprises; three bedrooms, a gym/home office, shower room, utility area (housing plumbing for the washing machine and dryer and providing additional space for storage). A superb commodious family dining kitchen fitted with bi-fold doors, a range of quality units and appliances and complimentary island unit. Turning to the dining area there are expansive bi-folding doors creating a feeling of openness, light and space, flowing through to the outside terrace and lawned garden area to allow for the hosting of the perfect indoor or outdoor parties. Following on from the kitchen and living area, you will find a substantial lounge which benefits from a log burner enhancing the ambiance of the room.
The master bedroom greets you with an abundance of light by way of doors opening to the rear of the property offering lovely vista across the countryside. You simply can't help but be impressed by the layout with its walk in wardrobe and en-suite. The two remaining bedrooms are serviced by a luxurious family bathroom.
Ascending to the first floor, there are two further spacious bedrooms, along with a shower room and a landing providing a plethora of storage.
Outside, the beautiful gardens are a true oasis of paved areas as well as a magnificent lawned garden to the rear, together with an array of bushes, shrubbery, beds, and mature trees incorporating a large patio with hot tub and barbecue area, perfect for entertaining. There is also a driveway providing parking for several cars.
Being situated in Lambley the property is within easy reach of the shopping facilities on "Mapperley Top", also within close proximity of healthcare and sports facilities including Nuffield Well-Being Centre, Gedling Country Park and Mapperley Golf Club. For a broader experience you are within easy reach of Nottingham City Centre. The property also offers ease of access to the region's commercial and retail centres. VIEWING ESSENTIAL!
Council Tax Band Rating - Gedling Borough Council - Band G
This information was obtained through the directgov website
. - These sales particulars have been prepared by FHP Living on the instruction of the vendor. Services, equipment and fittings mentioned in these particulars have NOT been tested, and as such, no warranties can be given. Prospective purchasers are advised to make their own enquiries regarding such matters. These sales particulars are produced in good faith and are not intended to form part of a contract. Whilst FHP Living have taken care in obtaining internal measurements, they should only be regarded as approximate.
Purchaser information - Under the Protecting Against Money Laundering and the Proceeds of Crime Act 2002, FHP Living require any successful purchasers proceeding with a purchase to provide two forms of identification i.e. passport or photocard driving license and a recent utility bill. This evidence will be required prior to FHP Living instructing solicitors in the purchase or the sale of a property.
Brochures
MED_16401_21770.pdf- COUNCIL TAXA payment made to your local authority in order to pay for local services like schools, libraries, and refuse collection. The amount you pay depends on the value of the property.Read more about council Tax in our glossary page.
- Ask agent
- PARKINGDetails of how and where vehicles can be parked, and any associated costs.Read more about parking in our glossary page.
- Yes
- GARDENA property has access to an outdoor space, which could be private or shared.
- Yes
- ACCESSIBILITYHow a property has been adapted to meet the needs of vulnerable or disabled individuals.Read more about accessibility in our glossary page.
- Ask agent
The Dumbles, Lambley, Nottingham
Add an important place to see how long it'd take to get there from our property listings.
__mins driving to your place
Get an instant, personalised result:
- Show sellers you’re serious
- Secure viewings faster with agents
- No impact on your credit score
Your mortgage
Notes
Staying secure when looking for property
Ensure you're up to date with our latest advice on how to avoid fraud or scams when looking for property online.
Visit our security centre to find out moreDisclaimer - Property reference 33203458. The information displayed about this property comprises a property advertisement. Rightmove.co.uk makes no warranty as to the accuracy or completeness of the advertisement or any linked or associated information, and Rightmove has no control over the content. This property advertisement does not constitute property particulars. The information is provided and maintained by FHP Living, Nottingham. Please contact the selling agent or developer directly to obtain any information which may be available under the terms of The Energy Performance of Buildings (Certificates and Inspections) (England and Wales) Regulations 2007 or the Home Report if in relation to a residential property in Scotland.
*This is the average speed from the provider with the fastest broadband package available at this postcode. The average speed displayed is based on the download speeds of at least 50% of customers at peak time (8pm to 10pm). Fibre/cable services at the postcode are subject to availability and may differ between properties within a postcode. Speeds can be affected by a range of technical and environmental factors. The speed at the property may be lower than that listed above. You can check the estimated speed and confirm availability to a property prior to purchasing on the broadband provider's website. Providers may increase charges. The information is provided and maintained by Decision Technologies Limited. **This is indicative only and based on a 2-person household with multiple devices and simultaneous usage. Broadband performance is affected by multiple factors including number of occupants and devices, simultaneous usage, router range etc. For more information speak to your broadband provider.
Map data ©OpenStreetMap contributors.






