
5 bedroom detached house for sale
Parr Way, Longridge, PR3

- PROPERTY TYPE
Detached
- BEDROOMS
5
- BATHROOMS
3
- SIZE
Ask agent
- TENUREDescribes how you own a property. There are different types of tenure - freehold, leasehold, and commonhold.Read more about tenure in our glossary page.
Freehold
Key features
- Family Bathroom and Two En-Suites
- Highly Sought After Residential Area
- Upgraded kitchen, appliances and flooring
- Double-width driveway and double garage for secure parking and excellent storage
- CHAIN FREE Exceptional new build home
- Move in ready
Description
A stunning five-bedroom executive new-build home, finished to an exceptional standard and offered in truly move-in ready condition.
This impressive property features a beautifully upgraded kitchen with high-quality integrated appliances and stylish finishes, perfectly suited for modern family living and entertaining. Amtico flooring flows through key living areas, adding a sleek and durable finish, while generous living accommodation is arranged over two floors.
The home offers five well-proportioned bedrooms, including a luxurious principal suite, along with contemporary bathrooms and en-suites. Outside, the property benefits from a private rear garden and off-road parking, completing this superb family home.
Early viewing is highly recommended to appreciate the quality, space, and finish on offer. Deposit contribution available.
The room sizes shown are taken to the widest point in each room wall to wall, and a tolerance of +/- 50mm is allowed. External finishes on certain designs, layouts, window positions and styles may vary, please check with the Sales Advisor/ Agent. These floor plans are a guide only and may be subject to change.These particulars, whilst believed to be correct, do not form any part of an offer or contract. Intending purchasers should not rely on them as statements or representation of fact. No person in this firm's employment has the authority to make or give any representation or warranty in respect of the property. All measurements quoted are approximate. Although these particulars are thought to be materially correct their accuracy cannot be guaranteed and they do not form part of any contract.
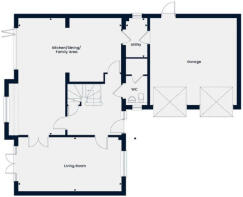
Entrance hallway
Large open hallway with upgraded Amtico flooring.
Kitchen diner and family area - 26'11 x 23'7 ft (8.2 x 7.19 m)
A stunning upgraded fitted kitchen, family area and dining: A spacious family seating area and dining area with French doors to the garden. Amtico flooring.
Utility room
Fitted base units with space for appliances, stainless steel sink with mixer tap and Amtico flooring. Side door to the garage.
Living room - 23'7 x 12'4 ft (7.19 x 3.76 m)
Spacious and bright with window to the front aspect and patio doors onto the rear garden. Newly fitted carpets.
Cloakroom
Two piece modern suite with low flush wc and hand wash basin. Amtico flooring and partly tiled walls.
Primary bedroom - 25'4 x 11'10 ft (7.72 x 3.61 m)
Window to front aspect. Newly fitted carpets.
Ensuite one - 9'5 x 6'5 ft (2.87 x 1.96 m)
Three piece suite comprises low flush wc, double wash basin, shower. Partly tiled walls and tiled floor. Opaque window.
Bedroom two - 14'9 x 10'11 ft (4.5 x 3.33 m)
Window to rear aspect. Newly fitted carpets.
Ensuite two - 8'2 x 4'7 ft (2.49 x 1.4 m)
Three piece suite comprises low flush wc, wash basin, shower. Partly tiled walls and tiled floor. Opaque window.
Bedroom three - 12'6 x 10'6 ft (3.81 x 3.2 m)
Window to rear aspect. Newly fitted carpets.
Bedroom four - 11'10 x 10'11 ft (3.61 x 3.33 m)
Window to rear aspect. Newly fitted carpets.
Bedroom five - 12'9 x 7'1 ft (3.89 x 2.16 m)
Window to front aspect. Newly fitted carpets.
Study - 10'4 x 7'10 ft (3.15 x 2.39 m)
Window to side aspect. Newly fitted carpets.
Family bathroom - 9'1 x 7'1 ft (2.77 x 2.16 m)
Four piece suite comprises low flush wc, pedestal wash basin, panelled bath and separate shower. Partly tiled walls and tiled floor. Opaque window.
External
Ample driveway allows parking for several vehicles and leads to a double integrated garage having light and power . To the rear a fully enclosed garden mainly laid to lawn.
- COUNCIL TAXA payment made to your local authority in order to pay for local services like schools, libraries, and refuse collection. The amount you pay depends on the value of the property.Read more about council Tax in our glossary page.
- Ask agent
- PARKINGDetails of how and where vehicles can be parked, and any associated costs.Read more about parking in our glossary page.
- Yes
- GARDENA property has access to an outdoor space, which could be private or shared.
- Yes
- ACCESSIBILITYHow a property has been adapted to meet the needs of vulnerable or disabled individuals.Read more about accessibility in our glossary page.
- Ask agent
Energy performance certificate - ask agent
Parr Way, Longridge, PR3
Add an important place to see how long it'd take to get there from our property listings.
__mins driving to your place
Get an instant, personalised result:
- Show sellers you’re serious
- Secure viewings faster with agents
- No impact on your credit score
Your mortgage
Notes
Staying secure when looking for property
Ensure you're up to date with our latest advice on how to avoid fraud or scams when looking for property online.
Visit our security centre to find out moreDisclaimer - Property reference 35068. The information displayed about this property comprises a property advertisement. Rightmove.co.uk makes no warranty as to the accuracy or completeness of the advertisement or any linked or associated information, and Rightmove has no control over the content. This property advertisement does not constitute property particulars. The information is provided and maintained by Dewhurst Homes, Longridge. Please contact the selling agent or developer directly to obtain any information which may be available under the terms of The Energy Performance of Buildings (Certificates and Inspections) (England and Wales) Regulations 2007 or the Home Report if in relation to a residential property in Scotland.
*This is the average speed from the provider with the fastest broadband package available at this postcode. The average speed displayed is based on the download speeds of at least 50% of customers at peak time (8pm to 10pm). Fibre/cable services at the postcode are subject to availability and may differ between properties within a postcode. Speeds can be affected by a range of technical and environmental factors. The speed at the property may be lower than that listed above. You can check the estimated speed and confirm availability to a property prior to purchasing on the broadband provider's website. Providers may increase charges. The information is provided and maintained by Decision Technologies Limited. **This is indicative only and based on a 2-person household with multiple devices and simultaneous usage. Broadband performance is affected by multiple factors including number of occupants and devices, simultaneous usage, router range etc. For more information speak to your broadband provider.
Map data ©OpenStreetMap contributors.









