
2 bedroom detached bungalow for sale
Haig Avenue, Moreton

- PROPERTY TYPE
Detached Bungalow
- BEDROOMS
2
- BATHROOMS
1
- SIZE
Ask agent
- TENUREDescribes how you own a property. There are different types of tenure - freehold, leasehold, and commonhold.Read more about tenure in our glossary page.
Freehold
Key features
- Detached Bungalow
- Two Bedrooms
- Refurbished
- New Electrics/Plumbing
- Large Driveway
- Great Sized Garden
- Stylish Bathroom
- Dbl Glazing & GCH
- Council Tax Band B
- EPC Rating B
Description
Set within a quiet cul-de-sac is this stunning two-bedroom detached bungalow. Having been fully refurbished back to brick, being re-plastered with new electrics and plumbing, no expense has been spared in making this a truly beautiful upgrade. Offering a large driveway for multiple vehicles and a great sized sunny garden with patio; it really does tick so many boxes. Situated near to the services and amenities in Moreton Cross, including local shops, frequent bus routes and train stations direct to Liverpool. There is also a handy Tesco Express only a short stroll away, as well as a local pub and a few restaurants. Interior: inviting hallway, living/dining room, tastefully chosen kitchen, two bedrooms and a stylish bathroom. Complete with uPVC double glazing and gas central heating. Exterior: large lawned gardens, pebble stone front garden and spacious Indian sandstone driveway to the front. This superb property is an absolute must see; be quick!
ENTRANCE
A pleasant approach to the property down this quiet cul-de-sac, across the Indian sandstone driveway with front garden laid with pebble stones and Indian sandstone pathway leading to the main part glazed composite entrance door.
HALLWAY
Inviting hallway with inset ceiling spotlights, central heating radiator and quality oak effect flooring. Loft access hatch. Doors into each room.
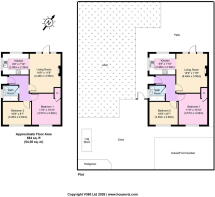
LIVING/DINING ROOM - 4.5m x 3.56m (14'9" x 11'8")
A superb space to relax in where you can cosy up in front of the log burner over the colder seasons. Great place to enjoy meal times together, being open plan to the kitchen making it a pleasant entertaining space to keep conversations flowing. uPVC double glazed door with glazing either side onto the garden patio area; perfect for the warmer months. Inset ceiling spotlights, wall television point and central heating radiator. Quality oak effect flooring that flows into the kitchen.
KITCHEN - 2.97m x 2.39m (9'9" x 7'10")
Tastefully chosen shaker grain fitted kitchen with plenty of storage, quality work surfaces and matching upstands. Composite sink and drainer with mixer tap over. Two uPVC double glazed windows looking to the garden areas. Four ring gas hob with Neff oven/grill below and extractor above. Integrated fridge freezer, dishwasher and washing machine. Inset ceiling spotlights, extractor fan and aforementioned quality oak effect flooring.
BEDROOM ONE - 3.58m x 3.3m (11'9" x 10'10")
uPVC double glazed window to front elevation with inset fitted venetian blinds. Inset ceiling spotlights, central heating radiator and wall television point. Cupboard housing the combi boiler.
BEDROOM TWO - 3.25m x 2.62m (10'8" x 8'7")
uPVC double glazed window to front elevation with fitted roller blind. Inset ceiling spotlights and central heating radiator.
BATHROOM
Stylish bathroom suite comprising shaped panel bath with fixed overhead shower and additional rinse attachment, both the WC and wash basin sit within a tasteful storage unit. uPVC double glazed frosted window to side elevation. Ladder style radiator, inset ceiling spotlights and extractor fan. Tiled walls and tiled flooring.
REAR & SIDE EXTERIOR
Large lawned gardens with Indian sandstone pathway leading to the patio area which is just perfect for dining and seating solutions, with that extra bit of space for a BBQ ready to host friends and family over the summer. Water tap and external power socks. Side access gate.
FRONT EXTERIOR
Spacious Indian sandstone driveway, providing off road parking for multiple vehicles, and your log store. Pebble stone front garden with Indian sandstone pathway to the entrance. Gate leading to the garden areas.
LOCATION
Haig Avenue is a cul-de-sac off Sandbrook Lane in Moreton, approx. 4.3 miles driving distance from our Liscard office.
Property Misdescriptions Act 1991. For clarification, Harper & Woods Estate Agents wish to inform prospective purchasers that we have not tested any of the appliances or the heating system and cannot give any warranties as to their full working order. Purchasers are advised to obtain independent specialist reports if they have any doubts. All measurements are approximate and should not be relied upon for carpets or furnishings. Any mention of appliances, equipment, fixtures, fittings or services unless specifically stated are not included in the sale of the property. We cannot verify that these are fit for purpose or in full working order, as they have not been tested by ourselves. You are advised to gain specialist independent reports if you have any hesitations. Measurements, areas and distances provided are an approximate only. They are for general guidance and should not be relied upon for furnishings, flooring or any other outspend. The chosen photographs only illustrate perspectives of the properties interior and exterior as they appeared at the time they were taken. Our particulars for each property are created as a general outline only for the guidance of prospective buyers. Any information is given without responsibility on our part and we recommended that our information is verified by yourself. We endeavour to ensure that the information on our website is accurate and reliable however information about a property is liable to be changed at any time.
Brochures
Brochure 1- COUNCIL TAXA payment made to your local authority in order to pay for local services like schools, libraries, and refuse collection. The amount you pay depends on the value of the property.Read more about council Tax in our glossary page.
- Band: B
- PARKINGDetails of how and where vehicles can be parked, and any associated costs.Read more about parking in our glossary page.
- Driveway,Off street
- GARDENA property has access to an outdoor space, which could be private or shared.
- Private garden
- ACCESSIBILITYHow a property has been adapted to meet the needs of vulnerable or disabled individuals.Read more about accessibility in our glossary page.
- Ask agent
Haig Avenue, Moreton
Add an important place to see how long it'd take to get there from our property listings.
__mins driving to your place
Get an instant, personalised result:
- Show sellers you’re serious
- Secure viewings faster with agents
- No impact on your credit score

Your mortgage
Notes
Staying secure when looking for property
Ensure you're up to date with our latest advice on how to avoid fraud or scams when looking for property online.
Visit our security centre to find out moreDisclaimer - Property reference S1590828. The information displayed about this property comprises a property advertisement. Rightmove.co.uk makes no warranty as to the accuracy or completeness of the advertisement or any linked or associated information, and Rightmove has no control over the content. This property advertisement does not constitute property particulars. The information is provided and maintained by Harper & Woods, Wallasey. Please contact the selling agent or developer directly to obtain any information which may be available under the terms of The Energy Performance of Buildings (Certificates and Inspections) (England and Wales) Regulations 2007 or the Home Report if in relation to a residential property in Scotland.
*This is the average speed from the provider with the fastest broadband package available at this postcode. The average speed displayed is based on the download speeds of at least 50% of customers at peak time (8pm to 10pm). Fibre/cable services at the postcode are subject to availability and may differ between properties within a postcode. Speeds can be affected by a range of technical and environmental factors. The speed at the property may be lower than that listed above. You can check the estimated speed and confirm availability to a property prior to purchasing on the broadband provider's website. Providers may increase charges. The information is provided and maintained by Decision Technologies Limited. **This is indicative only and based on a 2-person household with multiple devices and simultaneous usage. Broadband performance is affected by multiple factors including number of occupants and devices, simultaneous usage, router range etc. For more information speak to your broadband provider.
Map data ©OpenStreetMap contributors.





