
3 bedroom terraced house for sale
Alford Farmhouse, Myddle.

- PROPERTY TYPE
Terraced
- BEDROOMS
3
- BATHROOMS
1
- SIZE
1,501 sq ft
139 sq m
- TENUREDescribes how you own a property. There are different types of tenure - freehold, leasehold, and commonhold.Read more about tenure in our glossary page.
Freehold
Key features
- Around 1,500 sq ft
- Set Within a Converted Farmhouse
- Period Features
- Ample Parking
- Convenient for Shrewsbury
- Central Village Location
Description
Description - Halls are delighted with instructions to offer 2 Alford Farmhouse in Myddle for sale by private treaty.
2 Alford Farmhouse is characterful three-bedroom home forming part of a converted period farmhouse. The property enjoys around 1,500 sq ft of flexibly arranged and characterful living accommodation which retains a range of traditional features whilst providing scope for modest decorative improvements.
The property is complemented by easily maintained external areas, these lying to the front and rear of the property, with the former comprising a compact courtyard area featuring an external WC. To the rear is ample dedicated parking space for a number of vehicles, this leading on to a further private courtyard which offers further scope for personalisation and improvement, should it be desired.
Situation - Alford Farmhouse is centrally situated within the popular village of Myddle, which enjoys a range of day-to-day amenities, including a Public House, Parish Church, Primary School, whilst retaining a convenient proximity to the larger village of Baschurch which provides a greater selection of facilities including excellent Primary and Secondary Schools and additional shops. Further amenities can be found in Wem (6 miles) including a rail station or alternatively the county town of Shrewsbury (9 miles) has a more comprehensive range of amenities of all kinds.
W3w - ///chops.meanwhile.cares
The Property - The property is principally accessed into a useful Porch/Boot Room, ideal for storing muddy boots and coats following walks in the surrounding countryside, from where a door leads into an internal Hallway with stairs rising to the first floor. Turning left from the Hallway, one enters a comfortably sized Living Room with window onto the side elevation, alongside ample space for seating arranged around a centrally positioned log-burner set into a decorative surround.
To the rear of the property is a spacious Kitchen/Dining Room complete with traditional quarry-tiled floors, this serving as the heart of this period home and providing ample space for socialising and more intimate family moments alike. From here, a door leads through to a rear Boot Room with a door which exits onto the rear courtyard and parking beyond.
Stairs rise from the internal Hallway to a first floor landing, where doors allow access into two large bedrooms, each enjoying ample space for double beds and with Bedroom Two benefitting from delightful double-aspect windows which offer views across this popular village. The Bedrooms are served by a recently modernised Family Bathroom comprising an attractive white suite set against partly tiled walls. Stairs rise again from the landing to the principal Bedroom which occupies the entirety of the second floor and extends to around 250 sq ft, with a range of integrated storage cupboards.
Outside - The property provides vehicular access to the rear via a driveway which comprises ample space for a number of vehicles, this leading on to a predominately tarmac courtyard which culminates at the back door. The rear of the property could be reimagined to allow for a more traditional garden, should it be required.
To the front of the property is a pedestrian access directly off Alford Gardens, with a traditional gate leading on to a low-maintenance courtyard.
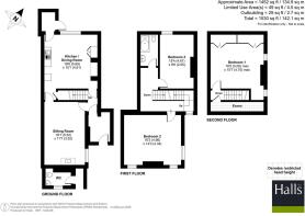
The Accommodation Comprises - - Ground Floor -
Porch/Boot Room:
Living Room: 5.52m x 3.52m
Kitchen/Dining Room: 5.68 x 4.61m
WC (External):
Rear Boot Room:
- Upper Floors -
Bedroom One: 5.00m x 4.75m
Bedroom Two: 4.96m x 4.34m
Bedroom Three: 4.67m x 2.95m
Family Bathroom:
Directions - Leave Shrewsbury to the north via the A528 in the direction of Ellesmere, passing through Albrighton and Preston Gubbals, until reaching the village of Harmer Hill. In Harmer Hill, take a left hand turn to continue on the A528 and, 1.8 miles later, turn left again towards Myddle, keeping right shortly after when the road forks. Proceed on this road into the heart of the village and, shortly after passing the Red Lion Public House on your right, take the second exit a the mini-roundabout into Alford Gardens, where the property will be situated immediately on the right and identified by a Halls "for sale" board.
Schooling - Within a convenient proximity are a number of well-regarded state and private schools, including Myddle C of E Primary, Bomere Heath C of E Primary, The Corbet School, Baschurch C of E Primary, Weston Lullingfields Primary, Cockshutt C of E Primary, Adcote School for Girls, Packwood Haugh School, and Ellesmere College.
Services - We are advised that the property benefits from mains water, drainage, and electric. Heating is provided by an oil-fired boiler.
Tenure & Possession - The property is said to be of freehold tenure and vacant possession will be granted upon completion.
Local Authority - Shropshire Council, Shirehall, Abbey Foregate, Shrewsbury, Shropshire, SY2 6ND.
Council Tax - The property is shown as being within council tax band C on the local authority register.
* Anti-Money Laundering (Aml) Checks * - We are legally obligated to undertake anti-money laundering checks on all property purchasers. Whilst we are responsible for ensuring that these checks, and any ongoing monitoring, are conducted properly; the initial checks will be handled on our behalf by a specialist company, Movebutler, who will reach out to you once your offer has been accepted.
The charge for these checks is £30 (including VAT) per purchaser, which covers the necessary data collection and any manual checks or monitoring that may be required. This cost must be paid in advance, directly to Movebutler, before a memorandum of sale can be issued, and is non-refundable. We thank you for your cooperation.
Viewings - By appointment through Halls, The Square, Ellesmere, Shropshire, SY12 0AW.
Brochures
Alford Farmhouse, Myddle.- COUNCIL TAXA payment made to your local authority in order to pay for local services like schools, libraries, and refuse collection. The amount you pay depends on the value of the property.Read more about council Tax in our glossary page.
- Ask agent
- PARKINGDetails of how and where vehicles can be parked, and any associated costs.Read more about parking in our glossary page.
- Yes
- GARDENA property has access to an outdoor space, which could be private or shared.
- Yes
- ACCESSIBILITYHow a property has been adapted to meet the needs of vulnerable or disabled individuals.Read more about accessibility in our glossary page.
- Ask agent
Alford Farmhouse, Myddle.
Add an important place to see how long it'd take to get there from our property listings.
__mins driving to your place
Get an instant, personalised result:
- Show sellers you’re serious
- Secure viewings faster with agents
- No impact on your credit score




Your mortgage
Notes
Staying secure when looking for property
Ensure you're up to date with our latest advice on how to avoid fraud or scams when looking for property online.
Visit our security centre to find out moreDisclaimer - Property reference 34452535. The information displayed about this property comprises a property advertisement. Rightmove.co.uk makes no warranty as to the accuracy or completeness of the advertisement or any linked or associated information, and Rightmove has no control over the content. This property advertisement does not constitute property particulars. The information is provided and maintained by Halls Estate Agents, Ellesmere. Please contact the selling agent or developer directly to obtain any information which may be available under the terms of The Energy Performance of Buildings (Certificates and Inspections) (England and Wales) Regulations 2007 or the Home Report if in relation to a residential property in Scotland.
*This is the average speed from the provider with the fastest broadband package available at this postcode. The average speed displayed is based on the download speeds of at least 50% of customers at peak time (8pm to 10pm). Fibre/cable services at the postcode are subject to availability and may differ between properties within a postcode. Speeds can be affected by a range of technical and environmental factors. The speed at the property may be lower than that listed above. You can check the estimated speed and confirm availability to a property prior to purchasing on the broadband provider's website. Providers may increase charges. The information is provided and maintained by Decision Technologies Limited. **This is indicative only and based on a 2-person household with multiple devices and simultaneous usage. Broadband performance is affected by multiple factors including number of occupants and devices, simultaneous usage, router range etc. For more information speak to your broadband provider.
Map data ©OpenStreetMap contributors.





