Residential development for sale
Land at Sherston Road, Malmesbury
- SIZE
Ask agent
- SECTOR
Residential development for sale
Key features
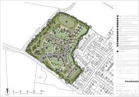
- Residential Development
- 55 units
- 40% affordable housing
- Gateway of Malmesbury town
- Edge of Cotswolds
Description
A rare and unique residential development opportunity in the sought-after historic town of Malmesbury. Located in North Wiltshire, the town provides a number of independent shops, restaurants, public houses and a mix of schooling. More extensive facilities are available in the nearby towns of Swindon, Cirencester, Tetbury and Chippenham. Communications are excellent with the M4 motorway junction 17 being approximately 7 miles away. Chippenham Rail Station is approximately 11 miles south putting London (Paddington) just over 1 hour travelling distance.
THE PROPERTY
The Property is situated on the western edge of Malmesbury immediately adjacent to the Cotswolds National Landscape. The site provides open views of open countryside to the north and west. The consented area comprises a single pasture field extending in all to about 7.62 acres (3.08 hectares). The land is bounded mainly by mature stockproof hedges. Current vehicular access can be taken from Park Lane. The proposed development provides access from Sherston Road. There are no current public rights of way that cross the property.
PLANNING CONSENT
Outline planning permission was granted on appeal by Wiltshire Council on 11th November, 2025 (Appeal ref: APP/Y3940/W/25/3369892) for the construction of up to 55 residential units (all matters reserved other than access). Further details are available in a Data Room from the Selling Agent.
SECTION 106
The buyer will purchase the land subject to a Section 106 Agreement and any bids will need to take into full account the financial contributions set out in the Data Room.
AFFORDABLE HOUSING
For the avoidance of doubt, the Section 106 Agreement commits the buyer to providing a minimum of 40% (22 units) affordable houses, currently split between 25% First Homes 60% Affordable Rented Units and 15% Shared Ownership Units. The Section 106 includes a cascade mechanism relating to affordable housing delivery.
COMMUNITY INFRASTRUCTURE LEVY
The buyer will be responsible for any Community Infrastructure Levy (CIL) charged. Wiltshire Council has confirmed that the current CIL liability charged based on the chargeable floor area of the approved residential development would be £85 per square metre index linked.
GROUND CONDITIONS
A Ground Investigation Contract has been let and is underway. The report is anticipated to be available prior to the bid deadline and will, on receipt be made available to all potential buyers who have registered an interest in the site.
INFORMATION PACK
Detailed information will be made available in an online Data Room, to include
* Planning Application, Appeal Decision and Approved Plans.
* Section 106 Agreement.
* Relevant technical reports and surveys.
* Title and Land Registry details.
* Sale Plan
The information pack is avaliable form the Selling Agent.
METHOD OF SALE
Prospective buyers are invited to submit unconditional offers to AJW Land & Development Ltd by 12 Noon on Wednesday 25th March, 2026. Written offers should be submitted in a sealed envelope and sent to AJW Land & Development Ltd, Old Barn, Rodbourne Rail Farm, Rodbourne, Malmesbury, Wiltshire SN16 0ES and titled "For the attention of Mr. A.J. Wright - Land at Sherston Road, Malmesbury". Emailed offers should be sent to: .
All offers should complete the bid pro forma sheet which can be found in the Data Room which will ask for a breakdown of all assumptions made and any abnormal costs that have been allowed for.
INTERVIEWS
If your offer is of interest, you and your technical team will be invited to attend a meeting at AJW Land & Development Ltd.'s office on week commencing 30th March 2026, to discuss your proposal.
SERVICES
Mains services are understood to be available nearby. Prospective purchasers are required to seek confirmation from the various utility companies that mains services are readily available.
RIGHTS OF WAY, WAYLEAVES AND EASEMENTS
The property is sold subject to any existing rights of way, drainage, water and other rights, easements and incidents of tenure affecting the sale and all easements and wayleaves in connection with all electric or telephone wires, pipes, cables, stays etc. as at present erected on or passing over the property and subject to all existing and all pending agreements if any affecting the same.
VAT
The owners of the property are Gloucestershire Health and Care NHS Foundation Trust. VAT will be charged on the sale price of the property.
TENURE AND POSSESSION
The property is freehold with vacant possession on Completion.
DIRECTIONS
What3words ///items.inversion.poppy
CONDITIONS OF SALE
As part of the sale, the chosen buyer will be required to adhere to certain conditions and terms (to be agreed), to include:
* An Overage of 50% of the price paid per plot (indexed linked) for a term of 20 years for residential development planning permission on land currently identified as public open space.
* The Sellers will reserve a ransom strip along the north eastern boundary between Points A and B on a Sale Contract Plan.
LOCAL AUTHORITY
Wiltshire Council, Monkton Park, Chippenham, Wiltshire SN15 1ER.
PROMOTER
The property has been promoted by Hollins Strategic Land, Suite 3, Victoria Court, Bexton Road, Knutsford WA16 0PF. FAO: Mr. Paul O'Shea.
PROMOTERS SOLICITOR
JMW Solicitors, Byrom Place, 1 Byrom Street, Manchester M3 3HG. Tel: . FAO. Mr. Paul Burton.
SELLERS SOLICITOR
Michelmores LLP, 10 Victoria Street, Redcliffe, Bristol BS1 6BN. Tel: .
FAO Ms. Julie Sharpe.
VIEWING
Strictly by appointment through the Selling Agent. Interested parties are to keep gates closed at all times and are responsible for their own safety.
DIRECTIONS
What3words ///items.inversion.poppy
Brochures
Land at Sherston Road, Malmesbury
NEAREST STATIONS
Distances are straight line measurements from the centre of the postcode- Kemble Station7.3 miles
Notes
Disclaimer - Property reference LandatMalmesbury. The information displayed about this property comprises a property advertisement. Rightmove.co.uk makes no warranty as to the accuracy or completeness of the advertisement or any linked or associated information, and Rightmove has no control over the content. This property advertisement does not constitute property particulars. The information is provided and maintained by AJW Land & Development Ltd, Rodbourne. Please contact the selling agent or developer directly to obtain any information which may be available under the terms of The Energy Performance of Buildings (Certificates and Inspections) (England and Wales) Regulations 2007 or the Home Report if in relation to a residential property in Scotland.
Map data ©OpenStreetMap contributors.





