
2 bedroom apartment for rent
Trinity Road, Taunton, Somerset, TA1

Letting details
- Let available date:
- Now
- Deposit:
- £1,326A deposit provides security for a landlord against damage, or unpaid rent by a tenant.Read more about deposit in our glossary page.
- Min. Tenancy:
- 6 months How long the landlord offers to let the property for.Read more about tenancy length in our glossary page.
- Let type:
- Long term
- Furnish type:
- Unfurnished
- Council Tax:
- Ask agent
- PROPERTY TYPE
Apartment
- BEDROOMS
2
- BATHROOMS
1
- SIZE
Ask agent
Key features
- ENTRANCE HALLWAY
- SITTING ROOM
- OPEN PLAN KITCHEN DINER
- TWO DOUBLE BEDROOMS
- BATHROOM
- EPC TBC
- COUNCIL TAX BAND C
- HOLDING FEE £265
- SECUTIRY DEPOSIT £17326
- EE. O2, THREE, VODAFONE ALL LIKELY
Description
Greenslade Taylor Hunt are pleased to offer this two bedroom maisonette set close to the town centre.
The property is currently in the process of being redecorated as well as having newly laid carpets and new modern fitted kitchen.
This property is an ideal home for those wanting to be close to the town centre as well as local commuter routes and regular bus services, whilst enjoying a quiet location.
The property further benefits from gas central heating and double glazing throughout.
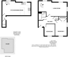
Accommodation comprises, entrance hall, two bedrooms, shower room, lounge with spiral staircase leading down to the kitchen/dining room.
Externally there is a car port.
EPC TBC
COUNCIL TAX BAND C
HOLDING FEE £265
SECUTIRY DEPOSIT £1326
EE. O2, THREE, VODAFONE ALL LIKELY
HIGHEST AVAILABLE STANDARD DOWNLOAD SPEED 11MBPS AND 1mPBPS UPLOAD
HIGHEST AVAILABLE SUPERFAST BROADBAND - 85MBPS DOWNLOAD SPEED 20MBPS UPLOAD SPEED
Situated in the popular Trinity area of town.
There is a communal fenced area of garden to the rear of the property.
Kitchen Breakfast Room
6.58 x 3.27
Sitting Room
6.58 x 3.48
Bedroom 1
3.96 x 2.75
Bedroom 2
2.50 x 2.89
Bathroom
Brochures
Particulars- COUNCIL TAXA payment made to your local authority in order to pay for local services like schools, libraries, and refuse collection. The amount you pay depends on the value of the property.Read more about council Tax in our glossary page.
- Band: C
- PARKINGDetails of how and where vehicles can be parked, and any associated costs.Read more about parking in our glossary page.
- Private
- GARDENA property has access to an outdoor space, which could be private or shared.
- Yes
- ACCESSIBILITYHow a property has been adapted to meet the needs of vulnerable or disabled individuals.Read more about accessibility in our glossary page.
- Ask agent
Energy performance certificate - ask agent
Trinity Road, Taunton, Somerset, TA1
Add an important place to see how long it'd take to get there from our property listings.
__mins driving to your place
Notes
Staying secure when looking for property
Ensure you're up to date with our latest advice on how to avoid fraud or scams when looking for property online.
Visit our security centre to find out moreDisclaimer - Property reference TUL180019_L. The information displayed about this property comprises a property advertisement. Rightmove.co.uk makes no warranty as to the accuracy or completeness of the advertisement or any linked or associated information, and Rightmove has no control over the content. This property advertisement does not constitute property particulars. The information is provided and maintained by Greenslade Taylor Hunt, Taunton. Please contact the selling agent or developer directly to obtain any information which may be available under the terms of The Energy Performance of Buildings (Certificates and Inspections) (England and Wales) Regulations 2007 or the Home Report if in relation to a residential property in Scotland.
*This is the average speed from the provider with the fastest broadband package available at this postcode. The average speed displayed is based on the download speeds of at least 50% of customers at peak time (8pm to 10pm). Fibre/cable services at the postcode are subject to availability and may differ between properties within a postcode. Speeds can be affected by a range of technical and environmental factors. The speed at the property may be lower than that listed above. You can check the estimated speed and confirm availability to a property prior to purchasing on the broadband provider's website. Providers may increase charges. The information is provided and maintained by Decision Technologies Limited. **This is indicative only and based on a 2-person household with multiple devices and simultaneous usage. Broadband performance is affected by multiple factors including number of occupants and devices, simultaneous usage, router range etc. For more information speak to your broadband provider.
Map data ©OpenStreetMap contributors.







