
4 bedroom detached house for sale
Schofield Way Hoddesdon Hertfordshire EN11 8GF

- PROPERTY TYPE
Detached
- BEDROOMS
4
- SIZE
Ask developer
- TENUREDescribes how you own a property. There are different types of tenure - freehold, leasehold, and commonhold.Read more about tenure in our glossary page.
Ask developer
Key features
- Ready to go home
- Double doors leading from the living room to the garden
- Open plan kitchen / diner ideal for socialising
- Handy upstairs storage cupboard
- Bedroom 1 is complete with an en suite
- Corner plot with a good sized garden
- Fully furnished designed by an interior designer
- £20,000 Deposit. See T&Cs below.*
Description
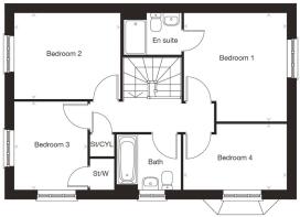
Plot 27 | The Trusdale | High Leigh Garden Village
The Trusdale is a corner plot and will appeal to growing families in search of extra space.The entrance hallway lead to a dual aspect living room which includes double doors to the garden, flooding the room with light. A spacious open plan kitchen/dining area is perfect for entertaining whilst a handy utility area offers an extra touch of convenience.
Upstairs, bedroom 1 has an en suite shower room and there are also three further well proportioned bedrooms, as well as a family bathroom offering all of the space that modern family life requires. If you’re looking for flexibility you could turn one of these rooms into a playroom or home office. The Trusdale is complete with two allocated parking spaces.
Tenure: Freehold
Estate management fee: £338.63
Council Tax Band: TBC - Council Tax Band will be confirmed by the local authority on completion of the property
Room Dimensions
- Dining Area - 3.11m × 2.23m, 10'3" × 7'4"
- Kitchen - 3.58m × 2.97m, 11'9" × 9'9"
- Living Area - 6.09m × 3.46m, 20'0" × 11'4"
- Bedroom 1 - 3.74m × 3.52m, 12'4" × 11'7"
- Bedroom 2 - 3.64m × 2.97m, 11'11" × 9'9"
- Bedroom 3 - 3.05m × 2.53m, 10'0"× 8'4"
- Bedroom 4 - 3.54m × 2.27m, 11'7" × 7'5"
- COUNCIL TAXA payment made to your local authority in order to pay for local services like schools, libraries, and refuse collection. The amount you pay depends on the value of the property.Read more about council Tax in our glossary page.
- Ask developer
- PARKINGDetails of how and where vehicles can be parked, and any associated costs.Read more about parking in our glossary page.
- Yes
- GARDENA property has access to an outdoor space, which could be private or shared.
- Yes
- ACCESSIBILITYHow a property has been adapted to meet the needs of vulnerable or disabled individuals.Read more about accessibility in our glossary page.
- Ask developer
Energy performance certificate - ask developer
- Beautifully styled 2-5 bedroom homes
- Siuated on the edge of Hoddesdon
- New school and facilities planned
- The perfect place for you to call home
Schofield Way Hoddesdon Hertfordshire EN11 8GF
Add an important place to see how long it'd take to get there from our property listings.
__mins driving to your place
Get an instant, personalised result:
- Show sellers you’re serious
- Secure viewings faster with agents
- No impact on your credit score
About Taylor Wimpey
*We have a range of offers available
- At High Leigh Garden Village, we have a range of offers available on selected homes. From a contribution towards your deposit to help with your Stamp Duty, our experienced sales team are on hand to find the best offer to suit you. Please click the “Find out more” button below to view the terms and conditions applicable to such offers.
-
*Offer available on selected plots and developments only, subject to contract and status. The amount we pay will be agreed prior to reservation with our Sales Executive. The amount we agree to pay in total will be up to 5% of the purchase price of the property you choose to buy, inclusive of any other incentives. The upgrades/options range available to you shall be dependent on the build stage of the property you choose to buy and may be subject to plot specific restrictions. The amount we agree to pay will be a one-off payment and the relevant amount shall be deducted from your completion statement. There is no cash alternative to the value of the Offer. The amount we pay may not be the same value as the deposit required for the property, or the total value of your legal fees, stamp duty, options upgrades (as applicable to the incentive) or any other fee to be paid by you. It is your responsibility to use the money from the offer to pay your deposit, legal fees, stamp duty, options upgrades or any other fee to be paid by you. Offer to be claimed at the point of reservation. Offer is subject to the purchaser confirming a full reservation on the plot being purchased. Offer may require reservation and exchange to have taken place by particular dates, which may vary for different plots. Offer may be withdrawn or altered at any time prior to payment of reservation fee on the relevant plot. Offer cannot be used in conjunction with any other offer. Offer may not be accepted by some lenders or may lead to refusal to provide a mortgage based on your circumstances. Offer is subject to your lender’s criteria and may reduce the equity to mortgage ratio. YOUR HOME MAY BE REPOSSESSED IF YOU DO NOT KEEP UP REPAYMENTS ON YOUR MORTGAGE. Our usual reservations and sales terms and conditions apply. Please speak to one of our Sales Executives for more details.
Located on the outskirts of the popular town of Hoddesdon, High Leigh Garden Village is a brand new community of beautifully styled 3-5 bedroom homes. This development will also bring a new primary school, play areas and sports facilities to the local area.
High Leigh Garden Village offers all the benefits of a quintessential garden village, combined with a quality of life where heritage and tradition blend with a contemporary outlook in the lovely Hertfordshire town of Hoddesdon.
Situated just off the A10, and just a short walk into the centre of Hoddesdon, High Leigh Garden Village is an ideal choice if you're looking for a conveniently located home for travel as well as local amenities.
Your mortgage
Notes
Staying secure when looking for property
Ensure you're up to date with our latest advice on how to avoid fraud or scams when looking for property online.
Visit our security centre to find out moreDisclaimer - Property reference 290-23073-027_4_38_100774. The information displayed about this property comprises a property advertisement. Rightmove.co.uk makes no warranty as to the accuracy or completeness of the advertisement or any linked or associated information, and Rightmove has no control over the content. This property advertisement does not constitute property particulars. The information is provided and maintained by Taylor Wimpey. Please contact the selling agent or developer directly to obtain any information which may be available under the terms of The Energy Performance of Buildings (Certificates and Inspections) (England and Wales) Regulations 2007 or the Home Report if in relation to a residential property in Scotland.
*This is the average speed from the provider with the fastest broadband package available at this postcode. The average speed displayed is based on the download speeds of at least 50% of customers at peak time (8pm to 10pm). Fibre/cable services at the postcode are subject to availability and may differ between properties within a postcode. Speeds can be affected by a range of technical and environmental factors. The speed at the property may be lower than that listed above. You can check the estimated speed and confirm availability to a property prior to purchasing on the broadband provider's website. Providers may increase charges. The information is provided and maintained by Decision Technologies Limited. **This is indicative only and based on a 2-person household with multiple devices and simultaneous usage. Broadband performance is affected by multiple factors including number of occupants and devices, simultaneous usage, router range etc. For more information speak to your broadband provider.
Map data ©OpenStreetMap contributors.






