
2 bedroom detached house for sale
Off Botley Road, Whiteley, Hampshire, SO30 2HB

- PROPERTY TYPE
Detached
- BEDROOMS
2
- SIZE
Ask developer
- TENUREDescribes how you own a property. There are different types of tenure - freehold, leasehold, and commonhold.Read more about tenure in our glossary page.
Ask developer
Key features
- Detached coach house
- Ideal first home
- Open plan living area
- Separate kitchen
- Two adaptable bedrooms
- Handy storage space
Description
Brand new two bedroom detached coach house with TWO SPACIOUS BEDROOMS and an INTEGRAL GARAGE.
Plot 100 | The Stevenson | Forest Walk, Whiteley | David Wilson Homes.
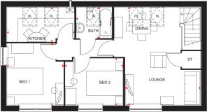
This home has a modern fitted kitchen with space for a breakfast table. The open plan living and dining area makes a great place for entertaining. There are two double bedrooms, both with space for fitted wardrobes, and a family bathroom. Comes with an integral garage and a parking space.
PEACE OF MIND WHEN BUYING NEW:
ENERGY SAVING technologies included, meaning you could enjoy lower bills.
COMPREHENSIVE WARRANTY as standard for added reassurance.
Need help with your mortgage? We can put you in touch with a New Build MORTGAGE BROKER.
Room Dimensions
- Bathroom - 1965mm x 1699mm (6'5" x 5'6")
- Bedroom 1 - 3403mm x 3123mm (11'1" x 10'2")
- Bedroom 2 - 2573mm x 3188mm (8'5" x 10'5")
- Kitchen - 3709mm x 1897mm (12'2" x 6'2")
- Lounge / Dining - 5389mm x 4764mm (17'8" x 15'7")
- COUNCIL TAXA payment made to your local authority in order to pay for local services like schools, libraries, and refuse collection. The amount you pay depends on the value of the property.Read more about council Tax in our glossary page.
- Ask developer
- PARKINGDetails of how and where vehicles can be parked, and any associated costs.Read more about parking in our glossary page.
- Yes
- GARDENA property has access to an outdoor space, which could be private or shared.
- Ask developer
- ACCESSIBILITYHow a property has been adapted to meet the needs of vulnerable or disabled individuals.Read more about accessibility in our glossary page.
- Ask developer
Energy performance certificate - ask developer
- Collection of 3 bedroom homes available
- Excellent choice of shops and restaurants on your doorstep
- Take a countryside walk around nearby Manor Farm or Botley Wood
- Discover the picturesque village of Botley nearby
Off Botley Road, Whiteley, Hampshire, SO30 2HB
Add an important place to see how long it'd take to get there from our property listings.
__mins driving to your place
Get an instant, personalised result:
- Show sellers you’re serious
- Secure viewings faster with agents
- No impact on your credit score
About David Wilson Homes
Forest Walk at Whiteley Meadows is surrounded by countryside and walking trails to enjoy, while a choice of schools and nurseries nearby makes it an ideal place to settle.
You'll also have a wide variety of high street shops, restaurants and a cinema close by, along with excellent commuter links to Southampton and Portsmouth via the M27.
Your mortgage
Notes
Staying secure when looking for property
Ensure you're up to date with our latest advice on how to avoid fraud or scams when looking for property online.
Visit our security centre to find out moreDisclaimer - Property reference 2_H8677100. The information displayed about this property comprises a property advertisement. Rightmove.co.uk makes no warranty as to the accuracy or completeness of the advertisement or any linked or associated information, and Rightmove has no control over the content. This property advertisement does not constitute property particulars. The information is provided and maintained by David Wilson Homes. Please contact the selling agent or developer directly to obtain any information which may be available under the terms of The Energy Performance of Buildings (Certificates and Inspections) (England and Wales) Regulations 2007 or the Home Report if in relation to a residential property in Scotland.
*This is the average speed from the provider with the fastest broadband package available at this postcode. The average speed displayed is based on the download speeds of at least 50% of customers at peak time (8pm to 10pm). Fibre/cable services at the postcode are subject to availability and may differ between properties within a postcode. Speeds can be affected by a range of technical and environmental factors. The speed at the property may be lower than that listed above. You can check the estimated speed and confirm availability to a property prior to purchasing on the broadband provider's website. Providers may increase charges. The information is provided and maintained by Decision Technologies Limited. **This is indicative only and based on a 2-person household with multiple devices and simultaneous usage. Broadband performance is affected by multiple factors including number of occupants and devices, simultaneous usage, router range etc. For more information speak to your broadband provider.
Map data ©OpenStreetMap contributors.





