
3 bedroom semi-detached house for sale
Off Calvin Thomas Way, Wallingford, Oxfordshire OX10 0FQ

- PROPERTY TYPE
Semi-Detached
- BEDROOMS
3
- BATHROOMS
2
- SIZE
952 sq ft
88 sq m
- TENUREDescribes how you own a property. There are different types of tenure - freehold, leasehold, and commonhold.Read more about tenure in our glossary page.
Freehold
Key features
- The Aster
- 3 Bedroom, 2 Bathroom
- 952 Sq Ft
- Garden with Patio and Tuff
- 2 Private Parking Spaces
- Ready To Move In Now
- 2.2 Acres of Sport Pitches, Playgrounds and Allotments
- Bus Routes Available and New Primary School
- Short Walk to Wallingford and 30 Minute Drive to Oxford
- 10-Year NHBC Warranty and 2-year St Edward Warranty
Description
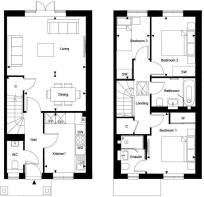
Home 303 offers 3 bedrooms, 2 bathroom and 952 SqFt of thoughtfully designed living space, featuring 3 well-proportioned bedrooms and contemporary interiors throughout.
The open-plan living and dining area flows through the double doors onto a garden, creating the perfect setting for relaxing or entertaining. A separate, carefully designed kitchen provides an ideal space for family life, hosting guests or enjoying home baking, while a convenient WC is located in the hallway.
Upstairs, bedroom 1 features ensuite and built in wardrobe. The remaining rooms offer ample space for wardrobes or chest of drawers, ensuring flexibility and comfort. A modern family bathroom serves the remaining rooms, making this home both practical and stylish for everyday living.
About Highcroft
Home 303 is a new release is nestled in Phase 3. With the completion of Phases 1 and 2, you'll become part of this thriving neighbourhood. All homes come completed with a built in wardrobe in bedroom 1, integrated appliances and carefully curated layout.
With over 18 acres of open green space on your doorstep, 1,500 metres of nature trails, over 1,000 new trees being planted and 3 new swales ponds - you'll loving coming home to Highcroft.
Highcroft offers a beautiful range of homes for all lifestyles inspired by traditional architecture and complemented by modern interior design fit for every aspect of life.
Expansive green open spaces are carefully crafted throughout the development with village ponds and beautiful landscaping. All of this only a short walk from the historic market town of Wallingford and the River Thames in South Oxfordshire.
Quality is at the heart of everything we do as part of the Berkeley Group which has over 45 years' experience of delivering award-winning neighbourhoods.
At St Edward, quality takes precedence, from choosing the right location and style of home, to the construction we practice, the materials we use and the specifications we put into our homes.
For extra peace of mind, in addition to the 10-year warranty all new homes receive, St Edward operates a 2-year policy with dedicated Customer Service Teams on hand 24 hours a day to deal with enquiries quickly and effectively.
Speak to the Highcroft sales consultants for further details. Computer generated images are indicative and are intended for illustrative purposes only. The photography is an example of our Showhomes at Highcroft.
- COUNCIL TAXA payment made to your local authority in order to pay for local services like schools, libraries, and refuse collection. The amount you pay depends on the value of the property.Read more about council Tax in our glossary page.
- Ask developer
- PARKINGDetails of how and where vehicles can be parked, and any associated costs.Read more about parking in our glossary page.
- Yes
- GARDENA property has access to an outdoor space, which could be private or shared.
- Yes
- ACCESSIBILITYHow a property has been adapted to meet the needs of vulnerable or disabled individuals.Read more about accessibility in our glossary page.
- Ask developer
Energy performance certificate - ask developer
- Traditionally styled homes with modern interiors
- Green open spaces with nature trails
- Ready to move in for Spring 2024
- A short distance to Oxford, Henley-on-Thames and Reading
Off Calvin Thomas Way, Wallingford, Oxfordshire OX10 0FQ
Add an important place to see how long it'd take to get there from our property listings.
__mins driving to your place
Get an instant, personalised result:
- Show sellers you’re serious
- Secure viewings faster with agents
- No impact on your credit score
About St. Edward
St Edward is a joint venture company owned by M&G Investments and Berkeley. It brings together the powerful combination of two companies? strengths and provides a strong vehicle for delivering fantastic communities where people enjoy a great quality of life.
Beyond this, St Edward plans to acquire and develop further sites and to deliver fantastic places where people love to live and work for many years to come.
Berkeley Group builds beautiful, successful places, blending homes, parks and public realm with great facilities to create fantastic communities where people love to live. We work together with trusted partners to tackle the shortage of good quality homes. And we make a lasting contribution to the landscape and to the communities we help create. We have built more than 19,600 homes in the last five years, across London, Birmingham and the South of England.
Berkeley Group is made up of six autonomous companies: Berkeley Homes, St Edward, St George, St James, St Joseph and St William.
Your mortgage
Notes
Staying secure when looking for property
Ensure you're up to date with our latest advice on how to avoid fraud or scams when looking for property online.
Visit our security centre to find out moreDisclaimer - Property reference 303_090226. The information displayed about this property comprises a property advertisement. Rightmove.co.uk makes no warranty as to the accuracy or completeness of the advertisement or any linked or associated information, and Rightmove has no control over the content. This property advertisement does not constitute property particulars. The information is provided and maintained by St. Edward. Please contact the selling agent or developer directly to obtain any information which may be available under the terms of The Energy Performance of Buildings (Certificates and Inspections) (England and Wales) Regulations 2007 or the Home Report if in relation to a residential property in Scotland.
*This is the average speed from the provider with the fastest broadband package available at this postcode. The average speed displayed is based on the download speeds of at least 50% of customers at peak time (8pm to 10pm). Fibre/cable services at the postcode are subject to availability and may differ between properties within a postcode. Speeds can be affected by a range of technical and environmental factors. The speed at the property may be lower than that listed above. You can check the estimated speed and confirm availability to a property prior to purchasing on the broadband provider's website. Providers may increase charges. The information is provided and maintained by Decision Technologies Limited. **This is indicative only and based on a 2-person household with multiple devices and simultaneous usage. Broadband performance is affected by multiple factors including number of occupants and devices, simultaneous usage, router range etc. For more information speak to your broadband provider.
Map data ©OpenStreetMap contributors.





