4 bedroom semi-detached house for sale
Fairfield Road, Stockton Heath, Warrington, WA4

- PROPERTY TYPE
Semi-Detached
- BEDROOMS
4
- BATHROOMS
2
- SIZE
Ask agent
Description
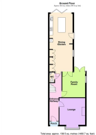
Accommodation -
Entrance Porch - 1.37m x 0.66m (4'5" x 2'1") - Quarry tiled step, courtesy light and a painted frosted glazed original door with matching panels adjacent and above leading to the:
Entrance Hallway - 7.08m x 1.77m (23'2" x 5'9") - Charming, warm reception featuring polished wooden flooring, panelled walls to dado height, ceiling coving and a period reflective central heating radiator.
Wc. - 1.46m x 0.71m (4'9" x 2'3") - Two piece suite including a wash hand basin with 'Victorian' style splash back tiling and a low level WC. Continuation of the polished wooded flooring, electric consumer unit and an extractor fan.
Lounge - 5.04m x 3.76m (16'6" x 12'4") - A beautiful reception room of character including a cast iron fireplace with a living flame coal effect gas fire with a decorative tile inset, contrasting green tiled hearth and an ebonised style wooden surround, ceiling coving, ceiling rose, picture rail, two wall light points, period reflective central heating radiator and a PVC double glazed square bay window overlooking the front with shutters.
Family Room - 3.66m x 3.35m (12'0" x 10'11") - Another delightful reception room including a continuation of the polished wooden flooring, PVC double glazed 'French' doors opening out onto the side courtyard, PVC double glazed window overlooking the side elevation, ceiling rose, ceiling coving, picture rail, contemporary style vertical central heating radiator and glazed doors to the:
Breakfast Kitchen & Dining Room - 8.43m x 3.39m (27'7" x 11'1") - A striking, open-plan heart-beat to the house including a fine range of matching base, drawer and full height units finished in a matt grey including a utility area housing the washing machine and dryer, larder cupboard, further storage display shelving. In addition, there are integrated appliances comprising a 'Bosch' induction hob with an illuminated chimney extractor above, twin ovens, dishwasher and a recess for an 'American' style fridge/freezer with further storage above. Furthermore, there is a centre island with a granite work surface, further cupboard storage below and seating for four persons. Other elements worthy of mention include a 'Belfast' sink unit with a 'hot water' tap set into a granite work surface with a 'Victorian' style tile splashback, double glazed bi-folding doors opening out onto the outdoor kitchen and courtyard, continuation of the polished wooden flooring, inset lighting, two PVC double glazed windows to the side elevation and a PVC double glazed door again to the side and both a standard central heating radiator and a vertical central heating radiator.
First Floor -
Landing - 9.73m x 1.78m (31'11" x 5'10") - Split into a front and rear landing with panelled walls to dado height, ceiling corbels, inset lighting, ceiling coving and two loft accesses.
Bedroom One - 4.13m x 3.93m (13'6" x 12'10") - Range of freestanding furniture with pelmet lighting and opaque glazed doors providing hanging, shelving and drawer storage, polished wooden flooring, ceiling coving, two wall light points, PVC double glazed window to the front elevation with shutters central heating radiator and a door leading to the:
En-Suite Shower Room - 3.90m x 1.01m (12'9" x 3'3") - White three piece suite including a white brick tiled cubicle with a thermostatic shower, circular wash hand basin with black mixer tap mounted onto a timber surface with cupboard storage below and mirror above, complete with a low level WC. Part tiled walls to dado height, 'Victorian' style tiled flooring, inset lighting, ceiling coving, shavers point, matt black vertical central heating radiator, extractor fan and a PVC frosted double glazed window to the side elevation.
Bedroom Two - 3.70m x 3.36m (12'1" x 11'0") - Polished wooden flooring, panelled walls to dado height, vertical central heating radiator and a PVC double glazed window overlooking the rear.
Bedroom Three - 3.94m x 2.37m (12'11" x 7'9") - Fitted desk with shelving above set adjacent to the chimney breast, PVC double glazed window to the side elevation with shutters, ceiling coving and a vertical central heating radiator.
Bedroom Four - 3.35m x 2.42mj (10'11" x 7'11"j) - PVC double glazed window overlooking the large garden, ceiling coving and a vertical central heating radiator.
Bathroom - 2.36m x 1.80m (7'8" x 5'10") - Replaced three piece suite including a panelled bath with a thermostatic shower above and screen, wash hand basin with a waterfall mixer tap, splash back tiling and an illuminated mirrored cabinet above, complete with a low level WC. Engineered wood effect flooring, inset lighting, part tiled walls, chrome ladder heated towel rail and an extractor fan.
Outside - Boasting an unusually large south facing garden to the rear featuring separate themed areas including the outdoor kitchen being the stand-out feature. Set beneath an open-plan covered timber construction, the kitchen comprises a stainless steel single sink drainer unit within a tiled work surface with cupboard storage below, in addition to both a gas 'Ultar' and traditional 'Weber' barbecues. Furthermore, there is a 'York' stone patio ideal for 'Al Fresco' dining with an adjacent timber panelled feature with lighting. Beyond this area, the garden has been further landscaped with raised sleepers providing well stocked borders, a large turfed garden and a further patio area at the rear ideal for the hardstanding of a garden room. In conclusion, there is a further generous space at the side which again is paved providing further scope and flexibility. The front includes a block paved driveway providing off road parking set behind a dwarf brick wall with 'Highbank' (Property Name) etched into it.
Tenure - Leasehold dated 16 August 1950, with a Term of 999 years (less 1 year) from 17 April 1897 and an annual ground rent of £4.50.
Council Tax - Band 'D' - £2,301.31 (2025/2026)
Local Authority - Warrington Borough Council.
Services - No tests have been made of main services, heating systems, or associated appliances. Neither has confirmation been obtained from the statutory bodies of the presence of these services. We cannot, therefore, confirm that they are in working order and any prospective purchaser is advised to obtain verification from their solicitor or surveyor.
Postcode - WA4 2BU
Possession - Vacant Possession upon Completion.
Viewing - Strictly by prior appointment with Cowdel Clarke, Stockton Heath. 'Video Tours' can be viewed prior to a physical viewing.
Brochures
Fairfield Road, Stockton Heath, Warrington, WA4Brochure- COUNCIL TAXA payment made to your local authority in order to pay for local services like schools, libraries, and refuse collection. The amount you pay depends on the value of the property.Read more about council Tax in our glossary page.
- Band: D
- PARKINGDetails of how and where vehicles can be parked, and any associated costs.Read more about parking in our glossary page.
- Driveway
- GARDENA property has access to an outdoor space, which could be private or shared.
- Yes
- ACCESSIBILITYHow a property has been adapted to meet the needs of vulnerable or disabled individuals.Read more about accessibility in our glossary page.
- Ask agent
Fairfield Road, Stockton Heath, Warrington, WA4
Add an important place to see how long it'd take to get there from our property listings.
__mins driving to your place
Get an instant, personalised result:
- Show sellers you’re serious
- Secure viewings faster with agents
- No impact on your credit score
Your mortgage
Notes
Staying secure when looking for property
Ensure you're up to date with our latest advice on how to avoid fraud or scams when looking for property online.
Visit our security centre to find out moreDisclaimer - Property reference 34450610. The information displayed about this property comprises a property advertisement. Rightmove.co.uk makes no warranty as to the accuracy or completeness of the advertisement or any linked or associated information, and Rightmove has no control over the content. This property advertisement does not constitute property particulars. The information is provided and maintained by Cowdel Clarke, Stockton Heath. Please contact the selling agent or developer directly to obtain any information which may be available under the terms of The Energy Performance of Buildings (Certificates and Inspections) (England and Wales) Regulations 2007 or the Home Report if in relation to a residential property in Scotland.
*This is the average speed from the provider with the fastest broadband package available at this postcode. The average speed displayed is based on the download speeds of at least 50% of customers at peak time (8pm to 10pm). Fibre/cable services at the postcode are subject to availability and may differ between properties within a postcode. Speeds can be affected by a range of technical and environmental factors. The speed at the property may be lower than that listed above. You can check the estimated speed and confirm availability to a property prior to purchasing on the broadband provider's website. Providers may increase charges. The information is provided and maintained by Decision Technologies Limited. **This is indicative only and based on a 2-person household with multiple devices and simultaneous usage. Broadband performance is affected by multiple factors including number of occupants and devices, simultaneous usage, router range etc. For more information speak to your broadband provider.
Map data ©OpenStreetMap contributors.





