
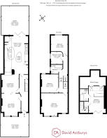
5 bedroom terraced house for sale
Barrington Road, Crouch End N8

- PROPERTY TYPE
Terraced
- BEDROOMS
5
- BATHROOMS
2
- SIZE
1,791 sq ft
166 sq m
- TENUREDescribes how you own a property. There are different types of tenure - freehold, leasehold, and commonhold.Read more about tenure in our glossary page.
Freehold
Key features
- Open Plan Kitchen Diner
- Landscaped Private Garden
- 5 Bedroom & 2 Bathroom & Downstairs W.C.
- Through Lounge
- Views Over Priory Park
- Period Character Throughout
- Chain Free
- Rokesly Infant & Nursery School 0.4 Miles
Description
Warm, inviting and rich in character, this exceptional home offers an ideal layout for modern family living. The semi open-plan ground floor delivers superb flexibility, beginning with a generous front reception room featuring a striking bay window that floods the space with natural light. This flows seamlessly into a second living area and an impressive extended kitchen/dining room, complete with a central island, seating area and a cleverly designed hub including a built-in work-from-home space on one side and a downstairs WC on the other creating a true social and family hub.
Bi-fold doors open directly onto the beautifully landscaped garden, providing an effortless indoor-outdoor connection, perfect for entertaining, relaxing or family life.
The first floor comprises three well-proportioned double bedrooms, a dedicated study/home office/single room and a family bathroom. The top floor is home to a thoughtfully designed principal suite, enjoying calm, leafy views over Priory Park, an en suite shower room, walk-in wardrobe and generous eaves storage.
Barrington Road is a highly regarded residential street, perfectly positioned for the vibrant lifestyle that Crouch End is renowned for. The Broadway is just moments away, offering an outstanding selection of independent cafés, restaurants, gastro pubs, and boutique shops, along with a popular arts scene centred around the Parkland Walk and Hornsey Town Hall.
For families, the area is exceptionally well served by highly regarded schools, while green spaces such as Priory Park, Alexandra Palace and the Parkland Walk are all within easy reach as well as Park Road Leisure Centre & Lido.
Excellent transport links include nearby bus routes providing swift access to Finsbury Park, Highgate, Muswell Hill and central London, with Underground and National Rail connections close at hand.
Freehold
Council Tax Band - F
- COUNCIL TAXA payment made to your local authority in order to pay for local services like schools, libraries, and refuse collection. The amount you pay depends on the value of the property.Read more about council Tax in our glossary page.
- Ask agent
- PARKINGDetails of how and where vehicles can be parked, and any associated costs.Read more about parking in our glossary page.
- Ask agent
- GARDENA property has access to an outdoor space, which could be private or shared.
- Yes
- ACCESSIBILITYHow a property has been adapted to meet the needs of vulnerable or disabled individuals.Read more about accessibility in our glossary page.
- Ask agent
Barrington Road, Crouch End N8
Add an important place to see how long it'd take to get there from our property listings.
__mins driving to your place
Get an instant, personalised result:
- Show sellers you’re serious
- Secure viewings faster with agents
- No impact on your credit score
Your mortgage
Notes
Staying secure when looking for property
Ensure you're up to date with our latest advice on how to avoid fraud or scams when looking for property online.
Visit our security centre to find out moreDisclaimer - Property reference 102708044495. The information displayed about this property comprises a property advertisement. Rightmove.co.uk makes no warranty as to the accuracy or completeness of the advertisement or any linked or associated information, and Rightmove has no control over the content. This property advertisement does not constitute property particulars. The information is provided and maintained by David Astburys Ltd, Crouch End. Please contact the selling agent or developer directly to obtain any information which may be available under the terms of The Energy Performance of Buildings (Certificates and Inspections) (England and Wales) Regulations 2007 or the Home Report if in relation to a residential property in Scotland.
*This is the average speed from the provider with the fastest broadband package available at this postcode. The average speed displayed is based on the download speeds of at least 50% of customers at peak time (8pm to 10pm). Fibre/cable services at the postcode are subject to availability and may differ between properties within a postcode. Speeds can be affected by a range of technical and environmental factors. The speed at the property may be lower than that listed above. You can check the estimated speed and confirm availability to a property prior to purchasing on the broadband provider's website. Providers may increase charges. The information is provided and maintained by Decision Technologies Limited. **This is indicative only and based on a 2-person household with multiple devices and simultaneous usage. Broadband performance is affected by multiple factors including number of occupants and devices, simultaneous usage, router range etc. For more information speak to your broadband provider.
Map data ©OpenStreetMap contributors.






