
4 bedroom semi-detached house for sale
Fitzpiers Close, Taw Hill, Swindon, SN25

- PROPERTY TYPE
Semi-Detached
- BEDROOMS
4
- BATHROOMS
3
- SIZE
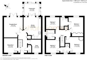
1,389 sq ft
129 sq m
- TENUREDescribes how you own a property. There are different types of tenure - freehold, leasehold, and commonhold.Read more about tenure in our glossary page.
Freehold
Key features
- GUIDE PRICE £425,000
- NO CHAIN
- FOUR DOUBLE BEDROOMS
- TWO ENSUITES
- SECLUDED LOCATION
- EV CHARGER
- DRIVEWAY PARKING FOR SEVERAL CARS
- GARAGE
- PRIVATE GARDEN
Description
The ground floor features a welcoming layout with excellent flow between rooms. A well-proportioned lounge provides a comfortable space for relaxing and entertaining, while the separate dining room is perfectly suited to family meals or hosting guests. The kitchen is spacious and functional, with direct access to a garden room. A study on the ground floor offers a quiet workspace or potential playroom, complemented by a convenient ground floor WC.
Upstairs, the first floor comprises; four double bedrooms, each offering flexibility for family members, guests, or home working. The layout is served by a family bathroom, ensuite to master and a third, jack and jill, bathroom, enhancing practicality for a busy household.
Externally, the property benefits from a secluded and private rear garden, perfect for entertaining.
To the front of the property, you’ll find driveway parking for two cars, plus the added benefit of an EV charger. There is also a garage to the right of the property with parking for additional vehicles.
This thoughtfully arranged home combines versatile living areas with comfortable bedroom accommodation, making it an excellent choice for families seeking space, flexibility, and natural light.
Taw Hill is one of the most mature parts of Priory Vale, offering a settled environment ideal for families and professionals. The property sits within easy reach of St Francis CofE Primary School, one of the area’s most respected schools. There are plenty of transport links to the A419 and M4, plus direct trains to London Paddington from Swindon Train Station. Viewings highly recommended.
- COUNCIL TAXA payment made to your local authority in order to pay for local services like schools, libraries, and refuse collection. The amount you pay depends on the value of the property.Read more about council Tax in our glossary page.
- Band: E
- PARKINGDetails of how and where vehicles can be parked, and any associated costs.Read more about parking in our glossary page.
- Yes
- GARDENA property has access to an outdoor space, which could be private or shared.
- Yes
- ACCESSIBILITYHow a property has been adapted to meet the needs of vulnerable or disabled individuals.Read more about accessibility in our glossary page.
- Ask agent
Fitzpiers Close, Taw Hill, Swindon, SN25
Add an important place to see how long it'd take to get there from our property listings.
__mins driving to your place
Get an instant, personalised result:
- Show sellers you’re serious
- Secure viewings faster with agents
- No impact on your credit score
Your mortgage
Notes
Staying secure when looking for property
Ensure you're up to date with our latest advice on how to avoid fraud or scams when looking for property online.
Visit our security centre to find out moreDisclaimer - Property reference ESN103706. The information displayed about this property comprises a property advertisement. Rightmove.co.uk makes no warranty as to the accuracy or completeness of the advertisement or any linked or associated information, and Rightmove has no control over the content. This property advertisement does not constitute property particulars. The information is provided and maintained by Richard James, North Swindon. Please contact the selling agent or developer directly to obtain any information which may be available under the terms of The Energy Performance of Buildings (Certificates and Inspections) (England and Wales) Regulations 2007 or the Home Report if in relation to a residential property in Scotland.
*This is the average speed from the provider with the fastest broadband package available at this postcode. The average speed displayed is based on the download speeds of at least 50% of customers at peak time (8pm to 10pm). Fibre/cable services at the postcode are subject to availability and may differ between properties within a postcode. Speeds can be affected by a range of technical and environmental factors. The speed at the property may be lower than that listed above. You can check the estimated speed and confirm availability to a property prior to purchasing on the broadband provider's website. Providers may increase charges. The information is provided and maintained by Decision Technologies Limited. **This is indicative only and based on a 2-person household with multiple devices and simultaneous usage. Broadband performance is affected by multiple factors including number of occupants and devices, simultaneous usage, router range etc. For more information speak to your broadband provider.
Map data ©OpenStreetMap contributors.





