4 bedroom detached house for sale
The Street, Steeple

- PROPERTY TYPE
Detached
- BEDROOMS
4
- BATHROOMS
3
- SIZE
Ask agent
- TENUREDescribes how you own a property. There are different types of tenure - freehold, leasehold, and commonhold.Read more about tenure in our glossary page.
Freehold
Key features
- Four Bedroom Detached House
- Shingle Driveway Providing Off Road Parking for Numerous Vehicles
- Detached Double Garage
- Open Plan Family Room/Lounge/Kitchen/Dining Room
- Study
- Snug/Dining Room
- En-Suite to Bedroom One
- Ground Floor Cloakroom
- Sizeable Rear Garden
- EPC - TBC
Description
The accommodation commences with a welcoming entrance hall which provides access to the cloakroom, study/snug as well as the impressive open plan lounge/kitchen/dining room which includes a pantry cupboard and further units fitted to eye and base level with integrated appliances and a matching island with a breakfast bar and bi-folding doors opening to the rear garden making it an ideal space for spending time as a family or entertaining guests. To the first floor there are four bedrooms with bedroom one benefitting from an en-suite, and there is a separate family bathroom serving the remaining bedrooms.
Externally the adjoining rear garden provides plenty of outdoor space. There is a gated driveway to the side, a paved patio seating area, bark play area and a decorative raised flower bed with the remainder laid to lawn. To the front of the property, there is ample off road parking for numerous vehicles on the driveway, and access to the detached double garage. Viewing comes highly recommend to appreciate the property on offer.
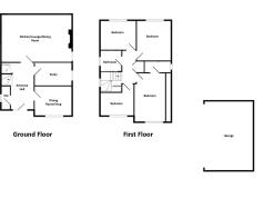
Accommodation -
Ground Floor -
Hallway -
Cloakroom - 2.3m x 0.9m (7'6" x 2'11") -
Snug/Dining Room - 3.6m x 2.9m (11'9" x 9'6") -
Study - 3.6m x 2.0m (11'9" x 6'6") -
Open Plan Kitchen/Lounge/Dining Room - 6.7m x 5.0m (21'11" x 16'4") -
First Floor -
Landing -
Bedroom One - 4.8m x 3.0m (15'8" x 9'10") -
En-Suite - 2.6m x 1.1m (8'6" x 3'7") -
Bedroom Two - 3.9m x 3.3m (12'9" x 10'9") -
Bedroom Three - 3.2m x 2.8m (10'5" x 9'2") -
Bedroom Four - 2.8m x 2.3m (9'2" x 7'6") -
Family Bathroom - 2.1m x 1.0m (6'10" x 3'3") -
Exterior -
Double Garage -
Wrokshop -
Rear Garden -
Frontage -
Viewings - Strictly by appointment only through the selling agent Paul Mason Associates .
Important Notices - We wish to inform all prospective purchasers that we have prepared these particulars including text, photographs and measurements as a general guide. Room sizes should not be relied upon for carpets and furnishings. We have not carried out a survey or tested the services, appliances and specific fittings. These particulars do not form part of a contract and must not be relied upon as statement or representation of fact.
Brochures
The Street, SteepleBrochure- COUNCIL TAXA payment made to your local authority in order to pay for local services like schools, libraries, and refuse collection. The amount you pay depends on the value of the property.Read more about council Tax in our glossary page.
- Ask agent
- PARKINGDetails of how and where vehicles can be parked, and any associated costs.Read more about parking in our glossary page.
- Yes
- GARDENA property has access to an outdoor space, which could be private or shared.
- Yes
- ACCESSIBILITYHow a property has been adapted to meet the needs of vulnerable or disabled individuals.Read more about accessibility in our glossary page.
- Ask agent
Energy performance certificate - ask agent
The Street, Steeple
Add an important place to see how long it'd take to get there from our property listings.
__mins driving to your place
Get an instant, personalised result:
- Show sellers you’re serious
- Secure viewings faster with agents
- No impact on your credit score
Your mortgage
Notes
Staying secure when looking for property
Ensure you're up to date with our latest advice on how to avoid fraud or scams when looking for property online.
Visit our security centre to find out moreDisclaimer - Property reference 34455326. The information displayed about this property comprises a property advertisement. Rightmove.co.uk makes no warranty as to the accuracy or completeness of the advertisement or any linked or associated information, and Rightmove has no control over the content. This property advertisement does not constitute property particulars. The information is provided and maintained by Paul Mason Associates, Latchingdon. Please contact the selling agent or developer directly to obtain any information which may be available under the terms of The Energy Performance of Buildings (Certificates and Inspections) (England and Wales) Regulations 2007 or the Home Report if in relation to a residential property in Scotland.
*This is the average speed from the provider with the fastest broadband package available at this postcode. The average speed displayed is based on the download speeds of at least 50% of customers at peak time (8pm to 10pm). Fibre/cable services at the postcode are subject to availability and may differ between properties within a postcode. Speeds can be affected by a range of technical and environmental factors. The speed at the property may be lower than that listed above. You can check the estimated speed and confirm availability to a property prior to purchasing on the broadband provider's website. Providers may increase charges. The information is provided and maintained by Decision Technologies Limited. **This is indicative only and based on a 2-person household with multiple devices and simultaneous usage. Broadband performance is affected by multiple factors including number of occupants and devices, simultaneous usage, router range etc. For more information speak to your broadband provider.
Map data ©OpenStreetMap contributors.





