
Plot for sale
Bury Lane, Hatfield Peverel, Chelmsford
- PROPERTY TYPE
Plot
- SIZE
Ask agent
Key features
- Planning application number 25/02590/FUL
- Plans passed for a three bedroom detached house with open plan living room/kitchen and formal lounge
- Ensuite, family bathroom and ground floor cloakroom
- Close to train station (0.2 miles walking distance)
- Opposite recreational park
- All offers by informal tender closing date 10am on 3rd March 2026
- Approx. 37m X 9m (120' x 30') Plot
Description
The plot is situated opposite a recreational park only 0.2 mile walk from a mainline station with trains into London Liverpool Street
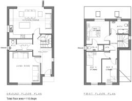
The planning permission is for a three-bedroom detached house. The accommodation comprises an open plan living room/kitchen area to the rear and formal lounge to the front. There is ensuite facilities to the master bedroom plus a family bathroom and ground floor cloakroom. Further information is available on Braintree Council website (application number is 25/02590/FUL).
The plot is for sale on an informal tender basis. All offers are to be submitted by 10am on the 3rd March 2026 using the enclosed form.
Distances - Hatfield Peverel Train Station - 0.2 miles
Hatfield Peverel School - 1.1 miles
A12 - 0.6 miles
Chelmsford City - 6.5 miles
London Stansted Airport - 20.4 miles
All mileages are approx.
Condition Of Sale - The following has to be agreed by the new owners:
Demolish the garage and shed within the development plot
Move existing oil tank from the development plot to 4 Bury Lane inside retained garden
Install new boundary fence and garden gate for 4 Bury Lane.
Install new driveway for 4 Bury Lane (including altering the kerb to a dropped kerb and remove some of existing shrubbery.
All the above needs to be completed before work commences on the new plot and these works to be carefully arranged with both the owner and tenant of 4 Bury Lane.
Viewings - Strictly by appointment only through the selling agent Paul Mason Associates .
Important Notices - We wish to inform all prospective purchasers that we have prepared these particulars including text, photographs and measurements as a general guide. Room sizes should not be relied upon for carpets and furnishings. We have not carried out a survey or tested the services, appliances and specific fittings. These particulars do not form part of a contract and must not be relied upon as statement or representation of fact.
Informal Tender Form - Those wishing to make an offer for the above property should complete the form set out below and send it to Paul Mason Associates, Bruce House, 17 The Street, Hatfield Peverel, Essex CM3 2DP to arrive not later than 10am on Tuesday 3rd March 2026. Please clearly write the address of the above property on the envelope so it is not opened prior to the appointed time. Please also put your name on the back of the envelope so that you can check by telephone that it has arrived. The owners do not commit themselves to accepting the highest, or any offers. All offers will be treated in the strictest confidence.
1.Name: ……………………………………………
2.Address
…………………………………………………
…………………………………………………
3.Telephone No:
(Home) ………………………………..
(Mobile) ………………………………......
4.Amount of offer (Please make this an uneven figure):
…………………………….. subject to contract.
Condition of sale stated on the property details have been agreed.
5.Can you exchange contracts within one month of date of issue of the draft contract.
……………………………………………………
6.Is your purchase dependent on the sale of another property?
……………………………………………………
7.How will you be funding your purchase of this property – ie: cash or mortgage?
…………………………………………………………………….
8.Is your offer subject to survey?
………………………………………………………………….
9.Any other information you feel relevant to the purchase of the property.
………………………………………………………………………………………………………..
………………………………………………………………………………………………………..
Sign…………………………………...................
Print Name……………………………………..
Sign…………………………………...................
Print Name……………………………………..
Date …………………………………................
Brochures
Bury Lane, Hatfield Peverel, ChelmsfordBrochureBury Lane, Hatfield Peverel, Chelmsford
NEAREST STATIONS
Distances are straight line measurements from the centre of the postcode- Hatfield Peverel Station0.2 miles
- Witham Station2.9 miles
- White Notley Station4.2 miles

Notes
Disclaimer - Property reference 34455215. The information displayed about this property comprises a property advertisement. Rightmove.co.uk makes no warranty as to the accuracy or completeness of the advertisement or any linked or associated information, and Rightmove has no control over the content. This property advertisement does not constitute property particulars. The information is provided and maintained by Paul Mason Associates, Essex. Please contact the selling agent or developer directly to obtain any information which may be available under the terms of The Energy Performance of Buildings (Certificates and Inspections) (England and Wales) Regulations 2007 or the Home Report if in relation to a residential property in Scotland.
Map data ©OpenStreetMap contributors.






