
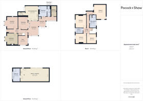
4 bedroom detached house for sale
High Street, Cottenham, Cambridge, Cambridgeshire

- PROPERTY TYPE
Detached
- BEDROOMS
4
- BATHROOMS
3
- SIZE
Ask agent
- TENUREDescribes how you own a property. There are different types of tenure - freehold, leasehold, and commonhold.Read more about tenure in our glossary page.
Freehold
Key features
- Reception hall
- Sitting room with open fire
- Dining room and family room
- Study and conservatory
- Kitchen breakfast room and Utility room
- Cloaks wc shower room
- Four large bedrooms
- Family bathroom and Luxury en-suite bathroom with roll top bath
- Barn style annexe with fitted kitchen and luxury wet room
- Single garage
Description
Stained glass entrance door to:
Reception hall
Attractive Victorian tiled floor, stairs rising to the first floor, radiator, coved cornice.
Sitting room
3.91 m x 3.66 m (12'10" x 12'0")
Bay window to the front, feature open fireplace with slate hearth, beech block flooring, coved cornice.
Dining room
3.86 m x 3.63 m (12'8" x 11'11")
Bay window to the front, feature brick open fireplace with slate hearth, beech block effect flooring, coved cornice, radiator.
Study
3.12 m x 3.07 m (10'3" x 10'1")
Multi pane sash windows to the side and rear, radiator, oak block flooring.
Family room
3.94 m x 3.07 m (12'11" x 10'1")
Bay window to the rear, oak flooring, double radiator, coved cornice, multi pane glazed door to:
Kitchen breakfast room
4.80 m x 4.04 m (15'9" x 13'3")
Extremely well fitted range of top quality stainless steel units set under a matching stainless steel work surface, inset single drainer sink unit, range of matching base units. Four burner induction hob, and two matching Neff ovens. Freestanding dishwasher. Central trolley style island unit. Window to the rear, double French doors with glazed side panel opening to a small courtyard style garden. Attractive period Quarry tiled floor.
Pantry
2.18 m x 1.12 m (7'2" x 3'8")
Pendant light point, shelving to walls.
Utility room
3.33 m x 2.69 m (10'11" x 8'10")
Wood block effect worksurface set in to the original chimney breast with inset single drainer stainless steel sink unit, double cupboard beneath, space and plumbing for washing machine and tumble drier. Tiled floor, double doors to conservatory, door to:
Shower room
Fitted white suite with wall mounted wash basin, close coupled wc, and large shower cubicle. Part ceramic tiling to walls,.
Lean too conservatory
4.57 m x 3.35 m (15'0" x 11'0")
Timber construction, with windows to side and rear, door to garden.
Workshop
3.45 m x 1.83 m (11'4" x 6'0")
Power and light connected.
First floor landing
Multi pane sash window to the rear, door to
Inner hall to main suite
Tongue and groove timber ceiling, radiator, window to the front, door to:
Bedroom one
4.24 m x 4.01 m (13'11" x 13'2")
Multi aspect windows to the front, rear and side, radiator, coved cornice, access to loft space, door to:
Luxury en-suite
White suite with feature free standing roll top bath, and timber feet, bidet, close coupled wc and pedestal wash basin, double shower cubicle with fitted shower, tongue and groove panelling to the ceiling, heated towel rail radiator, window to the rear. Single fitted airing cupboard. Oak flooring.
Bedroom two
4.09 m x 3.61 m (13'5" x 11'10")
Window to the front, double radiator and stripped wooden floor.
Bedroom three
3.58 m x 3.28 m (11'9" x 10'9")
Window to the front, double radiator and stripped wooden floor.
Bedroom four
3.08 m x 3.08 m (10'1" x 10'1")
Window to the rear, double radiator and stripped wooden floor.
Family bathroom
Fitted white suite with counter set wash basin, double cupboard beneath, close coupled wc, bath with shower above, stripped wooden floor, window to the front, recessed spotlights to the ceiling, heated towel rail radiator. Part ceramic tiled splashback.
Barn style annexe
Main reception area
8.69 m x 4.04 m (28'6" x 13'3")
An impressive space with full volume ceiling, and exposed timber beams, bi fold doors to one wall, two wall mounted electric heaters. Feature wood burning stove on slate hearth.
Kitchen area
Well fitted range of units under a quartz work surface, inset stainless steel sink unit, double base unit. Aeg single combi oven, and matching ceramic hob. Two Velux roof lights. Door to:
Luxury shower wet room
An impressive room with Aqualisa shower, wall mounted wc and wash basin, ceramic tiling in part, counter top with base units and full height cupboard. Electric kickspace heater. Full volume ceiling and Velux roof light.
Outside
The front of the home is well screened by a mature Beech hedge. gated pedestrian access to a small garden area. Drive way to the side providing two off road parking spaces, leading to the single garage. Double timber doors, power and light connected.
Rear garden is of a good size, with lawn area, flower and shrub borders, and several mature trees. Timber outbuildings, at present in a need of rebuilding.
Council Tax
House F and Annexe A
Services
All mains services are connected
Tenure
Freehold
Viewing
By prior appointment with Pocock and Shaw
Brochures
Brochure of Holme Dene. 294 High StreetKFB- COUNCIL TAXA payment made to your local authority in order to pay for local services like schools, libraries, and refuse collection. The amount you pay depends on the value of the property.Read more about council Tax in our glossary page.
- Band: F
- PARKINGDetails of how and where vehicles can be parked, and any associated costs.Read more about parking in our glossary page.
- Yes
- GARDENA property has access to an outdoor space, which could be private or shared.
- Yes
- ACCESSIBILITYHow a property has been adapted to meet the needs of vulnerable or disabled individuals.Read more about accessibility in our glossary page.
- No wheelchair access
Energy performance certificate - ask agent
High Street, Cottenham, Cambridge, Cambridgeshire
Add an important place to see how long it'd take to get there from our property listings.
__mins driving to your place
Get an instant, personalised result:
- Show sellers you’re serious
- Secure viewings faster with agents
- No impact on your credit score
Your mortgage
Notes
Staying secure when looking for property
Ensure you're up to date with our latest advice on how to avoid fraud or scams when looking for property online.
Visit our security centre to find out moreDisclaimer - Property reference PCZ-43030814. The information displayed about this property comprises a property advertisement. Rightmove.co.uk makes no warranty as to the accuracy or completeness of the advertisement or any linked or associated information, and Rightmove has no control over the content. This property advertisement does not constitute property particulars. The information is provided and maintained by Pocock & Shaw, Cambridge. Please contact the selling agent or developer directly to obtain any information which may be available under the terms of The Energy Performance of Buildings (Certificates and Inspections) (England and Wales) Regulations 2007 or the Home Report if in relation to a residential property in Scotland.
*This is the average speed from the provider with the fastest broadband package available at this postcode. The average speed displayed is based on the download speeds of at least 50% of customers at peak time (8pm to 10pm). Fibre/cable services at the postcode are subject to availability and may differ between properties within a postcode. Speeds can be affected by a range of technical and environmental factors. The speed at the property may be lower than that listed above. You can check the estimated speed and confirm availability to a property prior to purchasing on the broadband provider's website. Providers may increase charges. The information is provided and maintained by Decision Technologies Limited. **This is indicative only and based on a 2-person household with multiple devices and simultaneous usage. Broadband performance is affected by multiple factors including number of occupants and devices, simultaneous usage, router range etc. For more information speak to your broadband provider.
Map data ©OpenStreetMap contributors.









