
Brickworth Place, Swindon, SN3

- PROPERTY TYPE
Semi-Detached
- BEDROOMS
3
- BATHROOMS
1
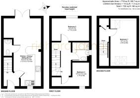
- SIZE
797 sq ft
74 sq m
- TENUREDescribes how you own a property. There are different types of tenure - freehold, leasehold, and commonhold.Read more about tenure in our glossary page.
Ask agent
Key features
- NO ONWARD CHAIN
- OPEN PLAN LOUNGE/DINING/KITCHEN SPACE
- ALLOCATED PARKING
- EASY ACCESS TO M4
- CLOSE TO GREAT WESTERN HOSPITAL
- THREE BEDROOMS
- SUITS A COUPLE OR YOUNG FAMILY
- GOOD CONDITION THROUGHOUT
Description
This three bedroom, three storey semi-detached home is well located in a quiet cul-de-sac in Badbury Park and is offered for sale with NO ONWARD CHAIN! This well maintained property would suit a couple or young family and is just a short distance from Great Western Hospital.
The ground floor living accomodation comprises; Entrance hall, a modern and open plan living/dining room/kitchen with french doors leading and giving views of the rear garden plus a W.C.
The first floor offers; first floor landing, a large second bedroom, bedroom three which is a good size and a modern family bathroom.
The second floor comprises; first floor landing and a large main bedroom.
To the rear is an enclosed rear garden with a patio seating area leading to a lawn, there is also gated side access.
This property offers allocated parking for multiple vehicles.
- COUNCIL TAXA payment made to your local authority in order to pay for local services like schools, libraries, and refuse collection. The amount you pay depends on the value of the property.Read more about council Tax in our glossary page.
- Band: TBC
- PARKINGDetails of how and where vehicles can be parked, and any associated costs.Read more about parking in our glossary page.
- Driveway
- GARDENA property has access to an outdoor space, which could be private or shared.
- Private garden
- ACCESSIBILITYHow a property has been adapted to meet the needs of vulnerable or disabled individuals.Read more about accessibility in our glossary page.
- Ask agent
Brickworth Place, Swindon, SN3
Add an important place to see how long it'd take to get there from our property listings.
__mins driving to your place
Get an instant, personalised result:
- Show sellers you’re serious
- Secure viewings faster with agents
- No impact on your credit score
Affordability
Notes
Staying secure when looking for property
Ensure you're up to date with our latest advice on how to avoid fraud or scams when looking for property online.
Visit our security centre to find out moreDisclaimer - Property reference OTN103785. The information displayed about this property comprises a property advertisement. Rightmove.co.uk makes no warranty as to the accuracy or completeness of the advertisement or any linked or associated information, and Rightmove has no control over the content. This property advertisement does not constitute property particulars. The information is provided and maintained by Richard James, Swindon, Old Town. Please contact the selling agent or developer directly to obtain any information which may be available under the terms of The Energy Performance of Buildings (Certificates and Inspections) (England and Wales) Regulations 2007 or the Home Report if in relation to a residential property in Scotland.
*This is the average speed from the provider with the fastest broadband package available at this postcode. The average speed displayed is based on the download speeds of at least 50% of customers at peak time (8pm to 10pm). Fibre/cable services at the postcode are subject to availability and may differ between properties within a postcode. Speeds can be affected by a range of technical and environmental factors. The speed at the property may be lower than that listed above. You can check the estimated speed and confirm availability to a property prior to purchasing on the broadband provider's website. Providers may increase charges. The information is provided and maintained by Decision Technologies Limited. **This is indicative only and based on a 2-person household with multiple devices and simultaneous usage. Broadband performance is affected by multiple factors including number of occupants and devices, simultaneous usage, router range etc. For more information speak to your broadband provider.
Map data ©OpenStreetMap contributors.








