3 bedroom detached house for sale
Forest Road, Woodhouse, LE12

- PROPERTY TYPE
Detached
- BEDROOMS
3
- BATHROOMS
1
- SIZE
1,464 sq ft
136 sq m
- TENUREDescribes how you own a property. There are different types of tenure - freehold, leasehold, and commonhold.Read more about tenure in our glossary page.
Freehold
Key features
- Grade II Listed Granite Built Cottage
- Scope for Modernisation Throughout
- Desirable Old Woodhouse Location
- Long Mature Garden with Apple Tree
- Garage / Workshop with Conversion Potential (STP)
- Three Reception Rooms
- Off Road Parking
- Energy Rating: F
Description
A Characterful Cottage with Endless Potential in the Heart of Old Woodhouse
Tucked away in the picturesque village of Old Woodhouse, this Grade II Listed detached granite-built cottage offers a rare opportunity to reimagine a true piece of local heritage. With its Wisteria-draped façade, original leaded windows and Swithland slate roof, this is a home brimming with charm and period character, ready to be lovingly restored and taken into its next chapter.
Sitting beautifully, the cottage opens up to reveal an unexpectedly spacious layout and a generous mature garden to the rear, a secret sanctuary framed by trees, hedgerows and bursting with wildflowers and a magnificent apple tree.
Step inside via the side driveway and you’re welcomed into a dining hall, where the exposed beams and an original brick fireplace set the tone. Thoughtful nooks and cupboard space nod to the home’s historic charm. To the rear, a garden room with exposed granite walls and glazed doors draw your eyes down the length of the garden, offering the perfect canvas for a light-filled living or entertaining space.
To the front of the home sits a beamed sitting room, complete with a gas fire (currently disconnected). The adjoining kitchen offers tiled flooring, fitted cupboards, a compact breakfast bar, and space for appliances, with a practical boot room and cloakroom WC beyond.
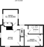
Upstairs, three well-proportioned bedrooms, two with built-in storage, are served by a bathroom with shower attachment.
Outside, the substantial granite-built garage/workshop provides exciting potential for conversion, subject to relevant permissions, ideal for use as a studio, office or additional accommodation.
Perfectly placed in a sought-after village setting and brimming with original features, this is a home that captures the essence of rural charm—a rare find with scope to create something truly special.
Note: This property is Grade II Listed and situated in a conservation area.
Services: Mains water, gas, electric, drainage and broadband are connected to this property.
Available mobile phone coverage: EE (Okay) O2 (Good) Three (Poor) Vodaphone (Okay) (Information supplied by Ofcom via Spectre)
Available broadband: Standard / Superfast (Information supplied by Ofcom via Spectre)
Potential purchasers are advised to seek their own advice as to the suitability of the services and mobile phone coverage, the above is for guidance only.
Flood Risk: Very low risk of surface water flooding / Very low risk river and sea flooding (Information supplied by gov.uk and purchasers are advised to seek their own legal advice)
Tenure: Freehold
Local Council / Tax Band: Charnwood Borough Council / F (Improvement Indicator: No)
Floor plan: Whilst every attempt has been made to ensure accuracy, all measurements are approximate and not to scale. The floor plan is for illustrative purposes only.
DIGITAL MARKETS COMPETITION AND CONSUMERS ACT 2024 (DMCC ACT)
The DMCC Act 2024, which came into force in April 2025, is designed to ensure that consumers are treated fairly and have all the information required to make an informed purchase, whether that be a property or any other consumer goods. Reed & Baum are committed to providing material information relating to the properties we are marketing to assist prospective buyers when making a decision to proceed with the purchase of a property. Please note all information will need to be verified by the buyers' solicitor and is given in good faith from information obtained from sources including but not restricted to HMRC Land Registry, Spectre, Ofcom, Gov.uk and provided by our sellers.
EPC Rating: F
Dining Room
3.6m x 2.9m
3.6m x 2.9m min
Lounge
5.4m x 3.8m
Sitting Room
3.9m x 3.6m
Kitchen
3.7m x 3.5m
Pantry
1.4m x 1m
Bedroom
3.7m x 3m
Bedroom
3.5m x 3.1m
3.5m x 3..1m plus robes
Bedroom
2.6m x 1.9m
2.6m plus robes x 1.9m
Parking - Garage
Parking - Driveway
- COUNCIL TAXA payment made to your local authority in order to pay for local services like schools, libraries, and refuse collection. The amount you pay depends on the value of the property.Read more about council Tax in our glossary page.
- Band: F
- LISTED PROPERTYA property designated as being of architectural or historical interest, with additional obligations imposed upon the owner.Read more about listed properties in our glossary page.
- Listed
- PARKINGDetails of how and where vehicles can be parked, and any associated costs.Read more about parking in our glossary page.
- Garage,Driveway
- GARDENA property has access to an outdoor space, which could be private or shared.
- Private garden
- ACCESSIBILITYHow a property has been adapted to meet the needs of vulnerable or disabled individuals.Read more about accessibility in our glossary page.
- Ask agent
Forest Road, Woodhouse, LE12
Add an important place to see how long it'd take to get there from our property listings.
__mins driving to your place
Get an instant, personalised result:
- Show sellers you’re serious
- Secure viewings faster with agents
- No impact on your credit score
Your mortgage
Notes
Staying secure when looking for property
Ensure you're up to date with our latest advice on how to avoid fraud or scams when looking for property online.
Visit our security centre to find out moreDisclaimer - Property reference aa0c57fd-22f2-4428-87ce-ac0298d0019e. The information displayed about this property comprises a property advertisement. Rightmove.co.uk makes no warranty as to the accuracy or completeness of the advertisement or any linked or associated information, and Rightmove has no control over the content. This property advertisement does not constitute property particulars. The information is provided and maintained by Reed & Baum, Quorn. Please contact the selling agent or developer directly to obtain any information which may be available under the terms of The Energy Performance of Buildings (Certificates and Inspections) (England and Wales) Regulations 2007 or the Home Report if in relation to a residential property in Scotland.
*This is the average speed from the provider with the fastest broadband package available at this postcode. The average speed displayed is based on the download speeds of at least 50% of customers at peak time (8pm to 10pm). Fibre/cable services at the postcode are subject to availability and may differ between properties within a postcode. Speeds can be affected by a range of technical and environmental factors. The speed at the property may be lower than that listed above. You can check the estimated speed and confirm availability to a property prior to purchasing on the broadband provider's website. Providers may increase charges. The information is provided and maintained by Decision Technologies Limited. **This is indicative only and based on a 2-person household with multiple devices and simultaneous usage. Broadband performance is affected by multiple factors including number of occupants and devices, simultaneous usage, router range etc. For more information speak to your broadband provider.
Map data ©OpenStreetMap contributors.





