
Plot for sale
Garages & Land Adjoining Lea Vale, Dartford, Kent, DA1
- PROPERTY TYPE
Plot
- SIZE
Ask agent
Key features
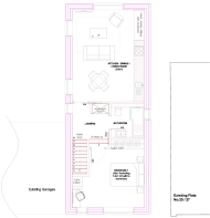
- PLANNING APPROVED (Bexley Planning Ref: 24/02110/FUL)
- WELL CONNECTED RESIDENTIAL AREA
- IDEAL FOR SME DEVELOPERS/ INVESTORS
- STRONG POTENTIAL RENTAL YIELD
Description
Garages & Land Adjoining Lea Vale, Dartford, Kent, DA1
NEAREST STATIONS
Distances are straight line measurements from the centre of the postcode- Crayford Station0.7 miles
- Barnehurst Station0.8 miles
- Bexley Station1.3 miles
Notes
Disclaimer - Property reference KLL_LND_LFSYCL_1157_1283475245. The information displayed about this property comprises a property advertisement. Rightmove.co.uk makes no warranty as to the accuracy or completeness of the advertisement or any linked or associated information, and Rightmove has no control over the content. This property advertisement does not constitute property particulars. The information is provided and maintained by Kallars, Sidcup. Please contact the selling agent or developer directly to obtain any information which may be available under the terms of The Energy Performance of Buildings (Certificates and Inspections) (England and Wales) Regulations 2007 or the Home Report if in relation to a residential property in Scotland.
Map data ©OpenStreetMap contributors.











