Land for sale
Lisbon, Sintra, Portugal
- PROPERTY TYPE
Land
- SIZE
62,000 sq ft
5,760 sq m
Key features
- Total area: 5760 sqm
- Condition: Project
Description
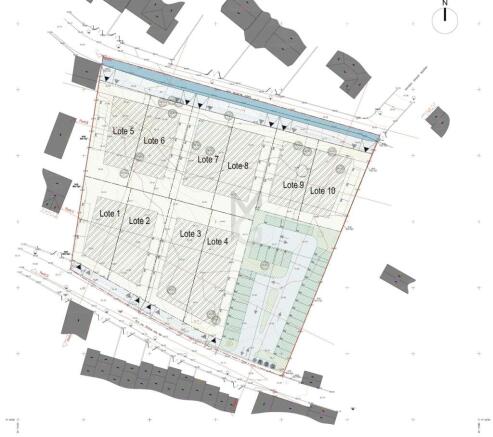
PIP is a preliminary information request, which was submitted and later approved by the Sintra Municipality.
The total land area is 5,760sqm, with approval for its division into 10 individual plots designated for residential construction, totaling 3,905 sqm. The additional 1,855 sqm is allocated for roads, sidewalks, parking areas, green spaces, and other public infrastructures.
Each plot allows the construction of one semi-detached villa, with a total gross construction area of 1,900 sqm (for all plots combined), distributed across two floors above ground, and an implantation area of 1,100 sqm, matching the maximum allowable construction area below ground.
The property enjoys access from two streets, both served by electricity, water supply, and telecommunications networks. A sanitation network to the south enables the creation of a local gravity-fed system serving the northern plots, as provided in the approved plan.
Refer to the tables in the photos for additional details.
The information provided is not binding and is subject to confirmation.
REF: TER_10225
Lisbon, Sintra, Portugal
NEAREST AIRPORTS
Distances are straight line measurements- Lisbon(International)17.1 miles
Advice on buying Portuguese property
Learn everything you need to know to successfully find and buy a property in Portugal.
Notes
This is a property advertisement provided and maintained by Miriam Guerreiro Unipessoal Lda, Lisboa (reference 299681_TER_10225) and does not constitute property particulars. Whilst we require advertisers to act with best practice and provide accurate information, we can only publish advertisements in good faith and have not verified any claims or statements or inspected any of the properties, locations or opportunities promoted. Rightmove does not own or control and is not responsible for the properties, opportunities, website content, products or services provided or promoted by third parties and makes no warranties or representations as to the accuracy, completeness, legality, performance or suitability of any of the foregoing. We therefore accept no liability arising from any reliance made by any reader or person to whom this information is made available to. You must perform your own research and seek independent professional advice before making any decision to purchase or invest in overseas property.




