4 bedroom house for sale
London Road, Brentwood

- PROPERTY TYPE
House
- BEDROOMS
4
- BATHROOMS
2
- SIZE
Ask agent
- TENUREDescribes how you own a property. There are different types of tenure - freehold, leasehold, and commonhold.Read more about tenure in our glossary page.
Ask agent
Key features
- Deceptively spacious
- Four double bedrooms
- Detached
- Generous garden
- Five reception rooms
Description
As you enter, you are greeted by a warm and inviting atmosphere, with well-proportioned rooms that provide both functionality and style. The spacious living areas are perfect for entertaining or simply relaxing after a long day. The house features two well-appointed bathrooms, ensuring convenience for all residents and visitors alike.
The location on London Road is particularly advantageous, providing easy access to local amenities, schools, and transport links. Brentwood is known for its vibrant community and offers a range of shops, restaurants, and recreational facilities, making it an ideal place to call home.
This property is not just a house; it is a place where memories can be made. With its generous living space and prime location, it presents an excellent opportunity for those looking to settle in a desirable area. Whether you are a growing family or simply in need of more space, this house on London Road is sure to meet your needs and exceed your expectations.
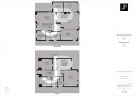
Hallway - 1.92 x 6.96 m (6'3" x 22'10" m) -
Dining Room - 3.33 × 5.78 m (10'11" × 18'11" m) -
Living Room - 4.95 x 6.58 m (16'2" x 21'7" m) -
Kitchen - 3.25 × 4.96 m (10'7" × 16'3" m) -
Play Room - 2.94 x 4.04 (9'7" x 13'3") -
Office - 2.84 x 3.14 (9'3" x 10'3") -
Utilitv Room - 2.62 x 2.70 (8'7" x 8'10") -
Treatment Room - 2.69×2.37m (8'9"×7'9") -
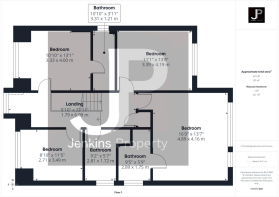
Landing - 1.79 × 6.99 (5'10" × 22'11") -
Bedroom - 4.89 × 4.16 (16'0" × 13'7") -
Bathroom - 2.89 × 1.75 (9'5" × 5'8") -
Bedroom - 3.33 × 4.00 (10'11" × 13'1") -
Bathroom - 3.31 x 1.21 (10'10" x 3'11") -
Bedroom - 3.39 x 4.19 (11'1" x 13'8") -
Bedroom - 2.71 × 3.49 (8'10" × 11'5") -
Garage -
Brochures
London Road, BrentwoodBrochure- COUNCIL TAXA payment made to your local authority in order to pay for local services like schools, libraries, and refuse collection. The amount you pay depends on the value of the property.Read more about council Tax in our glossary page.
- Ask agent
- PARKINGDetails of how and where vehicles can be parked, and any associated costs.Read more about parking in our glossary page.
- Yes
- GARDENA property has access to an outdoor space, which could be private or shared.
- Yes
- ACCESSIBILITYHow a property has been adapted to meet the needs of vulnerable or disabled individuals.Read more about accessibility in our glossary page.
- Ask agent
Energy performance certificate - ask agent
London Road, Brentwood
Add an important place to see how long it'd take to get there from our property listings.
__mins driving to your place
Get an instant, personalised result:
- Show sellers you’re serious
- Secure viewings faster with agents
- No impact on your credit score
Your mortgage
Notes
Staying secure when looking for property
Ensure you're up to date with our latest advice on how to avoid fraud or scams when looking for property online.
Visit our security centre to find out moreDisclaimer - Property reference 34443564. The information displayed about this property comprises a property advertisement. Rightmove.co.uk makes no warranty as to the accuracy or completeness of the advertisement or any linked or associated information, and Rightmove has no control over the content. This property advertisement does not constitute property particulars. The information is provided and maintained by Jenkins Property, Brentwood. Please contact the selling agent or developer directly to obtain any information which may be available under the terms of The Energy Performance of Buildings (Certificates and Inspections) (England and Wales) Regulations 2007 or the Home Report if in relation to a residential property in Scotland.
*This is the average speed from the provider with the fastest broadband package available at this postcode. The average speed displayed is based on the download speeds of at least 50% of customers at peak time (8pm to 10pm). Fibre/cable services at the postcode are subject to availability and may differ between properties within a postcode. Speeds can be affected by a range of technical and environmental factors. The speed at the property may be lower than that listed above. You can check the estimated speed and confirm availability to a property prior to purchasing on the broadband provider's website. Providers may increase charges. The information is provided and maintained by Decision Technologies Limited. **This is indicative only and based on a 2-person household with multiple devices and simultaneous usage. Broadband performance is affected by multiple factors including number of occupants and devices, simultaneous usage, router range etc. For more information speak to your broadband provider.
Map data ©OpenStreetMap contributors.





