
Hatch Lane, Keysoe MK44
- PROPERTY TYPE
Land
- SIZE
Ask agent
Key features
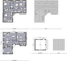
- Planning for Executive detached home of 3300 sq.ft
- Four bedroom homes
- En-suite to all bedrooms
- Three reception rooms
- Treble Garage with room above
- Sought-after North Bedfordshire village
- Adjoining fields in picturesque setting
- 18/00856/OUT Planning reference
- S106 Paid by seller
- Fantastic self-build opportunity
Description
Community Infrastructure Levy (CIL)
The planning permission is CIL liable, The CIL payment will be paid by the seller.
Drainage/Services
We believe that all mains services and drainage are available in close proximity to the plot, Prospective purchasers should make their own enquiries on this and satisfy themselves with respect to availability and cost of connections.
Keysoe is a quaint village situated approximately 7 miles from St.Neots and 8 miles to Bedford and the train station. Both towns offering an array or shopping and leisure facilities. Keysoe itself features a church, Kymbrook lower school and also features lots of equestrian facilities and livery yards.
Disclaimer: Please note we do not test any fixtures, fittings, apparatus or services. Any interested parties should undertake their own investigation into the working order of these items. All measurements provided are approximate and photos are provided for guidance only. Potential buyers are advised to re-check the measurements before committing to any expense. Potential buyers are advised to check and confirm the EPC, estate management charges and council tax before committing to any expense. Floorplans are for illustration purposes only. Cooper Wallace do not verify the legal title of the property and the potential buyers should obtain verification from their solicitors committing to any expense.
Brochures
Full DetailsEnergy Performance Certificates
Energy Performance CertificateHatch Lane, Keysoe MK44
NEAREST STATIONS
Distances are straight line measurements from the centre of the postcode- Bedford Station7.2 miles
Notes
Disclaimer - Property reference 12690721. The information displayed about this property comprises a property advertisement. Rightmove.co.uk makes no warranty as to the accuracy or completeness of the advertisement or any linked or associated information, and Rightmove has no control over the content. This property advertisement does not constitute property particulars. The information is provided and maintained by Cooper Wallace, Bedford. Please contact the selling agent or developer directly to obtain any information which may be available under the terms of The Energy Performance of Buildings (Certificates and Inspections) (England and Wales) Regulations 2007 or the Home Report if in relation to a residential property in Scotland.
Map data ©OpenStreetMap contributors.







