
3 bedroom detached house for sale
The Maples, Long Green, Braintree, Essex, CM77 8DL

- PROPERTY TYPE
Detached
- BEDROOMS
3
- SIZE
Ask developer
- TENUREDescribes how you own a property. There are different types of tenure - freehold, leasehold, and commonhold.Read more about tenure in our glossary page.
Freehold
Key features
- Generously-proportioned detached family home
- Open plan kitchen/dining room
- Spacious dual-aspect living room
- French doors to the living room, leading into the garden
- Separate utility with outside access
- Downstairs WC
- Bedroom 1 with en suite
- Energy efficient
Description
This spacious new home might be the welcome answer to your growing family’s needs. With three bedrooms, two bathrooms and two spacious family-friendly living areas - one with a bay window - the Lanham gives you plenty of space to spread out, to have time out, and to have time together. There’s also a utility room, downstairs WC and lots of storage throughout for convenience.
Additional Information
- Tenure: Freehold
- Council tax band: Not made available by local authority until post-occupation
Parking - Driveway
Room Dimensions
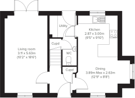
- Kitchen - 2.87 x 3.0 metre
- Dining - 3.89 x 2.63 metre
- Living room - 3.11 x 5.63 metre
- Bedroom 1 - 3.16 x 2.63 metre
- Bedroom 2 - 4.01 x 2.91 metre
- Bedroom 3 - 2.96 x 2.63 metre
- COUNCIL TAXA payment made to your local authority in order to pay for local services like schools, libraries, and refuse collection. The amount you pay depends on the value of the property.Read more about council Tax in our glossary page.
- Ask developer
- PARKINGDetails of how and where vehicles can be parked, and any associated costs.Read more about parking in our glossary page.
- Yes
- GARDENA property has access to an outdoor space, which could be private or shared.
- Yes
- ACCESSIBILITYHow a property has been adapted to meet the needs of vulnerable or disabled individuals.Read more about accessibility in our glossary page.
- Ask developer
Energy performance certificate - ask developer
- Choice of 2, 3 and 4 bedroom homes
- Contemporary living in a village setting
- Close to excellent amenities
- Great transport links
The Maples, Long Green, Braintree, Essex, CM77 8DL
Add an important place to see how long it'd take to get there from our property listings.
__mins driving to your place
Get an instant, personalised result:
- Show sellers you’re serious
- Secure viewings faster with agents
- No impact on your credit score
About Persimmon Homes
The Maples is a development of two, three and four-bedroom new homes in the village of Cressing, Essex. On the outskirts of Braintree, it's just minutes from a huge range of amenities and attractions.
Cressing is a charming village in Essex, nestled between Braintree and Witham. Though small, the village has a few essential services including a school and train station, plus an excellent gastropub and restaurant. It's also a place of historical interest - the two medieval barns at Cressing Temple are said to be the finest Templar barns in Europe.
Despite the rural setting, living at the Maples means you can enjoy town amenities on your doorstep. Braintree, with its many shops, eateries and services is less than a 10 minute drive away, and the many brands at Braintree Village outlet are just 3 minutes away. Combined with the proximity to beautiful countryside and routes into London, this is a fantastic place to call home.
This development offers the following schemes:
- Deposit Unlock
- Bank of Mum and Dad
- Part Exchange your Home
- Home Change
- Early Bird Scheme
- Deposit Boost: 5% Deposit Contribution Scheme
- Own New Rate Reducer Scheme
- New Build Boost
Schemes are available on selected plots only, subject to status, terms and conditions apply. Contact the development for latest information.
Your mortgage
Notes
Staying secure when looking for property
Ensure you're up to date with our latest advice on how to avoid fraud or scams when looking for property online.
Visit our security centre to find out moreDisclaimer - Property reference 3_51. The information displayed about this property comprises a property advertisement. Rightmove.co.uk makes no warranty as to the accuracy or completeness of the advertisement or any linked or associated information, and Rightmove has no control over the content. This property advertisement does not constitute property particulars. The information is provided and maintained by Persimmon Homes. Please contact the selling agent or developer directly to obtain any information which may be available under the terms of The Energy Performance of Buildings (Certificates and Inspections) (England and Wales) Regulations 2007 or the Home Report if in relation to a residential property in Scotland.
*This is the average speed from the provider with the fastest broadband package available at this postcode. The average speed displayed is based on the download speeds of at least 50% of customers at peak time (8pm to 10pm). Fibre/cable services at the postcode are subject to availability and may differ between properties within a postcode. Speeds can be affected by a range of technical and environmental factors. The speed at the property may be lower than that listed above. You can check the estimated speed and confirm availability to a property prior to purchasing on the broadband provider's website. Providers may increase charges. The information is provided and maintained by Decision Technologies Limited. **This is indicative only and based on a 2-person household with multiple devices and simultaneous usage. Broadband performance is affected by multiple factors including number of occupants and devices, simultaneous usage, router range etc. For more information speak to your broadband provider.
Map data ©OpenStreetMap contributors.






