2 bedroom apartment for sale
Dylon Riverside, Purbeck Gardens, London

- PROPERTY TYPE
Apartment
- BEDROOMS
2
- BATHROOMS
2
- SIZE
843 sq ft
78 sq m
Key features
- New phase just launched
- A comprehensive range of integrated appliances and stone worktops
- A fully inclusive specification at no extra cost
- Mirror fitted wardrobe to principal bedroom
- High-tech bathroom and en-suite
- Buying schemes available^
- Walk 2 minutes to Lower Sydenham train station and reach London Bridge in 14 mins†
Description
SUMMARY
Plot 118 | NEW PHASE NOW AVAILABLE at Dylon Riverside by Weston Homes | Luxurious two bed apartment | Buying schemes available^ | Perfectly located | Range of specification options**
DESCRIPTION
Voted the Best Housebuilder in Britain! Weston Homes has been crowned 'Housebuilder Of The Year' at the annual industry 2025 WhatHouse? awards.
The Purbeck Apartments are now available!
Explore the new phase at Dylon Riverside in Sydenham, comprising 164 luxurious one, two and three-bedroom apartments all finished with Weston Homes’ fully inclusive specification.
Plot 118 - Reserve this spacious two bedroom, two bathroom apartment, positioned on the second floor with a private and spacious balcony to enjoy all year round.
Discover the incredible Weston Homes package - everything you'd expect - and a lot that you wouldn't. The stylish kitchen features integrated appliances and a stone worktop while the en-suites include Smart technology and vanity units with built in storage. The principal bedroom comes with a mirrored fitted wardrobe and flooring is included throughout.
Book your exclusive viewing today!
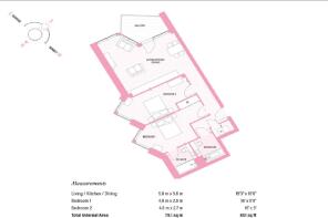
Living/Kitchen/Dining Irregular Shaped Room 19' 3" x 18' 6" ( 5.87m x 5.64m )
Bedroom One Irregular Shaped Room 16' x 9' 9" ( 4.88m x 2.97m )
En-Suite
Bedroom Two Irregular Shaped Room 16' x 9' ( 4.88m x 2.74m )
Bathroom
Agent's Notes
^Buying schemes terms, conditions & eligibility criteria apply, please speak to a Sales Consultant for further details. †Journey times are taken from National Rail and Google and are approximate only.
**Specification choices are subject to stage of construction.
Computer generated image is for indicative purposes only. Images depict a typical Weston Homes show home and are indicative only. Specification may vary. Furniture, light fittings, window treatments and accessories are not included but everything else is. Information correct at time of distribution. E&OE.
Enquiries for this development may be contacted by a member of either Porter Glenny New Homes or Weston Homes sales teams.
We currently hold lease details as displayed above, should you require further information please contact the branch. Please note additional fees could be incurred for items such as leasehold packs.
1. MONEY LAUNDERING REGULATIONS: Intending purchasers will be asked to produce identification documentation at a later stage and we would ask for your co-operation in order that there will be no delay in agreeing the sale.
2. General: While we endeavour to make our sales particulars fair, accurate and reliable, they are only a general guide to the property and, accordingly, if there is any point which is of particular importance to you, please contact the office and we will be pleased to check the position for you, especially if you are contemplating travelling some distance to view the property.
3. The measurements indicated are supplied for guidance only and as such must be considered incorrect.
4. Services: Please note we have not tested the services or any of the equipment or appliances in this property, accordingly we strongly advise prospective buyers to commission their own survey or service reports before finalising their offer to purchase.
5. THESE PARTICULARS ARE ISSUED IN GOOD FAITH BUT DO NOT CONSTITUTE REPRESENTATIONS OF FACT OR FORM PART OF ANY OFFER OR CONTRACT. THE MATTERS REFERRED TO IN THESE PARTICULARS SHOULD BE INDEPENDENTLY VERIFIED BY PROSPECTIVE BUYERS OR TENANTS. NEITHER SEQUENCE (UK) LIMITED NOR ANY OF ITS EMPLOYEES OR AGENTS HAS ANY AUTHORITY TO MAKE OR GIVE ANY REPRESENTATION OR WARRANTY WHATEVER IN RELATION TO THIS PROPERTY.
Brochures
Full Details- COUNCIL TAXA payment made to your local authority in order to pay for local services like schools, libraries, and refuse collection. The amount you pay depends on the value of the property.Read more about council Tax in our glossary page.
- Band: E
- PARKINGDetails of how and where vehicles can be parked, and any associated costs.Read more about parking in our glossary page.
- Ask agent
- GARDENA property has access to an outdoor space, which could be private or shared.
- Ask agent
- ACCESSIBILITYHow a property has been adapted to meet the needs of vulnerable or disabled individuals.Read more about accessibility in our glossary page.
- Ask agent
Energy performance certificate - ask agent
Dylon Riverside, Purbeck Gardens, London
Add an important place to see how long it'd take to get there from our property listings.
__mins driving to your place
Get an instant, personalised result:
- Show sellers you’re serious
- Secure viewings faster with agents
- No impact on your credit score
Your mortgage
Notes
Staying secure when looking for property
Ensure you're up to date with our latest advice on how to avoid fraud or scams when looking for property online.
Visit our security centre to find out moreDisclaimer - Property reference L89101702. The information displayed about this property comprises a property advertisement. Rightmove.co.uk makes no warranty as to the accuracy or completeness of the advertisement or any linked or associated information, and Rightmove has no control over the content. This property advertisement does not constitute property particulars. The information is provided and maintained by Porter Glenny New Homes, Rainham. Please contact the selling agent or developer directly to obtain any information which may be available under the terms of The Energy Performance of Buildings (Certificates and Inspections) (England and Wales) Regulations 2007 or the Home Report if in relation to a residential property in Scotland.
*This is the average speed from the provider with the fastest broadband package available at this postcode. The average speed displayed is based on the download speeds of at least 50% of customers at peak time (8pm to 10pm). Fibre/cable services at the postcode are subject to availability and may differ between properties within a postcode. Speeds can be affected by a range of technical and environmental factors. The speed at the property may be lower than that listed above. You can check the estimated speed and confirm availability to a property prior to purchasing on the broadband provider's website. Providers may increase charges. The information is provided and maintained by Decision Technologies Limited. **This is indicative only and based on a 2-person household with multiple devices and simultaneous usage. Broadband performance is affected by multiple factors including number of occupants and devices, simultaneous usage, router range etc. For more information speak to your broadband provider.
Map data ©OpenStreetMap contributors.




