Land for sale
, Land adjacent to Westwood Grove, Westhill, Aberdeen, AB326UZ
- PROPERTY TYPE
Land
- SIZE
Ask agent
Key features
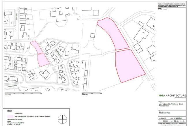
- Land adjacent to Westwood Grove, Aberdeen. ***INTERESTING RARELY AVAILABLE AUCTION PLOT*** Substantial site at approx. one third of an acre in affluent residential suburb of Westhill, Aberdeenshire.
- Located in a wealthy suburb of Aberdeen ROUGHLY RECTANGULAR IN SHAPE and is approx. 1,370sqm (0.137ha, 0.34acres) or thereby in size & may be suitable for multiple uses (subject to planning consent)
- *** EXCELLENT CAPITAL GROWTH POTENTIAL *** may be subdivided and may offer excellent potential for future residential development (subject to investigating and gaining planning consents).
- Currently covered with mostly wood and offers easy access. This land is offered without current planning permission and the auctioneers are unaware of any previous applications.
- Enquiries in relation to planning should be directed to Aberdeen Council.
Description
** SALE BY AUCTION - 19 February 2026 - Timed Online Auction **
ENHANCED TERMS OFFERED ON THIS LOT...
Reduced Buyers Fee: 1% of Sale Price (Min £1200 ?)
Land adjacent to Westwood Grove, Aberdeen. ***INTERESTING RARELY AVAILABLE AUCTION PLOT*** Substantial site at approx. one third of an acre in affluent residential suburb of Westhill, Aberdeenshire. Located in a wealthy suburb of Aberdeen ROUGHLY RECTANGULAR IN SHAPE and is approx. 1,370sqm (0.137ha, 0.34acres) or thereby in size & may be suitable for multiple uses (subject to planning consent) *** EXCELLENT CAPITAL GROWTH POTENTIAL *** could be subdivided and offers excellent potential for future residential development (subject to investigating and gaining planning consents). Currently covered with mostly wood and offers easy access. This land is offered without current planning permission and the auctioneers are unaware of any previous applications. Enquiries in relation to planning should be directed to Aberdeen Council. This land is subject to a clawback agreement.
There is a range of amenities and services, especially in the town centre where you can find shopping centres, superstores and health centres. There are n shortage of primary and secondary schools and also plenty of leisure amenities such as the golf course, tennis courts, swimming pool, hotels and restaurants. Stunning countryside with easy access via the dual carriageway to the city of Aberdeen. Aberdeen is known as the: â??Energy Capital of Europeâ?� hosting offices of Major International Oil & energy companies. Aberdeen University is a world known & highly acclaimed Educational centre of Excellence founded In 1495 with students from over 120 different countries. The University is situated approximately 1 mile from Aberdeen City Centre. There is a wide range of businesses and city centre
Auction Details
19 February 2026, 10am-3pm
Timed Online Auction
How to Bid Now
Submit an enquiry now or visit our website for full details on how to BID ON THIS PROPERTY.
Future Property Auctions - Scotland's Largest Land and Property Auction House. Over 400 lots auctioned every 2 weeks including flats, houses, land & commercial.
Get a Fast Sale and a Fair Price with Future Property Auctions. Contact Us now for a FREE Auction Valuation.
, Land adjacent to Westwood Grove, Westhill, Aberdeen, AB326UZ
NEAREST STATIONS
Distances are straight line measurements from the centre of the postcode- Dyce Station5.2 miles
Notes
Disclaimer - Property reference 14476673. The information displayed about this property comprises a property advertisement. Rightmove.co.uk makes no warranty as to the accuracy or completeness of the advertisement or any linked or associated information, and Rightmove has no control over the content. This property advertisement does not constitute property particulars. The information is provided and maintained by Future Property Auctions, Glasgow. Please contact the selling agent or developer directly to obtain any information which may be available under the terms of The Energy Performance of Buildings (Certificates and Inspections) (England and Wales) Regulations 2007 or the Home Report if in relation to a residential property in Scotland.
Auction Fees: The purchase of this property may include associated fees not listed here, as it is to be sold via auction. To find out more about the fees associated with this property please call Future Property Auctions, Glasgow on 0141 632 6599.
*Guide Price: An indication of a seller's minimum expectation at auction and given as a Guide Price or a range of Guide Prices. This is not necessarily the figure a property will sell for and is subject to change prior to the auction.
Reserve Price: Each auction property will be subject to a Reserve Price below which the property cannot be sold at auction. Normally the Reserve Price will be set within the range of Guide Prices or no more than 10% above a single Guide Price.
Map data ©OpenStreetMap contributors.






