Trendlewood Park, Bristol

- PROPERTY TYPE
Terraced
- BEDROOMS
3
- BATHROOMS
1
- SIZE
Ask agent
- TENUREDescribes how you own a property. There are different types of tenure - freehold, leasehold, and commonhold.Read more about tenure in our glossary page.
Freehold
Key features
- 2/3 bedroom split level home
- Ideal for families and DIYers
- Close to parkland and River Frome
- Located in Trendlewood Park, Bristol
- Versatile and spacious layout
- Deserving modernisation
- Realistically priced for quick sale
- Mid terrace 1970s home
- Popular development area
- Viewing highly recommended
Description
As you enter, you will find a welcoming reception room that sets the tone for the rest of the property. The three bedrooms provide ample space for family living or can be adapted to suit your needs, whether that be a home office or guest room. The bathroom, while functional, presents an opportunity for modernisation, allowing you to create a space that reflects your style.
One of the standout features of this property is the parking space available for two vehicles, a rare find in such a popular development. The home is surrounded by open parkland and the picturesque River Frome, perfect for leisurely walks and outdoor activities, enhancing the appeal for families and nature lovers.
With its great style interest and unique design features, this property is deserving of some updating to truly shine. Priced realistically to attract early interest, this home presents a fantastic opportunity for those looking to invest in a property with potential in a desirable location. Don’t miss your chance to make this house your home in the vibrant community of Trendlewood Park.
Entrance - Multi paned hardwood effect UPVC entrance door into...
Entrance Lobby - Glazed inner door into...
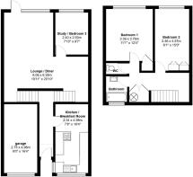
Hall - Dado rail, short staircase to first floor landing. Short staircase to garden level.
Kitchen/Breakfast Room - 5.00m x 2.34m (16'4" x 7'8" ) - Fitted with a range of timber fronted wall, floor and drawer storage cupboards to include a built in double oven and inset electric hob, double drainer stainless steel sink, working surfaces, splashback tiling, space for washing machine and fridge, Creda electric warm air heating unit, double glazed window with outlook to front.
Garden Level -
Open Plan L Shaped Lounge/Dining Room -
Lounge - 6.32m x 3.49m (20'8" x 11'5" ) - Pine panelled ceiling and wall, double glazed sliding patio doors with access and attractive outlook onto the rear garden, dado rail, opening into...
Dining Area - 3.35m x 2.58m (10'11" x 8'5" ) - Pine panelled ceiling.
Bedroom 3/Study - 2.90m x 2.41m (9'6" x 7'10" ) - Aluminium framed and double glazed window with pleasent outlook onto the rear garden.
First Floor -
Landing - Large under eaves cupboard, access to roof void, double cupboard containing a hot water cylinder.
Bedroom 1 - 3.73m x 3.55m (12'2" x 11'7" ) - Built in single door wardrobe, large double glazed picture window to rear with far reaching views.
Bedroom 2 - 4.54m x 2.42m (14'10" x 7'11" ) - Maximum overall to include a built in triple door wardrobe, double glazed window to rear with elevated outlook.
Bathroom - 1.75m x 1.67m (5'8" x 5'5" ) - Pink coloured suite of paneled bath and pedestal wash basin, splashback tiling, frosted grazed window to front.
Separate Wc - 1.89m x 0.81m (6'2" x 2'7" ) - Pink coloured WC with wood effect seat.
Exterior - To the front of the property there is a section of level lawn alongside a brick laid hardstanding suitable for the parking off street of one vehicle.
Garden - Arranged principally to the rear of the property comprising paved patio surfaces and pathways with mature shrubs and bushes, rear store and rear pedestrian gate opening onto a rear pedestrian walkway.
Garage - 4.94m x 2.43 (16'2" x 7'11") - The property benefits from an integral garage with up and over door and electric fuse box.
Aml (Anti Money Laundering) - ‘’Estate agents operating in the UK are required to conduct Anti-Money Laundering (AML) checks in compliance with the regulations set forth by HM Revenue and Customs (HMRC) for all property transactions. It is mandatory for both buyers and sellers to successfully complete these checks before any property transaction can proceed. Our estate agency uses Coadjute’s Assured Compliance service to facilitate the AML checks. A fee will be charged for each individual AML check conducted’’
Brochures
Trendlewood Park, Bristol- COUNCIL TAXA payment made to your local authority in order to pay for local services like schools, libraries, and refuse collection. The amount you pay depends on the value of the property.Read more about council Tax in our glossary page.
- Band: C
- PARKINGDetails of how and where vehicles can be parked, and any associated costs.Read more about parking in our glossary page.
- Yes
- GARDENA property has access to an outdoor space, which could be private or shared.
- Yes
- ACCESSIBILITYHow a property has been adapted to meet the needs of vulnerable or disabled individuals.Read more about accessibility in our glossary page.
- Ask agent
Trendlewood Park, Bristol
Add an important place to see how long it'd take to get there from our property listings.
__mins driving to your place
Get an instant, personalised result:
- Show sellers you’re serious
- Secure viewings faster with agents
- No impact on your credit score
Your mortgage
Notes
Staying secure when looking for property
Ensure you're up to date with our latest advice on how to avoid fraud or scams when looking for property online.
Visit our security centre to find out moreDisclaimer - Property reference 34460438. The information displayed about this property comprises a property advertisement. Rightmove.co.uk makes no warranty as to the accuracy or completeness of the advertisement or any linked or associated information, and Rightmove has no control over the content. This property advertisement does not constitute property particulars. The information is provided and maintained by Hunters, Fishponds. Please contact the selling agent or developer directly to obtain any information which may be available under the terms of The Energy Performance of Buildings (Certificates and Inspections) (England and Wales) Regulations 2007 or the Home Report if in relation to a residential property in Scotland.
*This is the average speed from the provider with the fastest broadband package available at this postcode. The average speed displayed is based on the download speeds of at least 50% of customers at peak time (8pm to 10pm). Fibre/cable services at the postcode are subject to availability and may differ between properties within a postcode. Speeds can be affected by a range of technical and environmental factors. The speed at the property may be lower than that listed above. You can check the estimated speed and confirm availability to a property prior to purchasing on the broadband provider's website. Providers may increase charges. The information is provided and maintained by Decision Technologies Limited. **This is indicative only and based on a 2-person household with multiple devices and simultaneous usage. Broadband performance is affected by multiple factors including number of occupants and devices, simultaneous usage, router range etc. For more information speak to your broadband provider.
Map data ©OpenStreetMap contributors.







