
4 bedroom detached house for sale
Strathearn Meadow, Broich Road, Crieff, Perth and Kinross, PH7 3SG

- PROPERTY TYPE
Detached
- BEDROOMS
4
- SIZE
Ask developer
- TENUREDescribes how you own a property. There are different types of tenure - freehold, leasehold, and commonhold.Read more about tenure in our glossary page.
Ask developer
Key features
- Single integral garage with tiled roof
- Front aspect lounge with bright triple window
- Open plan kitchen/dining room
- Access from the kitchen/dining room to the rear garden
- Central cupboard storage from kitchen/dining room
- Separate rear door exit from utility room
- Cloakroom includes obscure opening window
- En suite shower room to bedroom 1
Description
The Leith is a superb four-bedroom detached family home offering great value for money. There's a spacious utility room, downstairs cloakroom, en suite master bedroom and a single garage included in the layout. The large kitchen/dining area lends itself to family meals as well as entertaining friends, with French doors opening onto the rear garden.
Additional Information
- Tenure: Heritable
- Council tax band: Not made available by local authority until post-occupation
Parking - Driveway
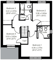
Room Dimensions
- Kitchen/Dining room - 5.06 x 2.94 metre
- Living room - 3.22 x 5.06 metre
- Bedroom 1 - 2.77 x 4.34 metre
- Bedroom 2 - 2.6 x 3.38 metre
- Bedroom 3 - 2.47 x 3.22 metre
- Bedroom 4 - 2.62 x 3.03 metre
- COUNCIL TAXA payment made to your local authority in order to pay for local services like schools, libraries, and refuse collection. The amount you pay depends on the value of the property.Read more about council Tax in our glossary page.
- Ask developer
- PARKINGDetails of how and where vehicles can be parked, and any associated costs.Read more about parking in our glossary page.
- Yes
- GARDENA property has access to an outdoor space, which could be private or shared.
- Yes
- ACCESSIBILITYHow a property has been adapted to meet the needs of vulnerable or disabled individuals.Read more about accessibility in our glossary page.
- Ask developer
Energy performance certificate - ask developer
Strathearn Meadow, Broich Road, Crieff, Perth and Kinross, PH7 3SG
Add an important place to see how long it'd take to get there from our property listings.
__mins driving to your place
Get an instant, personalised result:
- Show sellers you’re serious
- Secure viewings faster with agents
- No impact on your credit score
About the development
Development features
- Community orientated development
- Close to the 'Fair City' of Perth
- Sought-after town and countryside location
About Persimmon Homes North Scotland
Welcome to Strathearn Meadow ? modern new homes in a prime location
Discover Strathearn Meadow, a beautiful new development offering two, three, and four-bedroom new homes in Crieff. These energy-efficient homes are designed for sustainable living, complete with PV solar panels and surrounded by tree-lined borders for a welcoming, countryside feel.
Stylish new build homes in Crieff, Perthshire
Set on the edge of the picturesque town of Crieff, Strathearn Meadow offers thoughtfully designed homes with green open spaces and scenic views. Enjoy the best of both worlds ? tranquil surroundings and a vibrant local area known for artisan shops, cafés, and community spirit.
Excellent transport links to Perth and beyond
Living at Strathearn Meadow means you?re well connected. Perth city centre is just a short drive away, with easy access to Stirling, Glasgow, and Edinburgh via excellent road links. Regular public transport also makes local travel simple and convenient, making these some of the best houses to buy in Perthshire.
New homes to suit your lifestyle
From supermarkets and everyday essentials to local schools and community facilities, everything you need is close by. Crieff offers a well-established, friendly atmosphere with plenty of amenities within walking distance of your new home.
Explore the outdoors in Crieff and Perthshire
Nature lovers will feel right at home with nearby Market Park and MacRosty Park offering green space for walks, play, and relaxation. Surrounded by Perthshire?s stunning countryside, Strathearn Meadow is perfect for those who love the outdoors.
This development offers the following schemes:
- Deposit Unlock
- Bank of Mum and Dad
- Part Exchange your Home
- Home Change
- Early Bird Scheme
- Armed Forces, Key Workers & NHS Discount Scheme
- Own New Rate Reducer Scheme
Schemes are available on selected plots only, subject to status, terms and conditions apply. Contact the development for latest information.
Your mortgage
Notes
Staying secure when looking for property
Ensure you're up to date with our latest advice on how to avoid fraud or scams when looking for property online.
Visit our security centre to find out moreDisclaimer - Property reference 4_75. The information displayed about this property comprises a property advertisement. Rightmove.co.uk makes no warranty as to the accuracy or completeness of the advertisement or any linked or associated information, and Rightmove has no control over the content. This property advertisement does not constitute property particulars. The information is provided and maintained by Persimmon Homes North Scotland. Please contact the selling agent or developer directly to obtain any information which may be available under the terms of The Energy Performance of Buildings (Certificates and Inspections) (England and Wales) Regulations 2007 or the Home Report if in relation to a residential property in Scotland.
*This is the average speed from the provider with the fastest broadband package available at this postcode. The average speed displayed is based on the download speeds of at least 50% of customers at peak time (8pm to 10pm). Fibre/cable services at the postcode are subject to availability and may differ between properties within a postcode. Speeds can be affected by a range of technical and environmental factors. The speed at the property may be lower than that listed above. You can check the estimated speed and confirm availability to a property prior to purchasing on the broadband provider's website. Providers may increase charges. The information is provided and maintained by Decision Technologies Limited. **This is indicative only and based on a 2-person household with multiple devices and simultaneous usage. Broadband performance is affected by multiple factors including number of occupants and devices, simultaneous usage, router range etc. For more information speak to your broadband provider.
Map data ©OpenStreetMap contributors.






