
Chaseley Way, Chester Gate, Sunderland, Tyne and Wear, SR4

- PROPERTY TYPE
Semi-Detached
- BEDROOMS
2
- SIZE
Ask agent
- TENUREDescribes how you own a property. There are different types of tenure - freehold, leasehold, and commonhold.Read more about tenure in our glossary page.
Freehold
Key features
- Two Bedroom Semi-Detached
- Perfect First Time Buy
- Large Landscaped Rear Garden
- Modern Throughout
- Open Plan Kitchen/Lounge/Diner
- Quiet Cul-De-Sac
- Large Driveway
- Amenities On Doorstep
Description
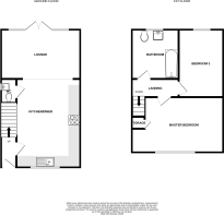
Entrance Hall
Enter through uPVC double glazed door into hallway with carpet flooring, neutral walls, carpeted stairs to first floor and door into kitchen.
Kitchen/Diner
3.13m x 4.24m
The kitchen/diner area is finished with base and wall units providing ample storage, double glazed window looking out onto the front of the property, integrated appliances including, fridge, freezer, hob and oven and upgraded from new laminate flooring. Stainless steel sink with mixer tap, neutral walls and doorway into W/C also feature. The kitchen is open plan with the lounge.
W/C
0.88m x 1.56m
The modern w/c features double glazed window, hand wash basin, toilet and neutral walls.
Lounge
2.82m x 4.15 - The spacious lounge is filled with natural light from the large double glazed French doors which lead out into the rear garden. Neutral walls, carpet flooring and radiator also feature.
First Floor Landing
The landing area is complete with neutral walls, double glazed window, access to loft space, carpet flooring and doors off to bedrooms and family bathroom.
Bedroom
The second bedroom features carpet flooring, neutral walls, double glazed window looking out onto the rear aspect of the property and radiator.
Bathroom
1.68m x 1.9m
The bathroom is complete with shower over bath, upgraded part-tiled walls from new, hand wash basin, toilet, double glazed window and towel rail/radiator.
Bedroom
3.14m x 3.64m
The master bedroom features built in storage cupboard, carpet to the floor, double glazed window looking out onto the front aspect of the property, neutral walls and radiator.
External
To the front, a block paved drive way with ample space for multiple cars and a paved pathway leads down the side of the property and round to the rear garden. To the rear, a south-facing low maintenance garden with paved patio/seating area and stoned section with shurbbery boarder.
Location
The property is found within Chaseley Way, a quiet and popular cul-de-sac within the Pennywell area, with shops, schools and restaurants on the doorstep. The property also benefits from great public transport links being close to a major bus route. Commuting into the city centre is quick and easy, as is commuting into other cities like Newcastle or Durham via the A1/A19 roads near by.
Disclaimer
DISCLAIMER Your home is at risk if you do not keep up repayments on your mortgage or other loans secured on it. MORTGAGE ADVICE It is now a legal requirement under the Estate Agents Act 1991, to establish what mortgage, if any, is required and to confirm the applicants ability to obtain this finance. If you need any help or advice over obtaining a mortgage, our mortgage department will be pleased to help and advise you on all Building Society or Bank mortgages without obligation. This service is available even if you are not buying via ourselves. Written quotations available on request. There is no charge for this service. PLEASE NOTE Please note that all sizes have been measured with an electronic measuring tape and are approximations only. Under the terms of the property miss-descriptions act we are obliged to point out that none of the services described in these particulars have been tested by ourselves. We present these details of the property in good faith and they (truncated)
Material Information
The following information should be read and considered by any potential buyers prior to making a transactional decision. We are advised by the seller that the property has mains gas, electricity, water and drainage. MAINTENANCE/SERVICE CHARGES- YES WATER METER- Yes PARKING ARRANGEMENTS: Driveway BROADBAND SPEED: No issues reported by vendor. The maximum speed for broadband in this area is shown by inputting the postcode at the following link here> Broadband Speed Checker - UK's No.1 Broadband Speed Test ELECTRIC CAR CHARGER- No MOBILE PHONE SIGNAL: No known issues at the property NORTH EAST OF ENGLAND- EX MINING AREA: We operate in an ex-mining area. This property may have been built on or near an ex-mining site. Further information can/will be clarified by the Solicitors prior to completion. The information above has been provided by the seller and has not yet been verified at this point of producing this material. There may be more information related to the sale of (truncated)
Brochures
Particulars- COUNCIL TAXA payment made to your local authority in order to pay for local services like schools, libraries, and refuse collection. The amount you pay depends on the value of the property.Read more about council Tax in our glossary page.
- Band: B
- PARKINGDetails of how and where vehicles can be parked, and any associated costs.Read more about parking in our glossary page.
- Yes
- GARDENA property has access to an outdoor space, which could be private or shared.
- Yes
- ACCESSIBILITYHow a property has been adapted to meet the needs of vulnerable or disabled individuals.Read more about accessibility in our glossary page.
- Ask agent
Chaseley Way, Chester Gate, Sunderland, Tyne and Wear, SR4
Add an important place to see how long it'd take to get there from our property listings.
__mins driving to your place
Affordability



Get an instant, personalised result:
- Show sellers you’re serious
- Secure viewings faster with agents
- No impact on your credit score
Notes
Staying secure when looking for property
Ensure you're up to date with our latest advice on how to avoid fraud or scams when looking for property online.
Visit our security centre to find out moreDisclaimer - Property reference GOL250261. The information displayed about this property comprises a property advertisement. Rightmove.co.uk makes no warranty as to the accuracy or completeness of the advertisement or any linked or associated information, and Rightmove has no control over the content. This property advertisement does not constitute property particulars. The information is provided and maintained by Jill Moore Select Properties, Washington. Please contact the selling agent or developer directly to obtain any information which may be available under the terms of The Energy Performance of Buildings (Certificates and Inspections) (England and Wales) Regulations 2007 or the Home Report if in relation to a residential property in Scotland.
*This is the average speed from the provider with the fastest broadband package available at this postcode. The average speed displayed is based on the download speeds of at least 50% of customers at peak time (8pm to 10pm). Fibre/cable services at the postcode are subject to availability and may differ between properties within a postcode. Speeds can be affected by a range of technical and environmental factors. The speed at the property may be lower than that listed above. You can check the estimated speed and confirm availability to a property prior to purchasing on the broadband provider's website. Providers may increase charges. The information is provided and maintained by Decision Technologies Limited. **This is indicative only and based on a 2-person household with multiple devices and simultaneous usage. Broadband performance is affected by multiple factors including number of occupants and devices, simultaneous usage, router range etc. For more information speak to your broadband provider.
Map data ©OpenStreetMap contributors.





