
4 bedroom chalet for sale
James Street, Selsey, PO20

- PROPERTY TYPE
Chalet
- BEDROOMS
4
- BATHROOMS
2
- SIZE
1,939 sq ft
180 sq m
- TENUREDescribes how you own a property. There are different types of tenure - freehold, leasehold, and commonhold.Read more about tenure in our glossary page.
Freehold
Key features
- Detached chalet style home in desirable road
- Flexible accommodation with annexe capabilities
- 4 Bedrooms
- 3 Reception rooms
- Conservatory & Utility Room
- En-Suite To Bedroom One and Family Bathroom with Bath & Shower
- In & Out Driveway Providing Generous Parking
- Near 19ft Garage
- Located Within 350m Of The Beach
Description
Positioned in a highly sought-after location just 350 metres from the beach, this deceptive 4 bedroom detached chalet bungalow of just under 2000sqft presents an exceptional opportunity for those seeking a coastal retreat. Boasting a distinctive chalet style design, this property offers a unique and spacious layout, ideal for modern family living.
Stepping inside, you are greeted by a welcoming entrance hall that leads to three reception rooms, allowing for versatile living arrangements including annexe possibilities. The well-appointed kitchen provides ample space for culinary endeavours and offers easy access to the dining area, making entertaining a breeze. With four well-appointed bedrooms, including a fifth bedroom that could alternatively function as a study or home office, as well as two elegantly finished bathrooms, this property has all the space needed to accommodate a large or growing family.
Externally, this property truly excels, with an extensive sweeping in and out driveway that provides generous parking for multiple vehicles. This feature ensures that stress-free parking will never be an issue for residents or guests. The beauty of this property extends beyond its interior, as the impressive 18ft tandem garage with power, lights and its own separate feed from the fuse box offers further convenience and storage opportunities for the homeowner.
Boasting a serene coastal location, this property presents an unmissable opportunity for those seeking a spacious family home in close proximity to the beach. With its exceptional location and abundance of space, this property allows for a lifestyle of comfort, convenience, and tranquillity.
EPC Rating: D
Entrance Porch
Covered entrance with front door into the entrance porch, further glazed door into the entrance hall
Entrance Hall
Stairs to the 1st floor and doors all all principal ground floor rooms
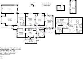
Living Room (4.29m x 5.33m)
Sitting Room/Snug (2.97m x 3.28m)
Dining Room (2.69m x 3.07m)
Doorway through to:
Kitchen (3.1m x 3.84m)
Utility Rooom (2.08m x 4.04m)
Conservatory style with doors at either end for access to both the front and the rear garden
Conservatory (2.79m x 4.34m)
Bedroom Two (3.38m x 4.45m)
Built in twin double wardrobes
Bedroom Three (3.15m x 4.29m)
Built in twin single wardrobes
Family Bathroom
Corner bath, walk in shower, w/c and wash hand basin
Landing
Stairs from the entrance hall lead up to the 1st floor landing with doors to both bedrooms and the storage/craft room
Bedroom One (4.98m x 5.59m)
principal area plus alcove. Irregular shape with a dressing area, several built in wardrobes with matching drawer units, door to:
Bedroom Four (2.39m x 2.69m)
Principal area plus alcove
Storage/craft Room (1.78m x 4.37m)
Limited head height along one side
Garden
Paved seating area with the reminder laid to lawn. Side access to the front, wooden shed and greenhouse
Parking - Garage
18'8 (5.69m) x 9'4 (2.84m) with power, lights with its own separate feed from the fuse box
Parking - Driveway
Sweeping in & out driveway providing off road parking for multiple vehicles
Brochures
Property Brochure- COUNCIL TAXA payment made to your local authority in order to pay for local services like schools, libraries, and refuse collection. The amount you pay depends on the value of the property.Read more about council Tax in our glossary page.
- Band: E
- PARKINGDetails of how and where vehicles can be parked, and any associated costs.Read more about parking in our glossary page.
- Garage,Driveway
- GARDENA property has access to an outdoor space, which could be private or shared.
- Private garden
- ACCESSIBILITYHow a property has been adapted to meet the needs of vulnerable or disabled individuals.Read more about accessibility in our glossary page.
- Ask agent
James Street, Selsey, PO20
Add an important place to see how long it'd take to get there from our property listings.
__mins driving to your place
Get an instant, personalised result:
- Show sellers you’re serious
- Secure viewings faster with agents
- No impact on your credit score
Your mortgage
Notes
Staying secure when looking for property
Ensure you're up to date with our latest advice on how to avoid fraud or scams when looking for property online.
Visit our security centre to find out moreDisclaimer - Property reference 6635ec35-986b-42c1-b10c-ba9c6e622ac6. The information displayed about this property comprises a property advertisement. Rightmove.co.uk makes no warranty as to the accuracy or completeness of the advertisement or any linked or associated information, and Rightmove has no control over the content. This property advertisement does not constitute property particulars. The information is provided and maintained by Henry Adams, Selsey. Please contact the selling agent or developer directly to obtain any information which may be available under the terms of The Energy Performance of Buildings (Certificates and Inspections) (England and Wales) Regulations 2007 or the Home Report if in relation to a residential property in Scotland.
*This is the average speed from the provider with the fastest broadband package available at this postcode. The average speed displayed is based on the download speeds of at least 50% of customers at peak time (8pm to 10pm). Fibre/cable services at the postcode are subject to availability and may differ between properties within a postcode. Speeds can be affected by a range of technical and environmental factors. The speed at the property may be lower than that listed above. You can check the estimated speed and confirm availability to a property prior to purchasing on the broadband provider's website. Providers may increase charges. The information is provided and maintained by Decision Technologies Limited. **This is indicative only and based on a 2-person household with multiple devices and simultaneous usage. Broadband performance is affected by multiple factors including number of occupants and devices, simultaneous usage, router range etc. For more information speak to your broadband provider.
Map data ©OpenStreetMap contributors.








