Ouseburn Wharf, Quayside, Newcastle Upon Tyne, NE6

- PROPERTY TYPE
Apartment
- BEDROOMS
2
- BATHROOMS
2
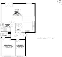
- SIZE
1,270 sq ft
118 sq m
- TENUREDescribes how you own a property. There are different types of tenure - freehold, leasehold, and commonhold.Read more about tenure in our glossary page.
Ask agent
Key features
- Two bedroom apartment with panoramic river views
- Immaculately refurbished with high-spec finishes throughout
- Bright open-plan living with Juliet balcony overlooking the Tyne
- Two modern bathrooms finished with premium fixtures
- Secure parking, lift access & prime Quayside/Ouseburn setting
Description
The open-plan living, dining and kitchen area enjoys a south-westerly aspect, allowing natural light to flood the space and opening onto a Juliet balcony with spectacular river views. The sleek modern kitchen features clean-lined cabinetry, concrete-effect worktops and integrated Bosch appliances, with ample space for dining, entertaining or home working while enjoying the outlook.
The main bedroom is a generous double, benefiting from a beautifully finished en-suite shower room fitted with modern Roca fixtures. The second bedroom is also a well-proportioned double and is served by a stylish main bathroom, again newly fitted with contemporary sanitaryware and a large walk-in shower. A welcoming hallway connects the accommodation and provides excellent built-in storage, including a discreet utility cupboard housing laundry facilities.
Residents benefit from secure under-building parking, lift access to all floors and a secure entry system.
Ouseburn Wharf is superbly positioned at the meeting point of Newcastle’s iconic Quayside and the vibrant Ouseburn Valley, offering a unique blend of riverside tranquillity and city lifestyle. Independent cafés, bars, galleries and live music venues are all within walking distance, while the Quayside’s restaurants and scenic walks are close at hand.
Newcastle City Centre is easily accessible on foot, by bike or via regular public transport, with Manors and Central Station providing excellent rail links. The area also benefits from strong road connections, making Jesmond, Heaton and the wider North East easily reachable.
Combining waterside living with culture, connectivity and convenience, this is an exceptional apartment in a highly sought-after setting.
Services: Mains electric and water.
Tenure: Leasehold
Council Tax: C
EPC- C
In line with UK Money Laundering Regulations and HMRC supervision, buyers must complete identity verification using a Government-approved digital verification service. An administrative charge is payable to cover compliance costs, charged at £25 + VAT (£30) for each purchaser. Verification is required following offer acceptance and prior to the property being marked Sold Subject to Contract.
- COUNCIL TAXA payment made to your local authority in order to pay for local services like schools, libraries, and refuse collection. The amount you pay depends on the value of the property.Read more about council Tax in our glossary page.
- Band: TBC
- PARKINGDetails of how and where vehicles can be parked, and any associated costs.Read more about parking in our glossary page.
- Yes
- GARDENA property has access to an outdoor space, which could be private or shared.
- Ask agent
- ACCESSIBILITYHow a property has been adapted to meet the needs of vulnerable or disabled individuals.Read more about accessibility in our glossary page.
- Ask agent
Ouseburn Wharf, Quayside, Newcastle Upon Tyne, NE6
Add an important place to see how long it'd take to get there from our property listings.
__mins driving to your place
Get an instant, personalised result:
- Show sellers you’re serious
- Secure viewings faster with agents
- No impact on your credit score


Affordability
Notes
Staying secure when looking for property
Ensure you're up to date with our latest advice on how to avoid fraud or scams when looking for property online.
Visit our security centre to find out moreDisclaimer - Property reference GSF250196. The information displayed about this property comprises a property advertisement. Rightmove.co.uk makes no warranty as to the accuracy or completeness of the advertisement or any linked or associated information, and Rightmove has no control over the content. This property advertisement does not constitute property particulars. The information is provided and maintained by Bradley Hall, Gosforth. Please contact the selling agent or developer directly to obtain any information which may be available under the terms of The Energy Performance of Buildings (Certificates and Inspections) (England and Wales) Regulations 2007 or the Home Report if in relation to a residential property in Scotland.
*This is the average speed from the provider with the fastest broadband package available at this postcode. The average speed displayed is based on the download speeds of at least 50% of customers at peak time (8pm to 10pm). Fibre/cable services at the postcode are subject to availability and may differ between properties within a postcode. Speeds can be affected by a range of technical and environmental factors. The speed at the property may be lower than that listed above. You can check the estimated speed and confirm availability to a property prior to purchasing on the broadband provider's website. Providers may increase charges. The information is provided and maintained by Decision Technologies Limited. **This is indicative only and based on a 2-person household with multiple devices and simultaneous usage. Broadband performance is affected by multiple factors including number of occupants and devices, simultaneous usage, router range etc. For more information speak to your broadband provider.
Map data ©OpenStreetMap contributors.




