
3 bedroom chalet for sale
The Close, Selsey, PO20

- PROPERTY TYPE
Chalet
- BEDROOMS
3
- BATHROOMS
2
- SIZE
926 sq ft
86 sq m
- TENUREDescribes how you own a property. There are different types of tenure - freehold, leasehold, and commonhold.Read more about tenure in our glossary page.
Freehold
Key features
- Detached chalet bungalow
- Three double bedrooms
- Ground floor bathroom and en-suite shower room to bedroom 1
- L-shaped living/dining room
- Driveway with space for 2 cars
- Cul-de-sac location with the beach within 200m
- 55ft x 40ft (approx.) easterly facing rear garden
- No onward chain
Description
The outside space is equally impressive, with a driveway laid to shingle and providing off-road parking for two cars. The rear garden, measures approximately 55ft by 40 ft and enjoys an easterly aspect. Whether you envision al fresco dining, gardening, or simply relaxing in the fresh sea air, this garden provides the perfect setting. The proximity to the beach allows for easy access to coastal walks and seaside activities, while the cul-de-sac setting ensures a quiet and safe environment. With its combination of outdoor space, practical parking, and an enviable location, this property is perfectly suited for those wishing to embrace a relaxed coastal lifestyle.
EPC Rating: D
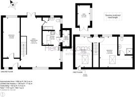
Entrance Hall
Steps lead up to a double glazed front door opening to the entrance hall
Living/Dining Room (5.75m x 7.21m)
L-Shaped and max measurements, stairs to the 1st floor, French doors to the garden and doors to the ground floor bathroom & kitchen
Kitchen (2.02m x 2.58m)
Doors to the bathroom and utility space
Utility space (1.04m x 2.38m)
Bedroom Three (2.44m x 5.89m)
Ground floor bathroom
Bath, wash hand basin and w/c
Landing
Stairs from the living/dining room lead up to the 1st floor landing with doors to both bedrooms
Bedroom One (4.49m x 4.65m)
L-Shaped and max measurements, door to the en-suite shower room
En-Suite Shower Room
Walk in shower, w/c and wash hand basin
Bedroom Two (2.41m x 4.37m)
Garden
Mainly laid to lawn with paved seating area, wooden shed, side access to the front
Parking - Driveway
Laid to shingle & providing off road parking for 2 cars.
Brochures
Property Brochure- COUNCIL TAXA payment made to your local authority in order to pay for local services like schools, libraries, and refuse collection. The amount you pay depends on the value of the property.Read more about council Tax in our glossary page.
- Band: C
- PARKINGDetails of how and where vehicles can be parked, and any associated costs.Read more about parking in our glossary page.
- Driveway
- GARDENA property has access to an outdoor space, which could be private or shared.
- Private garden
- ACCESSIBILITYHow a property has been adapted to meet the needs of vulnerable or disabled individuals.Read more about accessibility in our glossary page.
- Ask agent
The Close, Selsey, PO20
Add an important place to see how long it'd take to get there from our property listings.
__mins driving to your place
Get an instant, personalised result:
- Show sellers you’re serious
- Secure viewings faster with agents
- No impact on your credit score
Your mortgage
Notes
Staying secure when looking for property
Ensure you're up to date with our latest advice on how to avoid fraud or scams when looking for property online.
Visit our security centre to find out moreDisclaimer - Property reference 92750ba4-8adf-4f72-9ede-4f51f20ee794. The information displayed about this property comprises a property advertisement. Rightmove.co.uk makes no warranty as to the accuracy or completeness of the advertisement or any linked or associated information, and Rightmove has no control over the content. This property advertisement does not constitute property particulars. The information is provided and maintained by Henry Adams, Selsey. Please contact the selling agent or developer directly to obtain any information which may be available under the terms of The Energy Performance of Buildings (Certificates and Inspections) (England and Wales) Regulations 2007 or the Home Report if in relation to a residential property in Scotland.
*This is the average speed from the provider with the fastest broadband package available at this postcode. The average speed displayed is based on the download speeds of at least 50% of customers at peak time (8pm to 10pm). Fibre/cable services at the postcode are subject to availability and may differ between properties within a postcode. Speeds can be affected by a range of technical and environmental factors. The speed at the property may be lower than that listed above. You can check the estimated speed and confirm availability to a property prior to purchasing on the broadband provider's website. Providers may increase charges. The information is provided and maintained by Decision Technologies Limited. **This is indicative only and based on a 2-person household with multiple devices and simultaneous usage. Broadband performance is affected by multiple factors including number of occupants and devices, simultaneous usage, router range etc. For more information speak to your broadband provider.
Map data ©OpenStreetMap contributors.








