
2 bedroom apartment for rent
Dorset Square, London, NW1

Letting details
- Let available date:
- 09/03/2026
- Deposit:
- £3,975A deposit provides security for a landlord against damage, or unpaid rent by a tenant.Read more about deposit in our glossary page.
- Min. Tenancy:
- 18 months How long the landlord offers to let the property for.Read more about tenancy length in our glossary page.
- Let type:
- Long term
- Furnish type:
- Furnished or unfurnished, landlord is flexible
- Council Tax:
- Ask agent
- PROPERTY TYPE
Apartment
- BEDROOMS
2
- BATHROOMS
1
- SIZE
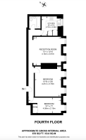
678 sq ft
63 sq m
Key features
- To book a viewing: submit your enquiry and you'll receive an email and SMS detailing availability - within 10 min
Description
This unique flat is rarely available. It has become available due to the current long-term tenants moving abroad.
BEDROOMS
- 2 bedroom (one large, one smaller - can be used as an office)
- Large bedroom: triple double wardrobes built in, original fireplaces, 2 windows facing private park
- Smaller bedroom: double and single wardrobe built in, 1 window facing private park
- No upstairs neighbours for peaceful rest
LIVING ROOM
- Striking large living area with 2 windows and sky window
- High ceilings, original fireplace
KITCHEN
- Built in storage
- Standard kitchen appliances - hob, microwave etc.
- Washing machine and dishwasher included
OTHER BENEFITS
- Pet friendly
- Walking distance to baker st - 2 min, marylebone station 2 min, regents park 5 min, soho 25 min
- Currently furnished (some of the pics are unfurnished): furniture included for free if wanted
- Access to the private park on dorset square with residents key. This park is only available to those who live in the square. Beautiful and quiet. Was once the home of cricket!
- Views overlooking a private park
- Locked basement storage area for large items (suitcases, beds etc.)
- Flat is managed by Foxtons
- Secure building which is code controlled access
- COUNCIL TAXA payment made to your local authority in order to pay for local services like schools, libraries, and refuse collection. The amount you pay depends on the value of the property.Read more about council Tax in our glossary page.
- Band: F
- PARKINGDetails of how and where vehicles can be parked, and any associated costs.Read more about parking in our glossary page.
- Ask agent
- GARDENA property has access to an outdoor space, which could be private or shared.
- Ask agent
- ACCESSIBILITYHow a property has been adapted to meet the needs of vulnerable or disabled individuals.Read more about accessibility in our glossary page.
- No wheelchair access
Dorset Square, London, NW1
Add an important place to see how long it'd take to get there from our property listings.
__mins driving to your place

Notes
Staying secure when looking for property
Ensure you're up to date with our latest advice on how to avoid fraud or scams when looking for property online.
Visit our security centre to find out moreDisclaimer - Property reference 4409_EAF_282635. The information displayed about this property comprises a property advertisement. Rightmove.co.uk makes no warranty as to the accuracy or completeness of the advertisement or any linked or associated information, and Rightmove has no control over the content. This property advertisement does not constitute property particulars. The information is provided and maintained by Hello Neighbour, London. Please contact the selling agent or developer directly to obtain any information which may be available under the terms of The Energy Performance of Buildings (Certificates and Inspections) (England and Wales) Regulations 2007 or the Home Report if in relation to a residential property in Scotland.
*This is the average speed from the provider with the fastest broadband package available at this postcode. The average speed displayed is based on the download speeds of at least 50% of customers at peak time (8pm to 10pm). Fibre/cable services at the postcode are subject to availability and may differ between properties within a postcode. Speeds can be affected by a range of technical and environmental factors. The speed at the property may be lower than that listed above. You can check the estimated speed and confirm availability to a property prior to purchasing on the broadband provider's website. Providers may increase charges. The information is provided and maintained by Decision Technologies Limited. **This is indicative only and based on a 2-person household with multiple devices and simultaneous usage. Broadband performance is affected by multiple factors including number of occupants and devices, simultaneous usage, router range etc. For more information speak to your broadband provider.
Map data ©OpenStreetMap contributors.





