3 bedroom semi-detached house for rent
Beaulieu Road, Whiteley, Fareham

Letting details
- Let available date:
- Now
- Deposit:
- £1,846A deposit provides security for a landlord against damage, or unpaid rent by a tenant.Read more about deposit in our glossary page.
- Min. Tenancy:
- Ask agent How long the landlord offers to let the property for.Read more about tenancy length in our glossary page.
- Let type:
- Long term
- Furnish type:
- Unfurnished
- Council Tax:
- Ask agent
- PROPERTY TYPE
Semi-Detached
- BEDROOMS
3
- BATHROOMS
2
- SIZE
Ask agent
Key features
- Dishwasher
- Fridge/Freezer
- Washing/Drying Machine
- Security Alarm
Description
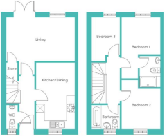
Property - W&W are delighted to offer for rent this brand new (Eveleigh ES) three bedroom semi detached house. The property boasts three bedrooms, an impressively kitchen/dining room, lounge and downstairs cloakroom, modern family bathroom & modern en-suite shower room to the main bedroom. The property also benefits from 'in our opinion' a good sized rear garden and allocated parking. Pets are considered at this property on an individual basis.
Located in Whiteley, Lakedale at Whiteley Meadows has a lively town centre just a short walk away, offering a broad range of high street retailers, supermarkets, restaurants and bars. For those who drive, the A334 is a stone’s throw away and connects to the M27, leading you to nearby cities of Portsmouth and Southampton, offering fun days out to the harbours, large shopping centres or even the beach.
Some images are demonstrative of this property type. Images are therefore not plot or site specific and spec may vary slightly. Properties are let unfurnished.
Tenant Fees - Applicable to all new assured shorthold Tenancies (ASTs) signed on or after 1st June 2019
Holding Deposit – capped at One weeks rent
Paid by you to reserve the Property. This will only be retained by us if any relevant person (including any guarantor(s)) withdraw from the tenancy, fail a Right-to-Rent check, provide materially significant false or misleading information, or fail to sign their tenancy agreement (and/or Deed of Guarantee) within 15 calendar days.
Deposit – capped at 5 weeks rent where the annual rent is under £50,000 and 6 weeks rent where the annual rent is £50,000 or higher.
This will cover damages and defaults by the tenant as detailed in the AST during the tenancy.
Late payment of Rent
Interest will be charged at 3% above the Bank of England Base Rate from Rent Due date until paid in full. This will not be levied until the rent is more than 14 days in arrears with the interest calculated back from the first day of the arrears.
Lost Keys or security devices
Tenants are liable to the actual cost of replacing any lost key(s) or other security device(s). If the loss results in locks needing to be changed, the actual costs of a locksmith, new lock and replacement keys for the tenant, landlord any other persons requiring keys will be charged to the tenant.
Variation or changes to an existing tenancy agreement - £50 (inc. VAT) per change.
This charge will cover the costs associated with taking landlord's instructions as well as the preparation and execution of new legal documents. This also covers costs in 'change of sharer' situations and covers the landlords costs in securing a new sharing and associated legal requirements in processing that new sharers application.
Early Termination as requested by Tenant
Should you wish to leave the property before the end of your tenancy agreement, and should the landlord agree to this, then you will be liable to cover the landlord's costs of re-letting the property as well as any rent due under the terms of your tenancy agreement up until the point the replacement tenancy commences.
Utility Payments
Tenants will remain responsible, unless agreed otherwise, for all utility payments, TV licence and Council Tax accounts. Please refer to your AST for full information.
Walker & Waterer Lettings Limited are members of the Property Ombudsman Redress Scheme and CMP (Client Money Protect)
Brochures
Beaulieu Road, Whiteley, Fareham- COUNCIL TAXA payment made to your local authority in order to pay for local services like schools, libraries, and refuse collection. The amount you pay depends on the value of the property.Read more about council Tax in our glossary page.
- Band: TBC
- PARKINGDetails of how and where vehicles can be parked, and any associated costs.Read more about parking in our glossary page.
- Yes
- GARDENA property has access to an outdoor space, which could be private or shared.
- Yes
- ACCESSIBILITYHow a property has been adapted to meet the needs of vulnerable or disabled individuals.Read more about accessibility in our glossary page.
- Ask agent
Beaulieu Road, Whiteley, Fareham
Add an important place to see how long it'd take to get there from our property listings.
__mins driving to your place
Notes
Staying secure when looking for property
Ensure you're up to date with our latest advice on how to avoid fraud or scams when looking for property online.
Visit our security centre to find out moreDisclaimer - Property reference 34465426. The information displayed about this property comprises a property advertisement. Rightmove.co.uk makes no warranty as to the accuracy or completeness of the advertisement or any linked or associated information, and Rightmove has no control over the content. This property advertisement does not constitute property particulars. The information is provided and maintained by Walker & Waterer, Whiteley. Please contact the selling agent or developer directly to obtain any information which may be available under the terms of The Energy Performance of Buildings (Certificates and Inspections) (England and Wales) Regulations 2007 or the Home Report if in relation to a residential property in Scotland.
*This is the average speed from the provider with the fastest broadband package available at this postcode. The average speed displayed is based on the download speeds of at least 50% of customers at peak time (8pm to 10pm). Fibre/cable services at the postcode are subject to availability and may differ between properties within a postcode. Speeds can be affected by a range of technical and environmental factors. The speed at the property may be lower than that listed above. You can check the estimated speed and confirm availability to a property prior to purchasing on the broadband provider's website. Providers may increase charges. The information is provided and maintained by Decision Technologies Limited. **This is indicative only and based on a 2-person household with multiple devices and simultaneous usage. Broadband performance is affected by multiple factors including number of occupants and devices, simultaneous usage, router range etc. For more information speak to your broadband provider.
Map data ©OpenStreetMap contributors.




