2 bedroom semi-detached house for sale
Rame View, East Looe

- PROPERTY TYPE
Semi-Detached
- BEDROOMS
2
- BATHROOMS
1
- SIZE
797 sq ft
74 sq m
- TENUREDescribes how you own a property. There are different types of tenure - freehold, leasehold, and commonhold.Read more about tenure in our glossary page.
Freehold
Key features
- 2 bedroom semi detached bungalow
- Versatile accommodation
- Loft conversion providing additional room and wc
- Small manageable gardens with views
- Parking immediately outside the property
- Countryside and distant sea views
- Close to the local shops and bus route
Description
Approaching the property, you are welcomed by a small, manageable front garden and a hard standing providing parking for one vehicle, with additional off road parking available nearby. The entrance porch, fitted with useful storage cupboards, offers a practical space to store coats and shoes before stepping into the heart of the home.
The porch opens into a generously sized, versatile room that can be utilised as either a dining room or living room, depending on your needs. This bright and airy space benefits from ample natural light and provides a comfortable setting for family meals or relaxed entertaining. To one side, an opening leads into the modern kitchen, which is fitted with sleek white units and integrated appliances including a built-in oven, hob, and cooker hood. The kitchen`s contemporary design and efficient layout make it a pleasure to prepare meals while remaining connected to the rest of the home.
From the dining or living room, a door leads to the inner hall, and further double doors open into a second living room or bedroom, offering flexible accommodation to suit a variety of lifestyles. This room enjoys direct access to a charming sun room, a bright and inviting space with doors that open onto the rear garden. Here, you can relax and take in the stunning countryside views that stretch beyond the garden boundary, providing a peaceful backdrop to everyday living.
The inner hall provides access to a well-appointed wet room, featuring an electric shower, vanity wash basin, and WC, designed with practicality and ease of use in mind. Adjacent to the wet room is a comfortable bedroom, completing the ground floor accommodation.
A staircase from the dining/living room ascends to the loft conversion, which has been thoughtfully designed to create a versatile bedroom or home office. This upper level room benefits from windows that frame delightful countryside and distant sea views, adding a sense of space and serenity. An en suite WC completes this level, offering additional convenience and privacy.
Outside, the rear garden is a manageable size and adjoins open countryside, providing a wonderful sense of tranquillity. A path runs alongside the property, linking the front and rear gardens, making access easy and practical. The gardens offer a perfect spot for outdoor dining or simply enjoying the peaceful Cornish surroundings.
Additional features of this lovely home include double glazing throughout, electric storage heaters for efficient warmth, and environmentally friendly solar PV panels and solar water heating, helping to reduce energy costs and carbon footprint.
East Looe itself is a charming and vibrant coastal town, rich in history and brimming with things to see and do. The town`s picturesque harbour is a hub of activity, where you can watch the fishing boats come and go or enjoy fresh seafood at one of the many harbourside restaurants and cafés. The nearby sandy beach is perfect for families, offering safe swimming and opportunities for rock pooling and beachcombing.
For those who enjoy the outdoors, East Looe is surrounded by stunning countryside and coastal paths, ideal for walking, cycling, and wildlife spotting. The South West Coast Path runs close by, providing breathtaking views of the rugged coastline and the chance to explore hidden coves and beaches. Water sports enthusiasts will find plenty to keep them busy, with opportunities for kayaking, paddleboarding, and sailing.
With excellent schools nearby and good transport links, including regular bus services, this property offers a wonderful opportunity to enjoy the best of Cornish coastal living in a comfortable and adaptable home. Whether you are looking for a permanent residence, a holiday retreat, or a versatile investment, this semi-detached bungalow in East Looe is sure to impress.
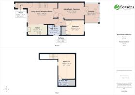
Accommodation
Ground Floor: porch, dining/reception, kitchen, living room, conservatory, inner hall, double bedroom, wet room.
First Floor: bedroom, en suite wc with wash hand basin.
Gardens
There is a low maintenance garden to the front with a path to the front door and around the side to the rear garden. This is a small manageable area with paving, shed and a bank separating it from the adjoining fields. From the rear garden there are countryside and distant sea views.
Parking
There is a brick paved hard standing immediately adjacent to the property with further residents and visitors parking opposite in a designated off road area.
Tenure
Freehold
Services: Mains water, electricity and drainage.
Landline: Connected.
Broadband: Connected.
Mobile: For information on the strength and availability of mobile phone signals please refer to
Heating: Dimplex Quantum fan assisted night store heaters and independent panel heaters.
Solar: The property has solar PV and water heating with panels on the front and rear. These are owned and not leased and we understand these are connected to the feed in tariff.
Windows: uPVC double glazed on the ground floor with velux double glazed roof windows on the first floor.
Construction: (Information taken from the EPC) Cavity wall with insulation.
Fixtures and Fittings: Oven, hob and cooker hood.
Council Tax: Band C
EPC Rating: D67.
Flood Risk: The property is not in flood zones 2 or 3. (source: Cornwall Interactive Mapping).
Conservation Area: No.
Planning Information: The following applications are shown on the Cornwall Planning Website ( Construction of a conservatory to the rear. Approved with conditions on 23/11/2001 under ref: E2/01/01278/FUL.
Access: Level.
Directions
From our office proceed along Station Road passing the doctors surgery and train station on your left hand side. Continue along and take the right hand junction heading towards Plymouth. Proceed up the hill and take the second right into Barbican Road. Continue along this road passing Looe Academy on your right hand side, taking the second left into Rame View. Follow the road and just before the end take the right turning and the property can be found on your left.
Notice
IMPORTANT NOTE: Messrs Seasons Estate Agents Ltd for themselves and for the vendors or lessors of this property whose agents they are give notice that: these particulars are set out as a general outline only for the guidance of intended purchasers or lesses, and do not constitute part of, an offer or contract; all descriptions, dimensions, floor plans, reference to condition and necessary permissions for use and occupation, and other details are given without responsibility and any intending purchasers or tenants should not rely on them as statements or representations of fact but must satisfy themselves by inspection or otherwise as to the correctness of each of them; no person in the employment of Messrs Seasons Estate Agents Ltd has any authority to make or give any representation or warranty whatsoever in relation to this property.
- COUNCIL TAXA payment made to your local authority in order to pay for local services like schools, libraries, and refuse collection. The amount you pay depends on the value of the property.Read more about council Tax in our glossary page.
- Band: C
- PARKINGDetails of how and where vehicles can be parked, and any associated costs.Read more about parking in our glossary page.
- Off street
- GARDENA property has access to an outdoor space, which could be private or shared.
- Private garden
- ACCESSIBILITYHow a property has been adapted to meet the needs of vulnerable or disabled individuals.Read more about accessibility in our glossary page.
- Ask agent
Rame View, East Looe
Add an important place to see how long it'd take to get there from our property listings.
__mins driving to your place
Get an instant, personalised result:
- Show sellers you’re serious
- Secure viewings faster with agents
- No impact on your credit score
Your mortgage
Notes
Staying secure when looking for property
Ensure you're up to date with our latest advice on how to avoid fraud or scams when looking for property online.
Visit our security centre to find out moreDisclaimer - Property reference 2064_SEEA. The information displayed about this property comprises a property advertisement. Rightmove.co.uk makes no warranty as to the accuracy or completeness of the advertisement or any linked or associated information, and Rightmove has no control over the content. This property advertisement does not constitute property particulars. The information is provided and maintained by Seasons Estate Agents Ltd, East Looe. Please contact the selling agent or developer directly to obtain any information which may be available under the terms of The Energy Performance of Buildings (Certificates and Inspections) (England and Wales) Regulations 2007 or the Home Report if in relation to a residential property in Scotland.
*This is the average speed from the provider with the fastest broadband package available at this postcode. The average speed displayed is based on the download speeds of at least 50% of customers at peak time (8pm to 10pm). Fibre/cable services at the postcode are subject to availability and may differ between properties within a postcode. Speeds can be affected by a range of technical and environmental factors. The speed at the property may be lower than that listed above. You can check the estimated speed and confirm availability to a property prior to purchasing on the broadband provider's website. Providers may increase charges. The information is provided and maintained by Decision Technologies Limited. **This is indicative only and based on a 2-person household with multiple devices and simultaneous usage. Broadband performance is affected by multiple factors including number of occupants and devices, simultaneous usage, router range etc. For more information speak to your broadband provider.
Map data ©OpenStreetMap contributors.




