
Beaufort Way, Bradwell, Great Yarmouth, NR31 9YW

- PROPERTY TYPE
Detached
- BEDROOMS
4
- SIZE
Ask developer
- TENUREDescribes how you own a property. There are different types of tenure - freehold, leasehold, and commonhold.Read more about tenure in our glossary page.
Freehold
Key features
- Impressive kitchen/family/dining room with French doors to garden
- En suite to bedroom 1
- Downstairs WC and utility room with side access
- Bay window to the living room
- Plenty of storage throughout
- Family bathroom with modern fixtures and fittings
- Study upstairs
- Energy efficient
Description
The Lambridge is a four-bedroom family home. The spacious kitchen/family/dining room enjoys an open aspect through French doors to the rear garden. There’s a bright front-aspect living room with a bay window, a downstairs WC and handy utility. Upstairs you’ll find four bedrooms - bedroom one benefiting from an en suite - plus a convenient study, modern-fitted family bathroom and two storage cupboards.
Additional Information
- Tenure: Freehold
- Council tax band: Not made available by local authority until post-occupation
Parking - Single Garage
Room Dimensions
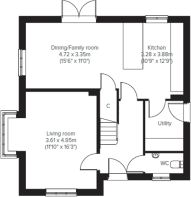
- Dining/Family room - 4.72 x 3.35 metre
- Kitchen - 3.28 x 3.88 metre
- Living room - 3.61 x 4.95 metre
- Bedroom One - 3.61 x 4.9 metre
- Bedroom Two - 4.25 x 4.11 metre
- Bedroom Three - 3.33 x 2.4 metre
- Bedroom Four - 2.33 x 3.45 metre
- Study - 2.16 x 2.4 metre
- COUNCIL TAXA payment made to your local authority in order to pay for local services like schools, libraries, and refuse collection. The amount you pay depends on the value of the property.Read more about council Tax in our glossary page.
- Ask developer
- PARKINGDetails of how and where vehicles can be parked, and any associated costs.Read more about parking in our glossary page.
- Yes
- GARDENA property has access to an outdoor space, which could be private or shared.
- Yes
- ACCESSIBILITYHow a property has been adapted to meet the needs of vulnerable or disabled individuals.Read more about accessibility in our glossary page.
- Ask developer
Energy performance certificate - ask developer
- Wide choice of 2, 3, 4 and 5 bedroom homes
- Range of amenities on your doorstep
- Easy access to Great Yarmouth & Norwich
- A range of Ofsted-rated 'Good' schools nearby
Beaufort Way, Bradwell, Great Yarmouth, NR31 9YW
Add an important place to see how long it'd take to get there from our property listings.
__mins driving to your place
Get an instant, personalised result:
- Show sellers you’re serious
- Secure viewings faster with agents
- No impact on your credit score
About Persimmon Homes Anglia
Welcome to Bluebell Meadow – modern new houses for sale, Great Yarmouth
Nestled in Bradwell, Great Yarmouth. Bluebell Meadow offers a lovely mix of one, two, three and four-bedroom Norfolk houses. This up-and-coming neighbourhood is perfectly placed between open green spaces, sandy shores and the vibrant town of Great Yarmouth.
Stylish new build Norfolk houses in Great Yarmouth
Bluebell Meadow has been created with breathing space and neighbourly living in mind. Green pockets, paths perfect for walking the dog and the edge‑of‑town setting create a peaceful daily atmosphere, while the nearby beach and local nature spots make it easy to enjoy Norfolk’s outdoorsy lifestyle.
New build homes with excellent transport links to Great Yarmouth and Norwich
From your door, Great Yarmouth is just minutes away by road, connecting you to its train station, which offers regular direct links to Norwich and onto London. The A143 offers smooth links across Norfolk, making trips to surrounding towns simple for work or weekend adventures.
Everything you need on your doorstep
Bradwell is a well-established area with everyday essentials close to home, including shops, supermarkets, cafés and local services. Families benefit from nearby schools and community facilities, while Great Yarmouth’s wider choice of amenities is just a short hop away.
Explore the outdoors in Norfolk
Step outside and discover miles of open skies, beautiful walking routes and the Norfolk coastline. From scenic footpaths to uplifting seaside strolls, Bluebell Meadow places you moments from nature’s best backdrops, perfect for unwinding, exploring or simply enjoying easy living.
Ready to make your move?
To explore our new houses for sale in Bradwell and start your new build journey, speak to one of our friendly sales advisors today
This development offers the following schemes:
- New Build Boost
- Deposit Boost: 5% Deposit Contribution Scheme
- Part Exchange your home
- Own New Rate Reducer Scheme
- Home Change
- Armed Forces, Key Workers & NHS Discount Scheme
- Rezide Equity Loan
Schemes are available on selected plots only, subject to status, terms and conditions apply. Contact the development for latest information.
Affordability
Notes
Staying secure when looking for property
Ensure you're up to date with our latest advice on how to avoid fraud or scams when looking for property online.
Visit our security centre to find out moreDisclaimer - Property reference 4_780. The information displayed about this property comprises a property advertisement. Rightmove.co.uk makes no warranty as to the accuracy or completeness of the advertisement or any linked or associated information, and Rightmove has no control over the content. This property advertisement does not constitute property particulars. The information is provided and maintained by Persimmon Homes Anglia. Please contact the selling agent or developer directly to obtain any information which may be available under the terms of The Energy Performance of Buildings (Certificates and Inspections) (England and Wales) Regulations 2007 or the Home Report if in relation to a residential property in Scotland.
*This is the average speed from the provider with the fastest broadband package available at this postcode. The average speed displayed is based on the download speeds of at least 50% of customers at peak time (8pm to 10pm). Fibre/cable services at the postcode are subject to availability and may differ between properties within a postcode. Speeds can be affected by a range of technical and environmental factors. The speed at the property may be lower than that listed above. You can check the estimated speed and confirm availability to a property prior to purchasing on the broadband provider's website. Providers may increase charges. The information is provided and maintained by Decision Technologies Limited. **This is indicative only and based on a 2-person household with multiple devices and simultaneous usage. Broadband performance is affected by multiple factors including number of occupants and devices, simultaneous usage, router range etc. For more information speak to your broadband provider.
Map data ©OpenStreetMap contributors.






