
4 bedroom detached house for sale
Bennetts Rd, Keresley, Coventry, CV7 8QD

- PROPERTY TYPE
Detached
- BEDROOMS
4
- SIZE
Ask developer
- TENUREDescribes how you own a property. There are different types of tenure - freehold, leasehold, and commonhold.Read more about tenure in our glossary page.
Freehold
Key features
- 10 year NHBC Buildmark warranty
- 2 year customer care warranty
- Open plan kitchen and dining with French doors to the garden
- Downstairs cloakroom
- Ground floor study
- En-suite to bedroom 1
- Plenty of storage
Description
Home 28 - The Lavender is a beautifully designed fourâ�'bedroom home offers generous, flexible living throughout, with an openâ�'plan kitchen, dining and family space forming the vibrant heart of the home, complemented by a separate living room and a dedicated study for work or quiet moments. Thoughtful touches such as a cloakroom and ample storage keep everyday life running smoothly, while upstairs four wellâ�'proportioned bedrooms provide room for everyone, including a private en suite to bedroom one and a contemporary family bathroom. A home created for modern living, where space, comfort and practicality come together effortlessly.
Please refer to the sales consultant for specific plot details as the illustrations shown are computer generated impressions of how the property may look so are indicative only. External details or finishes may vary on individual plots and homes may be built in either detached or attached styles depending on the development layout. Exact specifications, window styles and whether a property is left or right handed may differ from plot to plot. The floorplans shown are not to scale. Measurements are based on the original drawings. Slight variations may occur during construction.
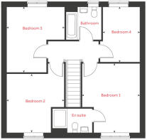
Room Dimensions
- Kitchen / dining area / family area - 8.11 x 3.25 26' 8" x 10' 8"
- Living room - 4.22 x 3.51 13' 10" x 11' 6"
- Study - 2.35 x 1.75 7' 9" x 5' 9"
- Bedroom 1 - 4.22 x 3.51 12' 1" x 9' 5"
- Bedroom 2 - 3.59 x 3.50 11' 9" x 11' 6"
- Bedroom 3 - 3.99 x 3.53 13' 1" x 11' 7"
- Bedroom 4 - 3.36 x 2.25 11' 0" x 7' 5"
- COUNCIL TAXA payment made to your local authority in order to pay for local services like schools, libraries, and refuse collection. The amount you pay depends on the value of the property.Read more about council Tax in our glossary page.
- Ask developer
- PARKINGDetails of how and where vehicles can be parked, and any associated costs.Read more about parking in our glossary page.
- Ask developer
- GARDENA property has access to an outdoor space, which could be private or shared.
- Yes
- ACCESSIBILITYHow a property has been adapted to meet the needs of vulnerable or disabled individuals.Read more about accessibility in our glossary page.
- Ask developer
Energy performance certificate - ask developer
Bennetts Rd, Keresley, Coventry, CV7 8QD
Add an important place to see how long it'd take to get there from our property listings.
__mins driving to your place
Get an instant, personalised result:
- Show sellers you’re serious
- Secure viewings faster with agents
- No impact on your credit score
About Vistry SWM (Linden)
The Meadows at Woodland View
Situated just 3.5 miles from Coventry, The Meadows at Woodland View offers the best of both worlds - a relaxed pace of life with all the convenience of being close to the city. Excellent transport links, including easy access to Coventry train station and the M6 and M1 motorways, mean you can reach nearby major cities in no time. Keresley itself offers miles of countryside for you to explore, with beautiful green spaces within easy reach. And when it's time to enjoy a day out, there's something for everyone close by.
Our selection of new homes for sale are designed with modern living in mind. Each one comes with eco-friendly features like solar panels, electric vehicle charging points, and A-rated double-glazed windows, helping you save on energy bills while doing your bit for the environment.
Why rent when you could buy?
Imagine walking through the door of a home that's truly yours...with a selection of homes to choose from at competitive prices, flexible buying options and schemes to help, now is the perfect time to make the move. We're here to help get you moving. Ask our sales consultant for more information.
With a selection of homes to choose from at competitive prices, flexible buying options and schemes to help, now is the perfect time to make the move.
We're here to help get you moving. Ask our sales consultant for more information.
Your mortgage
Notes
Staying secure when looking for property
Ensure you're up to date with our latest advice on how to avoid fraud or scams when looking for property online.
Visit our security centre to find out moreDisclaimer - Property reference 4_28. The information displayed about this property comprises a property advertisement. Rightmove.co.uk makes no warranty as to the accuracy or completeness of the advertisement or any linked or associated information, and Rightmove has no control over the content. This property advertisement does not constitute property particulars. The information is provided and maintained by Vistry SWM (Linden). Please contact the selling agent or developer directly to obtain any information which may be available under the terms of The Energy Performance of Buildings (Certificates and Inspections) (England and Wales) Regulations 2007 or the Home Report if in relation to a residential property in Scotland.
*This is the average speed from the provider with the fastest broadband package available at this postcode. The average speed displayed is based on the download speeds of at least 50% of customers at peak time (8pm to 10pm). Fibre/cable services at the postcode are subject to availability and may differ between properties within a postcode. Speeds can be affected by a range of technical and environmental factors. The speed at the property may be lower than that listed above. You can check the estimated speed and confirm availability to a property prior to purchasing on the broadband provider's website. Providers may increase charges. The information is provided and maintained by Decision Technologies Limited. **This is indicative only and based on a 2-person household with multiple devices and simultaneous usage. Broadband performance is affected by multiple factors including number of occupants and devices, simultaneous usage, router range etc. For more information speak to your broadband provider.
Map data ©OpenStreetMap contributors.






