
2 bedroom detached house for sale
Stirling Road, Northstowe, CB24 1DJ

- PROPERTY TYPE
Detached
- BEDROOMS
2
- SIZE
Ask developer
- TENUREDescribes how you own a property. There are different types of tenure - freehold, leasehold, and commonhold.Read more about tenure in our glossary page.
Ask developer
Key features
- Detached 2 bedroom home
- 2 Double bedrooms with an En-suite to bedroom 1
- Handy storage
- Kitchen dining room with breakfast bar
- French doors on to your own garden space
Description
Plot 237, The York is a detached home with parking included for x 1 car available to buy with a discount open market scheme meaning first time buyers save 20%*, ask our team for more information. PLUS £10,000 paid towards your deposit*Discount already applied, full purchase price £365,000.
This modern 2 bedroom detached home at Stirling Fields, Northstowe offers a bright kitchen/dining room with French doors to the garden, a ground floor WC and useful storage. Upstairs, a spacious dual aspect lounge offers versatile living, while Bedroom 1 features an en suite. Bedroom 2 is served by a contemporary family bathroom. With well planned layouts and generous storage throughout, this home is ideal for first time buyers, downsizers or professionals seeking modern living close to Cambridge. Tenure: Freehold. Council tax: Council tax: To be released by the local authority. Estate management fee: From £301.15 pa.
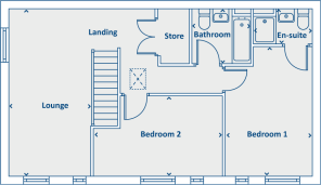
Room Dimensions
- Kitchen / Dining - 3918mm x 6057mm or 12'10" x 19'10"
- WC - 972mm x 1600mm or 3'2" x 5'3"
- Lounge - 2945mm x 6085mm or 9'8" x 20'0"
- Bedroom 1 - 3258mm x 4028mm or 10'8" x 13'3"
- En-suite - 2300mm x 1964mm or 7'7" x 6'5"
- Bedroom 2 - 4635mm x 2888mm or 15'2" x 9'6"
- Bathroom - 2150mm x 1964mm or 7'1" x 6'5"
- COUNCIL TAXA payment made to your local authority in order to pay for local services like schools, libraries, and refuse collection. The amount you pay depends on the value of the property.Read more about council Tax in our glossary page.
- Ask developer
- PARKINGDetails of how and where vehicles can be parked, and any associated costs.Read more about parking in our glossary page.
- Yes
- GARDENA property has access to an outdoor space, which could be private or shared.
- Yes
- ACCESSIBILITYHow a property has been adapted to meet the needs of vulnerable or disabled individuals.Read more about accessibility in our glossary page.
- Ask developer
Energy performance certificate - ask developer
- A prime location in a unique community
- A superb choice of 1 & 2-bedroom apartments and 2, 3 & 4 -bedroom family homes
- Easy access to schools, shops, country pubs and local amenities
- Only 20 minutes from Cambridge city centre
Stirling Road, Northstowe, CB24 1DJ
Add an important place to see how long it'd take to get there from our property listings.
__mins driving to your place
Get an instant, personalised result:
- Show sellers you’re serious
- Secure viewings faster with agents
- No impact on your credit score
About Keepmoat
Discover Stirling Fields at Northstowe - escape the bustle of Cambridge and find your place in a bold new town just minutes away. Offering a collection of high-quality 1 - 4 bedroom homes, Northstowe is a truly forward-thinking community designed around green space, walkability and wellbeing. With a new Nursery, Primary and Secondary schools, plus a 6th Form College already in place ? alongside lakes, parks and cycleways - it's the ideal move for those looking to leave the city while staying perfectly connected.Stirling Fields lies at the heart of this vibrant new destination, with a distinctive mix of beautifully crafted private homes and Discounted Market Sale properties (20% for First-Time Buyers) - delivered in partnership with Homes England - offering a rare opportunity to take your next step.Whether you're starting out, growing your family, or seeking a more balanced lifestyle, Northstowe gives you the space, freedom and community spirit to live well and grow.
Your mortgage
Notes
Staying secure when looking for property
Ensure you're up to date with our latest advice on how to avoid fraud or scams when looking for property online.
Visit our security centre to find out moreDisclaimer - Property reference 19535_2_56_100690. The information displayed about this property comprises a property advertisement. Rightmove.co.uk makes no warranty as to the accuracy or completeness of the advertisement or any linked or associated information, and Rightmove has no control over the content. This property advertisement does not constitute property particulars. The information is provided and maintained by Keepmoat. Please contact the selling agent or developer directly to obtain any information which may be available under the terms of The Energy Performance of Buildings (Certificates and Inspections) (England and Wales) Regulations 2007 or the Home Report if in relation to a residential property in Scotland.
*This is the average speed from the provider with the fastest broadband package available at this postcode. The average speed displayed is based on the download speeds of at least 50% of customers at peak time (8pm to 10pm). Fibre/cable services at the postcode are subject to availability and may differ between properties within a postcode. Speeds can be affected by a range of technical and environmental factors. The speed at the property may be lower than that listed above. You can check the estimated speed and confirm availability to a property prior to purchasing on the broadband provider's website. Providers may increase charges. The information is provided and maintained by Decision Technologies Limited. **This is indicative only and based on a 2-person household with multiple devices and simultaneous usage. Broadband performance is affected by multiple factors including number of occupants and devices, simultaneous usage, router range etc. For more information speak to your broadband provider.
Map data ©OpenStreetMap contributors.






