
Paice Lane, Medstead, GU34

- PROPERTY TYPE
Detached
- BEDROOMS
4
- BATHROOMS
4
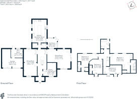
- SIZE
2,747 sq ft
255 sq m
- TENUREDescribes how you own a property. There are different types of tenure - freehold, leasehold, and commonhold.Read more about tenure in our glossary page.
Freehold
Key features
- 4 Bedrooms
- 3 En Suite Shower Rooms
- Family Bathroom
- Reception Hall
- 21'5/6.5m Sitting Room
- Dining Room
- Study/2nd Sitting Room
- Sun Room
- 21'1/6.43 Kitchen/Breakfast Room
- Garage
Description
The house has been carefully enlarged with skill to create a very generous family home with bright and well-proportioned accommodation with high ceilings and large windows. Features of note include a large triple aspect sitting room with doors opening out to the garden and a wood burning stove. The further accommodation includes a twin aspect dining room, an ideally positioned sun room and a separate study/2nd sitting room providing additional flexibility and an ideal layout for everyday family living.
The living accommodation is beautifully complemented by a very spacious kitchen/breakfast room with multiple doors opening out to the garden. The kitchen is set around an island/breakfast bar and is fitted with twin electric ovens, gas hob and dishwasher together with a water softener and a range of eye and base level cabinets with quartz work surfaces.
The first floor accommodation is of equal merit and includes four bedrooms and a family bathroom with a bath, basin and WC. Of note, three of the bedrooms have the benefit of an en suite shower room.
The first floor accommodation is of equal merit and includes four bedrooms and a family bathroom with a bath, basin and WC. Of note, three of the bedrooms have the benefit of an suite shower room.
Outside
The gardens and grounds are a very special feature of the property and provide a beautiful south-west facing setting. The house is approached via a pair of in and out driveways providing ample parking and access to the garage and store areas. The garden has been landscaped with a raised area of decking providing an ideal outside seating area (with fine views over open countryside) together with broad areas of lawn and a variety of flowering plants and shrubs, mature hedgerows and a selection of trees. Of note, there is a further paved area of terrace set between the kitchen/breakfast room and rear of the garage. Within the garden there is also a timber shed.
Situation
The property occupies a very fine location, off a small country lane, about a mile and a half from the centre of the village. Medstead is a thriving and very active village centred around a village green and hall with a strong community and a broad range of clubs and societies for all ages including a cricket club, tennis club, bowls club, and gardeners club to name a few. The village also has the benefit of a number of amenities with 'The Castle of Comfort' Inn, C of E primary school , St. Andrew's Church, local shops and cafe. The beautiful surrounding countryside provides ample opportunity for many country pursuits with footpaths leading directly from the lane. The market towns of Alton and Alresford both provide a good range of facilities with two secondary schools, sixth form college and a station to London Waterloo at Alton and the well renowned Perins secondary school at Alresford.
Property Ref Number:
HAM-62872Additional Information
Mains electricity, gas & water
Private drainage
Brochures
Brochure- COUNCIL TAXA payment made to your local authority in order to pay for local services like schools, libraries, and refuse collection. The amount you pay depends on the value of the property.Read more about council Tax in our glossary page.
- Band: G
- PARKINGDetails of how and where vehicles can be parked, and any associated costs.Read more about parking in our glossary page.
- Garage,Off street
- GARDENA property has access to an outdoor space, which could be private or shared.
- Private garden
- ACCESSIBILITYHow a property has been adapted to meet the needs of vulnerable or disabled individuals.Read more about accessibility in our glossary page.
- Ask agent
Paice Lane, Medstead, GU34
Add an important place to see how long it'd take to get there from our property listings.
__mins driving to your place
Get an instant, personalised result:
- Show sellers you’re serious
- Secure viewings faster with agents
- No impact on your credit score
Your mortgage
Notes
Staying secure when looking for property
Ensure you're up to date with our latest advice on how to avoid fraud or scams when looking for property online.
Visit our security centre to find out moreDisclaimer - Property reference a1nQ500000YK9DMIA1. The information displayed about this property comprises a property advertisement. Rightmove.co.uk makes no warranty as to the accuracy or completeness of the advertisement or any linked or associated information, and Rightmove has no control over the content. This property advertisement does not constitute property particulars. The information is provided and maintained by Hamptons, Alton. Please contact the selling agent or developer directly to obtain any information which may be available under the terms of The Energy Performance of Buildings (Certificates and Inspections) (England and Wales) Regulations 2007 or the Home Report if in relation to a residential property in Scotland.
*This is the average speed from the provider with the fastest broadband package available at this postcode. The average speed displayed is based on the download speeds of at least 50% of customers at peak time (8pm to 10pm). Fibre/cable services at the postcode are subject to availability and may differ between properties within a postcode. Speeds can be affected by a range of technical and environmental factors. The speed at the property may be lower than that listed above. You can check the estimated speed and confirm availability to a property prior to purchasing on the broadband provider's website. Providers may increase charges. The information is provided and maintained by Decision Technologies Limited. **This is indicative only and based on a 2-person household with multiple devices and simultaneous usage. Broadband performance is affected by multiple factors including number of occupants and devices, simultaneous usage, router range etc. For more information speak to your broadband provider.
Map data ©OpenStreetMap contributors.








