
2 bedroom cottage for sale
High Street, Crediton, EX17

- PROPERTY TYPE
Cottage
- BEDROOMS
2
- BATHROOMS
1
- SIZE
861 sq ft
80 sq m
- TENUREDescribes how you own a property. There are different types of tenure - freehold, leasehold, and commonhold.Read more about tenure in our glossary page.
Freehold
Key features
- Grade II listed cottage with period character throughout
- Central High Street location with a level walk into town
- Flexible accommodation arranged over three floors
- Two bedrooms plus a spacious loft room currently used as a living room
- Ground floor kitchen and dining room forming the heart of the home
- Internal double glazing helping improve comfort and insulation
- Small cellar
- Private outdoor area within a shared rear courtyard
- Parking permits available nearby, with on-street options in surrounding roads
Description
Set towards the top of Crediton’s historic High Street, this Grade II listed cottage offers a characterful and surprisingly adaptable home, arranged over three floors and more space than first impressions might suggest. The level walk into town means that shops, cafés, schools and local amenities are all close at hand, making it a convenient base for town living while still retaining a sense of individuality.
Inside, the property is presented in lovely condition and has been thoughtfully used by the current owners to suit modern living. The ground floor is arranged as a generous kitchen and dining space, which works well as the main hub of the home. Fitted with a country style range of units, there is plenty of cupboard and worktop space, along with room for an American-style fridge freezer and freestanding cooker. Windows to the front, along with internal double glazing, help keep the space light while improving insulation. There is also useful storage to the rear and access to a small cellar, ideal for keeping household items tucked away.
On the first floor, the layout includes two bedrooms and a bathroom. One of the bedrooms is a comfortable double with built-in wardrobe storage, while the second room works equally well as a bedroom, guest room or study. The bathroom is fitted with a white suite including a bath with shower over and benefits from internal double glazing to the rear.
The top floor is currently used as a living room, taking advantage of the vaulted feel and roof windows to both front and rear, creating a bright and airy space away from the bustle of the High Street. This room also works well as a spacious principal bedroom if preferred, underlining the flexibility of the house and allowing the accommodation to be arranged to suit different needs.
To the rear of the property is a private area, set within the wider courtyard with space for a shed or secure motorbike storage, and rights of way are in place across the courtyard, which is owned by neighbouring properties. There is no parking with the house but an annual pass can be purchased for the town car park, or private spaces are sometimes available locally, as is on road parking in nearby streets.
Overall, this is a home with real personality, combining period character, flexible living space and a central location. It suits someone looking for something a little different, with the freedom to arrange the rooms around how they actually want to live.
Agents Notes:
Boundaries, Access & Parking:
Boundary positions, access rights and parking arrangements have been provided by the seller, and any land plans shown are for identification purposes only. We have not seen the title deeds or other legal documents, and buyers should confirm exact details and ownership responsibilities with their conveyancer.
Broadband & Mobile Coverage:
Broadband speeds and mobile signal vary by provider and location, and service availability can change over time. Buyers can check current availability and predicted speeds at or via the Ofcom coverage checker.
Virtual Staging:
Some images used in this marketing material may be virtually staged for illustration purposes. Buyers should not assume that furnishings, décor, or condition shown are representative of the property as currently presented.
Rights of Way:
We’re informed by the seller that the property [benefits from / is subject to] a right of way [state location]. Buyers are advised to confirm details and legal status with their conveyancer.
Flying Freehold:
We’re informed by the seller that part of the property extends over the alleyway to the courtyard, creating a flying freehold element. Buyers should confirm the extent and legal arrangements with their conveyancer and mortgage lender.
Buyers' Compliance Fee Notice
Please note that a compliance check fee of £25 (inc. VAT) per person is payable once your offer is accepted. This non-refundable fee covers essential ID verification and anti-money laundering checks, as required by law.
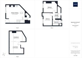
Please see the floorplan for room sizes.
Current Council Tax: Band A – Mid Devon
Approx Age: 1800’s
Construction Notes: Cob/stone under tiled roof
Utilities: Mains electric, water, gas, telephone & broadband
Drainage: Mains
Heating: Mains gas
Listed: Yes Grade II
Conservation Area: Yes
Tenure: Freehold
CREDITON is a vibrant market town with a bustling high street full of independent shops, eateries, and pubs. In recent years a diverse arts scene has grown to include all manner of mediums, with the performing arts making use of the town’s market square where, in the summer months, a range of activities take place. The market square is also home to the town’s twice-monthly farmer’s market. The town has an equally significant past. It was originally the first Bishopric in Devon and the imposing Parish Church of The Holy Cross now stands where once stood Devon’s first Saxon cathedral (909-1050AD). It is also the birthplace of Saint Boniface, one of the founding fathers of the Christian church in Europe. Easily commutable to Exeter and with two primary schools, a secondary school with sixth form as well as a wide range of necessary amenities, it’s clear why the town is a firm favourite with locals and relocators alike.
DIRECTIONS
For sat-nav use EX17 3JX and the What3Words address is ///norms.teach.according but if you want the traditional directions, please read on.
The property is at the upper end (towards The Green) of the High Street on the left as you head towards The Green from the main High Street. Parking is available in St Saviours Way car park (annual tickets available).
EPC Rating: E
Yard
Private area set within wider courtyard
Brochures
Property Brochure- COUNCIL TAXA payment made to your local authority in order to pay for local services like schools, libraries, and refuse collection. The amount you pay depends on the value of the property.Read more about council Tax in our glossary page.
- Band: A
- LISTED PROPERTYA property designated as being of architectural or historical interest, with additional obligations imposed upon the owner.Read more about listed properties in our glossary page.
- Listed
- PARKINGDetails of how and where vehicles can be parked, and any associated costs.Read more about parking in our glossary page.
- Yes
- GARDENA property has access to an outdoor space, which could be private or shared.
- Private garden
- ACCESSIBILITYHow a property has been adapted to meet the needs of vulnerable or disabled individuals.Read more about accessibility in our glossary page.
- Ask agent
High Street, Crediton, EX17
Add an important place to see how long it'd take to get there from our property listings.
__mins driving to your place
Get an instant, personalised result:
- Show sellers you’re serious
- Secure viewings faster with agents
- No impact on your credit score
Your mortgage
Notes
Staying secure when looking for property
Ensure you're up to date with our latest advice on how to avoid fraud or scams when looking for property online.
Visit our security centre to find out moreDisclaimer - Property reference a4c9e222-23de-4aa6-a23f-ac3489b36dbc. The information displayed about this property comprises a property advertisement. Rightmove.co.uk makes no warranty as to the accuracy or completeness of the advertisement or any linked or associated information, and Rightmove has no control over the content. This property advertisement does not constitute property particulars. The information is provided and maintained by Helmores, Crediton. Please contact the selling agent or developer directly to obtain any information which may be available under the terms of The Energy Performance of Buildings (Certificates and Inspections) (England and Wales) Regulations 2007 or the Home Report if in relation to a residential property in Scotland.
*This is the average speed from the provider with the fastest broadband package available at this postcode. The average speed displayed is based on the download speeds of at least 50% of customers at peak time (8pm to 10pm). Fibre/cable services at the postcode are subject to availability and may differ between properties within a postcode. Speeds can be affected by a range of technical and environmental factors. The speed at the property may be lower than that listed above. You can check the estimated speed and confirm availability to a property prior to purchasing on the broadband provider's website. Providers may increase charges. The information is provided and maintained by Decision Technologies Limited. **This is indicative only and based on a 2-person household with multiple devices and simultaneous usage. Broadband performance is affected by multiple factors including number of occupants and devices, simultaneous usage, router range etc. For more information speak to your broadband provider.
Map data ©OpenStreetMap contributors.







