Sienna Court, St James Drive, Balham, London, SW12 8SX

- PROPERTY TYPE
Flat
- BEDROOMS
1
- BATHROOMS
1
- SIZE
Ask agent
Key features
- Lots to do nearby
- Excellent Transport links via Wandsworth Common Station (0.2 miles) and Balham Underground Station (0.6 miles)
- Green Spaces to enjoy
- Allocated parking space
- Long Lease of 156 Years
Description
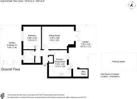
Southern Housing are pleased to present this stunning 645sq foot 1 bedroom apartment in Wandsworth Common, featuring private front and rear gardens.
This inviting ground floor flat offers a rare combination of practical living space and private outdoor areas, with both a front and rear garden adding valuable versatility. The property is presented in good condition and provides an excellent opportunity for a buyer seeking a home they can personalise.
Inside, the layout supports comfortable everyday living, featuring a bright reception room, a functional kitchen, a bathroom and a well proportioned bedroom. It is well suited to first time buyers or downsizers alike.
Additional benefits include a dedicated parking space, a favourable energy rating and leasehold tenure.
Don't miss out and register your interest to find out how you can book in to view!*
Key Information:
- Full Market Value: £480,000
- Share: 55%, £264,000
- Rent: £257.78
- Service Charges: £156.33
- Lease Length: 156 Years
*Viewings subject to passing initial affordability assessment. Applicants who are on the Wandsworth Shared Ownership Register have priority. More information about this can be found here:
Sienna Court enjoys a highly desirable position within the Wandsworth Common/Balham area, benefiting from excellent access to everyday amenities and convenient transport links. Residents are only a short distance from a variety of shops, cafés and services, with Balham and Bellevue Road offering a lively mix of independent retailers, dining options and neighbourhood conveniences.
The area is well connected, making travel straightforward whether commuting or exploring the wider city. Wandsworth Common mainline station is just 0.2 miles away, providing regular rail services including trains to London Victoria in 13 minutes. There are also underground services from both Tooting Bec and Balham Underground stations, the latter being just 0.6 miles away. Both options offer fast links across London via the Northern Line. This makes the location particularly attractive for those who value efficient transport connections.
Green space is another standout feature of the surroundings. Wandsworth Common, one of South London's best loved open spaces, is just moments away and offers extensive parkland, woodland, ponds and recreational areas ideal for walking, exercising or relaxing outdoors. Its proximity adds a welcome sense of calm and natural beauty to daily life.
Altogether, the area around Sienna Court combines convenience, connectivity and access to nature, making it a well rounded and appealing neighbourhood for residents.
Key Features:
- Lots to do nearby
- Excellent Transport links via Wandsworth Common Station (0.2 miles) and Balham Underground Station (0.6 miles)
- Green Spaces to enjoy
- Allocated parking space
- Long Lease of 156 Years
Brochures
Key Information Document- COUNCIL TAXA payment made to your local authority in order to pay for local services like schools, libraries, and refuse collection. The amount you pay depends on the value of the property.Read more about council Tax in our glossary page.
- Band: C
- PARKINGDetails of how and where vehicles can be parked, and any associated costs.Read more about parking in our glossary page.
- Yes
- GARDENA property has access to an outdoor space, which could be private or shared.
- Yes
- ACCESSIBILITYHow a property has been adapted to meet the needs of vulnerable or disabled individuals.Read more about accessibility in our glossary page.
- No wheelchair access
Energy performance certificate - ask agent
Sienna Court, St James Drive, Balham, London, SW12 8SX
Add an important place to see how long it'd take to get there from our property listings.
__mins driving to your place
Get an instant, personalised result:
- Show sellers you’re serious
- Secure viewings faster with agents
- No impact on your credit score
Your mortgage
Notes
Staying secure when looking for property
Ensure you're up to date with our latest advice on how to avoid fraud or scams when looking for property online.
Visit our security centre to find out moreDisclaimer - Property reference KS-26435-1-1. The information displayed about this property comprises a property advertisement. Rightmove.co.uk makes no warranty as to the accuracy or completeness of the advertisement or any linked or associated information, and Rightmove has no control over the content. This property advertisement does not constitute property particulars. The information is provided and maintained by Southern Housing (RES), Southern Housing (RES). Please contact the selling agent or developer directly to obtain any information which may be available under the terms of The Energy Performance of Buildings (Certificates and Inspections) (England and Wales) Regulations 2007 or the Home Report if in relation to a residential property in Scotland.
*This is the average speed from the provider with the fastest broadband package available at this postcode. The average speed displayed is based on the download speeds of at least 50% of customers at peak time (8pm to 10pm). Fibre/cable services at the postcode are subject to availability and may differ between properties within a postcode. Speeds can be affected by a range of technical and environmental factors. The speed at the property may be lower than that listed above. You can check the estimated speed and confirm availability to a property prior to purchasing on the broadband provider's website. Providers may increase charges. The information is provided and maintained by Decision Technologies Limited. **This is indicative only and based on a 2-person household with multiple devices and simultaneous usage. Broadband performance is affected by multiple factors including number of occupants and devices, simultaneous usage, router range etc. For more information speak to your broadband provider.
Map data ©OpenStreetMap contributors.




