
4 bedroom link detached house for sale
Dukes Meadow, Backworth Village, NE27

- PROPERTY TYPE
Link Detached House
- BEDROOMS
4
- BATHROOMS
2
- SIZE
Ask agent
- TENUREDescribes how you own a property. There are different types of tenure - freehold, leasehold, and commonhold.Read more about tenure in our glossary page.
Freehold
Key features
- Stunning Barn Conversion
- Open Plan Lounge and Dining Room
- Modern Kitchen
- First Floor Games Room
- Four Double Bedrooms
- En Suite and Family Bathroom
- Front Garden and South Facing Private Courtyard to Rear
- Communal Garden provides space for off-street Parking
- Attached Garage
- Freehold
Description
Providing over 1800 square feet of space, this amazing family home is one of a kind. Featuring a smart home system and wired sound system throughout, the property briefly comprises; open plan lounge and dining room with vaulted ceiling, modern kitchen and first floor games room. There are four double bedrooms, the master with recently renewed en suite, and a family bathroom/WC. There is a front garden and a south facing courtyard leading to a shared courtyard to the rear, plus an attached garage. Gas central heating and double glazing. Internal viewing is essential to appreciate the standard of finish and layout.
To arrange a viewing call COOKE & CO. Energy rating C.
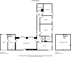
Ground Floor
Lounge/Dining Room
7.77m x 3.7m
A simply stunning living space with vaulted ceiling and exposed beams plus solid oak flooring, providing a lounge area and a dining area.
Additional Lounge/Dining Room Photo
Additional Lounge Photo
The lounge area features a modern corner electric fire with two double glazed windows to the front and a large double glazed arched window to the rear.
Additional Dining Area Photo
The dining area provides ample space for a formal dining table and chairs with a large double glazed window and door to the rear. Door leads through to the kitchen.
Kitchen
5.38m x 2.5m
A superb modern kitchen fitted with a range of wall and base units, integrated electric oven with gas hob and extractor hood above, integrated dishwasher and washing machine, tiled splashback and tiled floor, radiator. Door to the garage. Spindal staircase leads up to games room.
Additional Kitchen Photo
First Floor
Games Room
5.36m x 5.2m
A good size room currently used as a games room situated above the kitchen and garage.
Inner Hallway
Doors lead to the four bedrooms, family bathroom/WC and cloakroom/WC. Double glazed windows to the side and radiators.
Additional Inner Hallway Photo
Cloakroom/WC
Fitted with a low level WC and wash basin. Radiator.
Bedroom One
4.34m x 4.3m
Quality fitted wardrobes, double glazed windows to the side, radiator, door to the en suite.
Additional Bedroom One Photo
En Suite Shower Room/WC
2.3m x 1.93m
A stunning recently installed en suite comprising; large shower cubicle. low level WC and wash basin set in a vanity unit, tiled walls and floor, heated towel rail and electric demisting mirror.
Bedroom Two
4.3m x 2.97m
Fitted wardrobes, radiator, two double glazed windows.
Bedroom Three
5.38m x 2.95m
Double glazed window to the side and radiator.
Bedroom Four
4.14m x 3.45m
Fitted wardrobes, radiator. Double glazed door to the Garden.
Bathroom/WC
2.64m x 2.24m
Fitted with a white suite comprising; panelled bath with shower above, low level WC and wash basin, part tiled walls and Karndean floor, heated towel rail and airing cupboard.
Garage
5.74m x 2.7m
With light and power supply.
External
There is a lawned garden to the front of the property with a mature planted border. To the rear there is a paved south facing private courtyard with a stone wall boundary with gated access to the communal courtyard which provides space for off street parking and access to the garage.
Additional External Photo
Additional External photo 2
South facing private courtyard.
Additional External photo 3
The Barn
Tenure
Freehold
Council Tax
North Tyneside Council Tax Band D
Mortgage Advice
A comprehensive mortgage planning service is available via Darren Smith of NMS Financial Limited. For a free initial consultation contact Darren on . **Your home may be repossessed if you do not keep up repayments on your mortgage**
Location Map
Energy Performance Certificate
EPC Rating C
Brochures
Particulars- COUNCIL TAXA payment made to your local authority in order to pay for local services like schools, libraries, and refuse collection. The amount you pay depends on the value of the property.Read more about council Tax in our glossary page.
- Band: D
- PARKINGDetails of how and where vehicles can be parked, and any associated costs.Read more about parking in our glossary page.
- Yes
- GARDENA property has access to an outdoor space, which could be private or shared.
- Ask agent
- ACCESSIBILITYHow a property has been adapted to meet the needs of vulnerable or disabled individuals.Read more about accessibility in our glossary page.
- Ask agent
Dukes Meadow, Backworth Village, NE27
Add an important place to see how long it'd take to get there from our property listings.
__mins driving to your place
Get an instant, personalised result:
- Show sellers you’re serious
- Secure viewings faster with agents
- No impact on your credit score
Your mortgage
Notes
Staying secure when looking for property
Ensure you're up to date with our latest advice on how to avoid fraud or scams when looking for property online.
Visit our security centre to find out moreDisclaimer - Property reference CCS260018. The information displayed about this property comprises a property advertisement. Rightmove.co.uk makes no warranty as to the accuracy or completeness of the advertisement or any linked or associated information, and Rightmove has no control over the content. This property advertisement does not constitute property particulars. The information is provided and maintained by Cooke & Co, Whitley Bay. Please contact the selling agent or developer directly to obtain any information which may be available under the terms of The Energy Performance of Buildings (Certificates and Inspections) (England and Wales) Regulations 2007 or the Home Report if in relation to a residential property in Scotland.
*This is the average speed from the provider with the fastest broadband package available at this postcode. The average speed displayed is based on the download speeds of at least 50% of customers at peak time (8pm to 10pm). Fibre/cable services at the postcode are subject to availability and may differ between properties within a postcode. Speeds can be affected by a range of technical and environmental factors. The speed at the property may be lower than that listed above. You can check the estimated speed and confirm availability to a property prior to purchasing on the broadband provider's website. Providers may increase charges. The information is provided and maintained by Decision Technologies Limited. **This is indicative only and based on a 2-person household with multiple devices and simultaneous usage. Broadband performance is affected by multiple factors including number of occupants and devices, simultaneous usage, router range etc. For more information speak to your broadband provider.
Map data ©OpenStreetMap contributors.







