High Street, Tarporley

- PROPERTY TYPE
Apartment
- BEDROOMS
3
- BATHROOMS
1
- SIZE
1,229 sq ft
114 sq m
Key features
- Situated in a sought-after central village location.
- Own private entrance.
- Beautifully presented.
- Fully modernised.
- First floor duplex apartment.
- Lounge/Dining Room and Study.
- Breakfast Kitchen.
- Three bedrooms and Family Bathroom.
- South-west facing roof terrace perfect for outside entertainment.
- *** NO CHAIN ***
Description
Location - The award-winning village of Tarporley, is renowned for its Historic High Street which is located approximately 12 miles from Chester and offers a superb range of amenities including fashion boutiques, art galleries, DIY, florists, hairdressers, chemist, hospital, petrol station, and other general stores. There is also a range of pleasant restaurants and public houses, which complete the thriving village. Additionally, Tarporley has the added benefit of two highly regarded Golf courses. Tarporley has its own two churches and both primary and secondary schools. There is easy access to the surrounding villages, motorway, and railway networks, which give access to the north and south of the UK.
In Further Details The Accommodation Comprises:- - Please note that we have not checked any of the appliances or the central heating system included in the sale (if any). All prospective purchasers should satisfy themselves on this point prior to entering the contract.
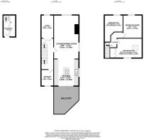
Ground Floor -
Entrance Hall -
First Floor -
Landing -
Lounge/Dining Room - 6.91 x 4.00 (22'8" x 13'1") -
Breakfast Kitchen - 4.28 x 4.00 (14'0" x 13'1") -
Study - 3.67 x 2.00 (12'0" x 6'6") -
Family Bathroom - 2.61 x 2.00 (8'6" x 6'6") -
Second Floor -
Landing -
Bedroom One - 5.00 (including wardrobes) x 3.14 (16'4" (includin -
Bedroom Two - 4.27 (max) x 2.96 (14'0" (max) x 9'8") -
Bedroom Three - 3.67 x 2.75 (12'0" x 9'0") -
Outside -
Roof Terrace -
Tenure - Leasehold. Subject to verification by Vendor's Solicitor.
The current Vendors own the Freehold of the whole building including the Shop. Flat 30 will be sold by way of a long Leasehold with a New Lease prepared.
The current Vendors via separate negotiation would consider selling the whole building (Freehold) including the Shop, which has just been recently re-let.
Services (Not Tested) - We believe that mains water, electricity, and drainage are connected.
Local Authority - Cheshire West And Chester Council. Council Tax – Band B.
Post Code - CW6 0DX
Possession - Vacant possession upon completion.
Viewing - Viewing strictly by appointment through the Agents.
Brochures
Flat 30 High Street 24pp WEB.pdf- COUNCIL TAXA payment made to your local authority in order to pay for local services like schools, libraries, and refuse collection. The amount you pay depends on the value of the property.Read more about council Tax in our glossary page.
- Band: B
- PARKINGDetails of how and where vehicles can be parked, and any associated costs.Read more about parking in our glossary page.
- Ask agent
- GARDENA property has access to an outdoor space, which could be private or shared.
- Ask agent
- ACCESSIBILITYHow a property has been adapted to meet the needs of vulnerable or disabled individuals.Read more about accessibility in our glossary page.
- Ask agent
Energy performance certificate - ask agent
High Street, Tarporley
Add an important place to see how long it'd take to get there from our property listings.
__mins driving to your place
Get an instant, personalised result:
- Show sellers you’re serious
- Secure viewings faster with agents
- No impact on your credit score
Your mortgage
Notes
Staying secure when looking for property
Ensure you're up to date with our latest advice on how to avoid fraud or scams when looking for property online.
Visit our security centre to find out moreDisclaimer - Property reference 34467676. The information displayed about this property comprises a property advertisement. Rightmove.co.uk makes no warranty as to the accuracy or completeness of the advertisement or any linked or associated information, and Rightmove has no control over the content. This property advertisement does not constitute property particulars. The information is provided and maintained by Hinchliffe Holmes, Tarporley. Please contact the selling agent or developer directly to obtain any information which may be available under the terms of The Energy Performance of Buildings (Certificates and Inspections) (England and Wales) Regulations 2007 or the Home Report if in relation to a residential property in Scotland.
*This is the average speed from the provider with the fastest broadband package available at this postcode. The average speed displayed is based on the download speeds of at least 50% of customers at peak time (8pm to 10pm). Fibre/cable services at the postcode are subject to availability and may differ between properties within a postcode. Speeds can be affected by a range of technical and environmental factors. The speed at the property may be lower than that listed above. You can check the estimated speed and confirm availability to a property prior to purchasing on the broadband provider's website. Providers may increase charges. The information is provided and maintained by Decision Technologies Limited. **This is indicative only and based on a 2-person household with multiple devices and simultaneous usage. Broadband performance is affected by multiple factors including number of occupants and devices, simultaneous usage, router range etc. For more information speak to your broadband provider.
Map data ©OpenStreetMap contributors.




