
6A Trevethan Park, Bere Ferrers, Yelverton, Devon PL20 7JW

- PROPERTY TYPE
Flat
- BEDROOMS
1
- BATHROOMS
1
- SIZE
Ask agent
Key features
- Current EPC: C74
- For Sale by National Timed Auction, Bidding Opens 16th March 2026 and Closes 24 Hours Later
- Vacant Possession
- Modernisation Required
- Garden
- Leasehold
- Legal Pack Available to Download Free of Charge
- See Additional Fee Note
Description
Guide Price £70,000 (plus fees). For sale by National Timed Auction, bidding opens 16th March 2026 and closes 24 hours later. A vacant first floor flat located in a popular waterside town. Legal pack available to download free of charge via our website.
One Bedroom First Floor Flat
A vacant first floor flat in need of modernisation, comprising own entrance. a double bedroom, living room, kitchen, and bathroom. The property benefits from PVCU double glazing and a rear garden.
AUCTIONEERS NOTE Please note there is a 14 day completion period.
AUCTIONEERS NOTE We are informed that a new 999-year lease will be granted upon completion.
Please be aware the property is subject to a s157 restriction and any buyer needs to meet the buyer and locality criteria.
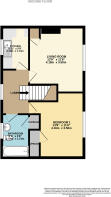
ACCOMMODATION Living Room: 13'9" × 11'6" (4.18m × 3.50m)
Kitchen: 8'11" × 5'9" (2.72m × 1.74m)
Bedroom 1: 13'8" × 11'6" (4.16m × 3.50m)
Bathroom: 9'1" × 5'8" (2.78m × 1.74m)
FULL DETAILS Photographs, Dimensions, Floor Plans and Area Measurements (when available) are included within our full details online on our website. All published information is to aid identification of the property and is not necessarily to scale.
VIEWINGS Please telephone Auction House South West on to request a viewing.
NOTICE TO BIDDER Please be aware that if your bid is successful on auction day the exchange of contracts will happen immediately after the auction.
Tenure: Leasehold
EPC Rating: C74
Administration Fee: £1200 inc VAT payable on exchange of contracts.
Disbursements: Please see the legal pack for any disbursements listed that may become payable by the purchaser on completion.
- COUNCIL TAXA payment made to your local authority in order to pay for local services like schools, libraries, and refuse collection. The amount you pay depends on the value of the property.Read more about council Tax in our glossary page.
- Band: A
- PARKINGDetails of how and where vehicles can be parked, and any associated costs.Read more about parking in our glossary page.
- Ask agent
- GARDENA property has access to an outdoor space, which could be private or shared.
- Yes
- ACCESSIBILITYHow a property has been adapted to meet the needs of vulnerable or disabled individuals.Read more about accessibility in our glossary page.
- Ask agent
Energy performance certificate - ask agent
6A Trevethan Park, Bere Ferrers, Yelverton, Devon PL20 7JW
Add an important place to see how long it'd take to get there from our property listings.
__mins driving to your place
Get an instant, personalised result:
- Show sellers you’re serious
- Secure viewings faster with agents
- No impact on your credit score
Your mortgage
Notes
Staying secure when looking for property
Ensure you're up to date with our latest advice on how to avoid fraud or scams when looking for property online.
Visit our security centre to find out moreDisclaimer - Property reference 202512111128sq_mvur. The information displayed about this property comprises a property advertisement. Rightmove.co.uk makes no warranty as to the accuracy or completeness of the advertisement or any linked or associated information, and Rightmove has no control over the content. This property advertisement does not constitute property particulars. The information is provided and maintained by Auction House, South West. Please contact the selling agent or developer directly to obtain any information which may be available under the terms of The Energy Performance of Buildings (Certificates and Inspections) (England and Wales) Regulations 2007 or the Home Report if in relation to a residential property in Scotland.
Auction Fees: The purchase of this property may include associated fees not listed here, as it is to be sold via auction. To find out more about the fees associated with this property please call Auction House, South West on 01752 741383.
*Guide Price: An indication of a seller's minimum expectation at auction and given as a Guide Price or a range of Guide Prices. This is not necessarily the figure a property will sell for and is subject to change prior to the auction.
Reserve Price: Each auction property will be subject to a Reserve Price below which the property cannot be sold at auction. Normally the Reserve Price will be set within the range of Guide Prices or no more than 10% above a single Guide Price.
*This is the average speed from the provider with the fastest broadband package available at this postcode. The average speed displayed is based on the download speeds of at least 50% of customers at peak time (8pm to 10pm). Fibre/cable services at the postcode are subject to availability and may differ between properties within a postcode. Speeds can be affected by a range of technical and environmental factors. The speed at the property may be lower than that listed above. You can check the estimated speed and confirm availability to a property prior to purchasing on the broadband provider's website. Providers may increase charges. The information is provided and maintained by Decision Technologies Limited. **This is indicative only and based on a 2-person household with multiple devices and simultaneous usage. Broadband performance is affected by multiple factors including number of occupants and devices, simultaneous usage, router range etc. For more information speak to your broadband provider.
Map data ©OpenStreetMap contributors.





