1 bedroom cottage for rent
Brook Terrace, Medbourne, Market Harborough

Letting details
- Let available date:
- 20/03/2026
- Deposit:
- £1,150A deposit provides security for a landlord against damage, or unpaid rent by a tenant.Read more about deposit in our glossary page.
- Min. Tenancy:
- Ask agent How long the landlord offers to let the property for.Read more about tenancy length in our glossary page.
- Let type:
- Long term
- Furnish type:
- Unfurnished
- Council Tax:
- Ask agent
- PROPERTY TYPE
Cottage
- BEDROOMS
1
- BATHROOMS
1
- SIZE
Ask agent
Description
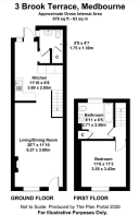
The property comprises: Living/Dining Room, Kitchen, WC, Bedroom, Bathroom and gardens to front and rear. Off road parking is available for one vehicle.
Location - The property is situated on the fringe of the highly sought after and picturesque village of Medbourne. The village provides a great range of amenities including a church, public house, restaurant, village shop, post office and children's play areas. Sporting facilities include tennis courts and games pitches as well as fishing at the nearby Eyebrook Reservoir or Rutland Water.
Medbourne sits in the heart of the Welland Valley within beautiful countryside. Market Harborough and Uppingham are convenient for more extensive shopping, recreational and educational facilities.
Market Harborough and Kettering have railway stations for north south travel. The M1 can be reached at Lutterworth and the A14 at Kettering.
Accomodation - A beautiful, one bedroom 19th century cottage with off road parking for one vehicle.
Living And Dining Room - With window to the front elevation
Kitchen - With a range of base and wall units, integrated fridge/freezer, washer dryer and oven. Back door to the rear garden.
Wc - With WC, wash hand basin and storage cupboard
First Floor Accommodation -
Bedroom - With window to front elevation
Bathroom - With WC, wash hand basin, bath with shower over, airing cupboard and window to rear elevation
Outside - The property benefits from a lawned garden area to the front and has a gravel courtyard to the rear.
Parking space for one vehicle to rear of property.
Additional Information - EPC E
Council tax band C
Electric heating
Please note there is a right of way across the rear courtyard for the neighbour to access their garden.
Holding Deposit - A holding deposit of one weeks rent is required to reserve a property and will be held by the agent for a period of up to 14 days. At the end of this period, the deposit will be refunded to you or be offset against your rent unless any of the proposed tenants or guarantors withdraw from the tenancy, fail a Right to Rent check, provide false or misleading information, or fail to enter into a tenancy by the deadline despite all reasonable steps being taken by the agent.
William Naylor Limited trading as Naylors Estate Agents is a member of the Property Redress Scheme and the RICS Client Money Protection Scheme.
Brochures
Brook Terrace, Medbourne, Market Harborough- COUNCIL TAXA payment made to your local authority in order to pay for local services like schools, libraries, and refuse collection. The amount you pay depends on the value of the property.Read more about council Tax in our glossary page.
- Band: C
- PARKINGDetails of how and where vehicles can be parked, and any associated costs.Read more about parking in our glossary page.
- Rear
- GARDENA property has access to an outdoor space, which could be private or shared.
- Yes
- ACCESSIBILITYHow a property has been adapted to meet the needs of vulnerable or disabled individuals.Read more about accessibility in our glossary page.
- Ask agent
Brook Terrace, Medbourne, Market Harborough
Add an important place to see how long it'd take to get there from our property listings.
__mins driving to your place



Notes
Staying secure when looking for property
Ensure you're up to date with our latest advice on how to avoid fraud or scams when looking for property online.
Visit our security centre to find out moreDisclaimer - Property reference 34468433. The information displayed about this property comprises a property advertisement. Rightmove.co.uk makes no warranty as to the accuracy or completeness of the advertisement or any linked or associated information, and Rightmove has no control over the content. This property advertisement does not constitute property particulars. The information is provided and maintained by Naylors, Market Harborough. Please contact the selling agent or developer directly to obtain any information which may be available under the terms of The Energy Performance of Buildings (Certificates and Inspections) (England and Wales) Regulations 2007 or the Home Report if in relation to a residential property in Scotland.
*This is the average speed from the provider with the fastest broadband package available at this postcode. The average speed displayed is based on the download speeds of at least 50% of customers at peak time (8pm to 10pm). Fibre/cable services at the postcode are subject to availability and may differ between properties within a postcode. Speeds can be affected by a range of technical and environmental factors. The speed at the property may be lower than that listed above. You can check the estimated speed and confirm availability to a property prior to purchasing on the broadband provider's website. Providers may increase charges. The information is provided and maintained by Decision Technologies Limited. **This is indicative only and based on a 2-person household with multiple devices and simultaneous usage. Broadband performance is affected by multiple factors including number of occupants and devices, simultaneous usage, router range etc. For more information speak to your broadband provider.
Map data ©OpenStreetMap contributors.




