White Swan Close, Killingworth, Newcastle upon Tyne, NE12

- PROPERTY TYPE
Terraced
- BEDROOMS
3
- BATHROOMS
2
- SIZE
Ask agent
- TENUREDescribes how you own a property. There are different types of tenure - freehold, leasehold, and commonhold.Read more about tenure in our glossary page.
Freehold
Key features
- Great Location
- Three Bedrooms
- Downstairs WC
- Private Garden
- En Suite
- Close to Local Amenities
Description
A well-presented three-bedroom townhouse situated on the desirable White Swan Close in Killingworth, offering spacious accommodation arranged over three floors and ideally suited to modern family living.
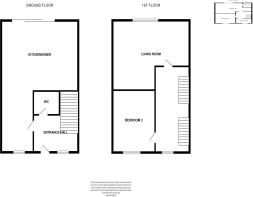
Upon entering the property, you are welcomed by a bright entrance hallway, with the convenience of a downstairs WC located just off the hall. The ground floor features a generous kitchen/diner, thoughtfully designed with ample worktop space and plenty of room for dining. Sliding doors extending the length of the room allow natural light to flood the space and provide direct access to the rear garden, creating a light and airy atmosphere throughout.
The first floor hosts a spacious living area, enhanced by a large window that further brightens the room, making it an ideal space to relax and unwind. Also located on this floor is the second bedroom, which comfortably accommodates a double bed.
On the second floor, the master bedroom offers a spacious retreat, complete with built-in wardrobes and the added benefit of a modern en-suite shower room. The third bedroom is also situated on this floor and is suitable for a single bed, making it ideal as a child’s room, nursery or home office. The family bathroom is conveniently positioned to serve this level.
Externally, the property benefits from a private driveway providing off-street parking and a private rear garden, perfect for outdoor enjoyment.
White Swan Close is ideally positioned within Killingworth, offering easy access to a range of local amenities, schools, shops and transport links. The property is also well placed for commuting to nearby centres including Newcastle upon Tyne and North Shields, making it an excellent choice for both families and professionals alike.
Kitchen/Diner
4.39m x 7.74m (14'5" x 25'5")
Living Room
3.96m x 4.23m (13'0" x 13'11")
Bedroom 2
3.17m x 2.37m (10'5" x 7'9")
Bedroom 1
3.06m x 2.44m (10'0" x 8'0")
Bedroom 3
2.39m x 4.07m (7'10" x 13'4")
Bathroom
1.64m x 1.88m (5'5" x 6'2")
- COUNCIL TAXA payment made to your local authority in order to pay for local services like schools, libraries, and refuse collection. The amount you pay depends on the value of the property.Read more about council Tax in our glossary page.
- Band: C
- PARKINGDetails of how and where vehicles can be parked, and any associated costs.Read more about parking in our glossary page.
- Driveway
- GARDENA property has access to an outdoor space, which could be private or shared.
- Private garden
- ACCESSIBILITYHow a property has been adapted to meet the needs of vulnerable or disabled individuals.Read more about accessibility in our glossary page.
- Ask agent
White Swan Close, Killingworth, Newcastle upon Tyne, NE12
Add an important place to see how long it'd take to get there from our property listings.
__mins driving to your place
Get an instant, personalised result:
- Show sellers you’re serious
- Secure viewings faster with agents
- No impact on your credit score
Your mortgage
Notes
Staying secure when looking for property
Ensure you're up to date with our latest advice on how to avoid fraud or scams when looking for property online.
Visit our security centre to find out moreDisclaimer - Property reference P10497. The information displayed about this property comprises a property advertisement. Rightmove.co.uk makes no warranty as to the accuracy or completeness of the advertisement or any linked or associated information, and Rightmove has no control over the content. This property advertisement does not constitute property particulars. The information is provided and maintained by Northwood, Benton. Please contact the selling agent or developer directly to obtain any information which may be available under the terms of The Energy Performance of Buildings (Certificates and Inspections) (England and Wales) Regulations 2007 or the Home Report if in relation to a residential property in Scotland.
*This is the average speed from the provider with the fastest broadband package available at this postcode. The average speed displayed is based on the download speeds of at least 50% of customers at peak time (8pm to 10pm). Fibre/cable services at the postcode are subject to availability and may differ between properties within a postcode. Speeds can be affected by a range of technical and environmental factors. The speed at the property may be lower than that listed above. You can check the estimated speed and confirm availability to a property prior to purchasing on the broadband provider's website. Providers may increase charges. The information is provided and maintained by Decision Technologies Limited. **This is indicative only and based on a 2-person household with multiple devices and simultaneous usage. Broadband performance is affected by multiple factors including number of occupants and devices, simultaneous usage, router range etc. For more information speak to your broadband provider.
Map data ©OpenStreetMap contributors.




