
Harcourt Street, Newark, NG24

- PROPERTY TYPE
Terraced
- BEDROOMS
4
- BATHROOMS
1
- SIZE
Ask agent
- TENUREDescribes how you own a property. There are different types of tenure - freehold, leasehold, and commonhold.Read more about tenure in our glossary page.
Freehold
Key features
- Victorian Terrace With Period Character
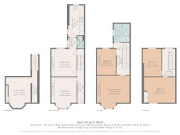
- Four Double Bedrooms Across Three Floors
- Two Reception Rooms For Flexibility
- Refurbished Kitchen & Ground Floor WC
- Contemporary Bathroom With Modern Finish
- Useable Cellar Study For Home Working
- Good Size Rear Garden
- Walking Distance To Newark Town Centre
- Easy Access To Newark Stations
- Practical Layout For Modern Living
Description
Behind the railings, this four-storey Victorian house feels settled and solid. The proportions are generous, the ceilings are high, and the light from the bay windows carries right through the front rooms.
The front sitting room is where you’ll likely end up in the evenings. The bay window draws the light in during the day and fitted shutters give privacy without shutting the world out along with a beautiful fireplace.
The separate dining room is calm and is a space for proper meals rather than eating on the run. The kind of space where homework can be spread out, or friends can stay longer than planned.
The ground floor features new flooring throughout, providing a seamless transition underfoot.
The kitchen was refurbished in 2023 with solid oak worktops, a new sink, fresh tiling and shaker-style cabinetry. It’s a practical layout, with everything where you need it and a new rear door leading out to the garden. Outdoor electrics have also been added, which makes the garden more usable year-round.
There’s a downstairs WC - something you don’t always find in houses of this era.
Upstairs, the main bedroom runs across the front of the house with its bay window and original fireplace. It’s a room you can grow into, not grow out of. Shutters and bespoke blinds have been fitted, giving you control over light and privacy.
The bathroom was replaced last year and is now a clean, modern space with a double walk-in shower - simple, well-finished and designed for everyday use.
Across the first and second floors are three further bedrooms. They work well as children’s rooms, guest rooms, or as a space to work from home, offering flexibility without compromising on bedroom sizes.
Below ground, the cellar has been properly improved. It’s dry-lined, carpeted, heated, with electrics and lighting in place. Currently used as a study, it offers genuine additional living space rather than just storage - somewhere quiet and separate when you need it.
Outside, the rear garden is longer than you might expect from the street. There’s a paved seating area near the house and lawn beyond, with borders. It feels usable rather than ornamental - room for play, planting, or simply sitting out at the end of the day.
New double glazing has been installed and much of the practical updating has already been done. It still feels like a Victorian home - sash windows, cast iron fireplaces, proper room shapes - the sort of improvements you’re glad someone else has already taken care of.
Location matters here. You’re within walking distance of Newark town centre and both train stations are within easy reach for commuting. It's well-placed for access to both primary and secondary schools. It’s a part of town where people move to and tend to stay.
This isn’t a house that’s trying to reinvent itself. It’s a Victorian home that’s been looked after properly - improved where it counts, while keeping the proportions and details that made it appealing in the first place.
If you’re looking for something central, solid, and ready to live in without a list of jobs waiting for you, this may feel like the right fit.
- COUNCIL TAXA payment made to your local authority in order to pay for local services like schools, libraries, and refuse collection. The amount you pay depends on the value of the property.Read more about council Tax in our glossary page.
- Ask agent
- PARKINGDetails of how and where vehicles can be parked, and any associated costs.Read more about parking in our glossary page.
- Ask agent
- GARDENA property has access to an outdoor space, which could be private or shared.
- Yes
- ACCESSIBILITYHow a property has been adapted to meet the needs of vulnerable or disabled individuals.Read more about accessibility in our glossary page.
- Ask agent
Harcourt Street, Newark, NG24
Add an important place to see how long it'd take to get there from our property listings.
__mins driving to your place
Get an instant, personalised result:
- Show sellers you’re serious
- Secure viewings faster with agents
- No impact on your credit score
Your mortgage
Notes
Staying secure when looking for property
Ensure you're up to date with our latest advice on how to avoid fraud or scams when looking for property online.
Visit our security centre to find out moreDisclaimer - Property reference RX728238. The information displayed about this property comprises a property advertisement. Rightmove.co.uk makes no warranty as to the accuracy or completeness of the advertisement or any linked or associated information, and Rightmove has no control over the content. This property advertisement does not constitute property particulars. The information is provided and maintained by TAUK, Covering Nottinghamshire. Please contact the selling agent or developer directly to obtain any information which may be available under the terms of The Energy Performance of Buildings (Certificates and Inspections) (England and Wales) Regulations 2007 or the Home Report if in relation to a residential property in Scotland.
*This is the average speed from the provider with the fastest broadband package available at this postcode. The average speed displayed is based on the download speeds of at least 50% of customers at peak time (8pm to 10pm). Fibre/cable services at the postcode are subject to availability and may differ between properties within a postcode. Speeds can be affected by a range of technical and environmental factors. The speed at the property may be lower than that listed above. You can check the estimated speed and confirm availability to a property prior to purchasing on the broadband provider's website. Providers may increase charges. The information is provided and maintained by Decision Technologies Limited. **This is indicative only and based on a 2-person household with multiple devices and simultaneous usage. Broadband performance is affected by multiple factors including number of occupants and devices, simultaneous usage, router range etc. For more information speak to your broadband provider.
Map data ©OpenStreetMap contributors.






