
4 bedroom detached house for sale
Church Gate, Colston Bassett, NG12

- PROPERTY TYPE
Detached
- BEDROOMS
4
- BATHROOMS
4
- SIZE
Ask agent
- TENUREDescribes how you own a property. There are different types of tenure - freehold, leasehold, and commonhold.Read more about tenure in our glossary page.
Freehold
Key features
- A superb development opportunity to create something very special in one of Nottinghamshire’s most sought-after villages.
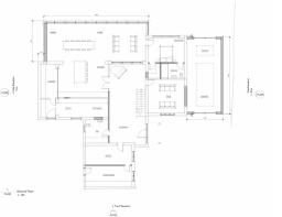
- Full planning permission was granted in December 2025 to remodel and extend the existing property, allowed a purchaser to create a truly stunning and bespoke residence.
- Rushcliffe Borough Council planning reference 25/01428/FUL
- Versatile and striking accommodation will extend to approximately 4200 sq. ft, with a stunning oak framed garden room to the rear.
- Delightful south facing gardens and attached garaging/carport. Existing gardens have been well maintained and enhanced, with a superb plot extending to approximately 0.45 acres.
- Preliminary works have already taken place to the existing dwelling, allowing for an immediate start.
- Viewing highly recommended to appreciate this rare and unique opportunity, suitable to developers or owner occupiers.
- Viewing by appointment with Fine & Country.
Description
A superb development opportunity to create something very special in one of Nottinghamshire’s most sought-after villages. Full planning permission was granted in December to remodel and extend the existing property, allowed a purchaser to create a truly stunning and bespoke residence.
Versatile and striking accommodation will extend to approximately 4200 sq. ft, with a stunning oak framed garden room to the rear.
Accommodation over two floors will provide impressive open plan living, four bedrooms and four bathrooms, as well as useful practicalities.
Delightful south facing gardens and attached garaging/carport. Existing gardens have been well maintained and enhanced, with a superb plot extending to approximately 0.45 acres.
Preliminary works have already taken place to the existing dwelling, allowing for an immediate start.
Viewing highly recommended to appreciate this rare and unique opportunity, suitable to developers or owner occupiers.
PLANNING PERMISSION GRANTED
Full planning permission was granted in December 2025 to extend and remodel the existing property.
Rushcliffe Borough Council planning reference 25/01428/FUL - Proposed Single Storey Side and Rear Extension, External Alterations Including Timber Cladding, Internal Reconfiguration, Brick Piers with Timber Gate, Estate Fencing, and Formation of New Driveway
COLSTON BASSETT
Colston Bassett is one of Nottinghamshire’s most highly regarded villages set to the south of the county being well placed for ease of access into West Bridgford and the City of Nottingham. Within the village is the renowned Martin’s Arms pub as well as the award winning Stilton dairy and the Colston Bassett Independent Preparatory School serving ages 4 to 11. More comprehensive schooling facilities are available in the nearby villages of Cropwell Bishop, Cotgrave and the market town of Bingham. The village is well known for its lively community spirit with a number of social clubs and sporting clubs including a village cricket team and croquet club with events taking place all year round. The village is strategically well placed for the Region’s commercial and retail centres with fast road access to main centres including Nottingham, Leicester and Lincoln. The recently improved A46 dual carriageway is also within easy reach which opens onto further road networks including the A52, M1 and A1 motorways as well as Nottingham East Midlands Airport. For those wishing to travel by rail the East Coast Mainline at Grantham is available close by.
VIEWING
By appointment with Fine & Country.
Brochures
Brochure 1- COUNCIL TAXA payment made to your local authority in order to pay for local services like schools, libraries, and refuse collection. The amount you pay depends on the value of the property.Read more about council Tax in our glossary page.
- Band: G
- PARKINGDetails of how and where vehicles can be parked, and any associated costs.Read more about parking in our glossary page.
- Yes
- GARDENA property has access to an outdoor space, which could be private or shared.
- Yes
- ACCESSIBILITYHow a property has been adapted to meet the needs of vulnerable or disabled individuals.Read more about accessibility in our glossary page.
- Ask agent
Energy performance certificate - ask agent
Church Gate, Colston Bassett, NG12
Add an important place to see how long it'd take to get there from our property listings.
__mins driving to your place
Get an instant, personalised result:
- Show sellers you’re serious
- Secure viewings faster with agents
- No impact on your credit score
Your mortgage
Notes
Staying secure when looking for property
Ensure you're up to date with our latest advice on how to avoid fraud or scams when looking for property online.
Visit our security centre to find out moreDisclaimer - Property reference RX726537. The information displayed about this property comprises a property advertisement. Rightmove.co.uk makes no warranty as to the accuracy or completeness of the advertisement or any linked or associated information, and Rightmove has no control over the content. This property advertisement does not constitute property particulars. The information is provided and maintained by Fine & Country, Nottinghamshire. Please contact the selling agent or developer directly to obtain any information which may be available under the terms of The Energy Performance of Buildings (Certificates and Inspections) (England and Wales) Regulations 2007 or the Home Report if in relation to a residential property in Scotland.
*This is the average speed from the provider with the fastest broadband package available at this postcode. The average speed displayed is based on the download speeds of at least 50% of customers at peak time (8pm to 10pm). Fibre/cable services at the postcode are subject to availability and may differ between properties within a postcode. Speeds can be affected by a range of technical and environmental factors. The speed at the property may be lower than that listed above. You can check the estimated speed and confirm availability to a property prior to purchasing on the broadband provider's website. Providers may increase charges. The information is provided and maintained by Decision Technologies Limited. **This is indicative only and based on a 2-person household with multiple devices and simultaneous usage. Broadband performance is affected by multiple factors including number of occupants and devices, simultaneous usage, router range etc. For more information speak to your broadband provider.
Map data ©OpenStreetMap contributors.





