
White Lane, Plymouth, PL1

- PROPERTY TYPE
Flat
- BEDROOMS
2
- BATHROOMS
1
- SIZE
Ask agent
Key features
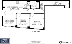
- Two Bedroom Flat situated in this former Georgian Warehouse building situated in the heart of Plymouth's historic Barbican
- Accomodation includes an open plan Lounge Kitchen with dining area, Bathroom and two bedrooms
- The living room offers a juliet balcony overlooking New Street, The Barbican
- Conveniently situated for ease of access to heart of The Barbican and everything that has to offer.
- Grade II Listed Building (Ref: 1386270)
- Plymouth City Council Residential Parking Permit Scheme
- The property is entered through a long private hallway
Description
This two-bedroom flat at 1 White Lane, Plymouth, PL1 2LP, is set within a converted 18th Century warehouse in the heart of the historic Barbican. It's a Grade II listed with reference 1386270, mixing original features with modern comforts. It has two double bedrooms, a bathroom, and an open-plan living area & has been recently decorated with new carpets, instant water heater & electric hob etc. You enter via a spacious hallway – a useful space. The main living space brings together the lounge, kitchen, and dining area, with lots of natural light and a Juliet balcony offering views over the cobbled streets and marina in the distance. The lounge diner features the original stone walls with wood floors, exposed beams & French doors to the balcony. The kitchen area is well-equipped with white cabinets & integrated appliances – dishwasher and washing machine. The bedrooms are both doubles - with natural light, white walls, and views to the cobbled streets. The bathroom is clean and functional, with a white suite, glass shower screen, tiled floor, and built in sink unit. There are high ceilings and period details throughout this apartment which add character. Parking is available through the council's resident permit scheme, which is a real help in this location. This is a rare share of Freehold property in a small, well managed block (option to be on the management board), with a very reasonable service charge.
Location
This flat is in the centre of Plymouth's Barbican, known for its cobbled streets, buildings from Tudor and Jacobean periods, and more than 200 listed properties. It revolves around streets like Southside Street and The Barbican, with a good selection of pubs, bars, and restaurants covering Italian, Greek, Mexican, British, and more. The waterfront at Sutton Harbour has independent shops, galleries, cafes, and an active social vibe, so it's straightforward to join in.
One of the main draws is the close proximity to pubs and bars – perfect if you like having options on your doorstep. You're just a short walk from the Dolphin Hotel, along with spots like the Queens Arms for its welcoming atmosphere and solid drink choices, or the Plymouth Gin Distillery offering tours, tastings, and cocktails such as a Tom Collins. There's The Bottling Plant in an old gin building for laid-back evenings, Kitty O'Hanlons with a lively feel, and gastropubs like the Fishermans Arms. Other choices include the Maritime Inn, Custom House, Bonne Santé, Bar Rakuda, and Annabel's Cabaret for nights out. Plenty of places for a pub crawl if that's your thing.
For transport, regular buses like Route 1 stop nearby – handy for spots like the Brass Monkey – connecting you to the wider Plymouth area. Alternatively, year-round ferries and water taxis from the Barbican wharves link to Mount Batten, Royal William Yard, Mount Edgcumbe, or Cawsands in Cornwall. Bike hire is available for local trips, and it's easy to get to Plymouth Hoe, the city centre, or Dartmoor National Park. In short, it's a great base for city living with history, nearby pubs, and reliable links to get around
Brochures
Property Brochure- COUNCIL TAXA payment made to your local authority in order to pay for local services like schools, libraries, and refuse collection. The amount you pay depends on the value of the property.Read more about council Tax in our glossary page.
- Band: B
- PARKINGDetails of how and where vehicles can be parked, and any associated costs.Read more about parking in our glossary page.
- Yes
- GARDENA property has access to an outdoor space, which could be private or shared.
- Ask agent
- ACCESSIBILITYHow a property has been adapted to meet the needs of vulnerable or disabled individuals.Read more about accessibility in our glossary page.
- Ask agent
Energy performance certificate - ask agent
White Lane, Plymouth, PL1
Add an important place to see how long it'd take to get there from our property listings.
__mins driving to your place
Get an instant, personalised result:
- Show sellers you’re serious
- Secure viewings faster with agents
- No impact on your credit score
Your mortgage
Notes
Staying secure when looking for property
Ensure you're up to date with our latest advice on how to avoid fraud or scams when looking for property online.
Visit our security centre to find out moreDisclaimer - Property reference d8d373c9-7f26-49ee-9533-05f7c7ba417d. The information displayed about this property comprises a property advertisement. Rightmove.co.uk makes no warranty as to the accuracy or completeness of the advertisement or any linked or associated information, and Rightmove has no control over the content. This property advertisement does not constitute property particulars. The information is provided and maintained by Atwell Martin, Plymouth. Please contact the selling agent or developer directly to obtain any information which may be available under the terms of The Energy Performance of Buildings (Certificates and Inspections) (England and Wales) Regulations 2007 or the Home Report if in relation to a residential property in Scotland.
*This is the average speed from the provider with the fastest broadband package available at this postcode. The average speed displayed is based on the download speeds of at least 50% of customers at peak time (8pm to 10pm). Fibre/cable services at the postcode are subject to availability and may differ between properties within a postcode. Speeds can be affected by a range of technical and environmental factors. The speed at the property may be lower than that listed above. You can check the estimated speed and confirm availability to a property prior to purchasing on the broadband provider's website. Providers may increase charges. The information is provided and maintained by Decision Technologies Limited. **This is indicative only and based on a 2-person household with multiple devices and simultaneous usage. Broadband performance is affected by multiple factors including number of occupants and devices, simultaneous usage, router range etc. For more information speak to your broadband provider.
Map data ©OpenStreetMap contributors.








