
3 bedroom house for sale
Coggeshall Road, Braintree, CM7

- PROPERTY TYPE
House
- BEDROOMS
3
- BATHROOMS
1
- SIZE
Ask agent
- TENUREDescribes how you own a property. There are different types of tenure - freehold, leasehold, and commonhold.Read more about tenure in our glossary page.
Freehold
Key features
- Three Bedroom Terraced House
- No Onward Chain
- Two Reception Rooms
- Driveway For Two Vehicles
- UPVC Windows & Gas Central Heating
- First-Floor Bathroom
- Ideal For First Time Buyers & Buy To Let Investors
- Un-Overlooked Garden Backing Onto Recreation Ground
Description
** Guide Price £300,000 - £325,000 **
Michaels Property Consultants are delighted to offer to the market this traditionally built and deceptively spacious three-bedroom terraced home, ideally positioned within easy walking distance of Braintree town centre and the mainline railway station.
Offered for sale with no onward chain, this attractive bay-fronted property presents an excellent opportunity for first-time buyers and buy-to-let investors alike, benefiting from generous and versatile accommodation arranged over two well-proportioned reception rooms.
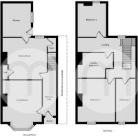
The internal layout comprises a welcoming entrance hall with stairs to the first floor, a bright and spacious living room featuring a characterful bay window, and a separate dining room which flows into the fitted kitchen. To the first floor are three well-sized bedrooms and a family bathroom.
Externally, the property continues to impress with an unoverlooked rear garden backing directly onto a recreation playing field, offering a pleasant and private outlook. To the front, a driveway provides off-road parking for two vehicles.
Conveniently located close to local amenities, transport links and schooling, this well-presented home offers both comfort and practicality in a highly sought-after central location. Early viewing is strongly recommended.
Entrance Hall
Living Room
11' 9" x 11' 3" (3.58m x 3.43m)
Dining Room
12' 7" x 12' 2" (3.84m x 3.71m)
Kitchen
9' 8" x 8' 1" (2.95m x 2.46m)
Bedroom One
12' 4" x 10' 9" (3.76m x 3.28m)
Bedroom Two
9' 8" x 8' 1" (2.95m x 2.46m)
Bedroom Three
12' 4" x 5' 8" (3.76m x 1.73m)
Family Bathroom
Rear Garden
Driveway To Front Of Dwelling
- COUNCIL TAXA payment made to your local authority in order to pay for local services like schools, libraries, and refuse collection. The amount you pay depends on the value of the property.Read more about council Tax in our glossary page.
- Ask agent
- PARKINGDetails of how and where vehicles can be parked, and any associated costs.Read more about parking in our glossary page.
- Driveway
- GARDENA property has access to an outdoor space, which could be private or shared.
- Yes
- ACCESSIBILITYHow a property has been adapted to meet the needs of vulnerable or disabled individuals.Read more about accessibility in our glossary page.
- Ask agent
Coggeshall Road, Braintree, CM7
Add an important place to see how long it'd take to get there from our property listings.
__mins driving to your place
Get an instant, personalised result:
- Show sellers you’re serious
- Secure viewings faster with agents
- No impact on your credit score
Your mortgage
Notes
Staying secure when looking for property
Ensure you're up to date with our latest advice on how to avoid fraud or scams when looking for property online.
Visit our security centre to find out moreDisclaimer - Property reference 29881263. The information displayed about this property comprises a property advertisement. Rightmove.co.uk makes no warranty as to the accuracy or completeness of the advertisement or any linked or associated information, and Rightmove has no control over the content. This property advertisement does not constitute property particulars. The information is provided and maintained by Michaels Property Consultants Ltd, Braintree. Please contact the selling agent or developer directly to obtain any information which may be available under the terms of The Energy Performance of Buildings (Certificates and Inspections) (England and Wales) Regulations 2007 or the Home Report if in relation to a residential property in Scotland.
*This is the average speed from the provider with the fastest broadband package available at this postcode. The average speed displayed is based on the download speeds of at least 50% of customers at peak time (8pm to 10pm). Fibre/cable services at the postcode are subject to availability and may differ between properties within a postcode. Speeds can be affected by a range of technical and environmental factors. The speed at the property may be lower than that listed above. You can check the estimated speed and confirm availability to a property prior to purchasing on the broadband provider's website. Providers may increase charges. The information is provided and maintained by Decision Technologies Limited. **This is indicative only and based on a 2-person household with multiple devices and simultaneous usage. Broadband performance is affected by multiple factors including number of occupants and devices, simultaneous usage, router range etc. For more information speak to your broadband provider.
Map data ©OpenStreetMap contributors.





